当前位置:首页 > 设计圈

  • #办公智造#

    /  总监办公区
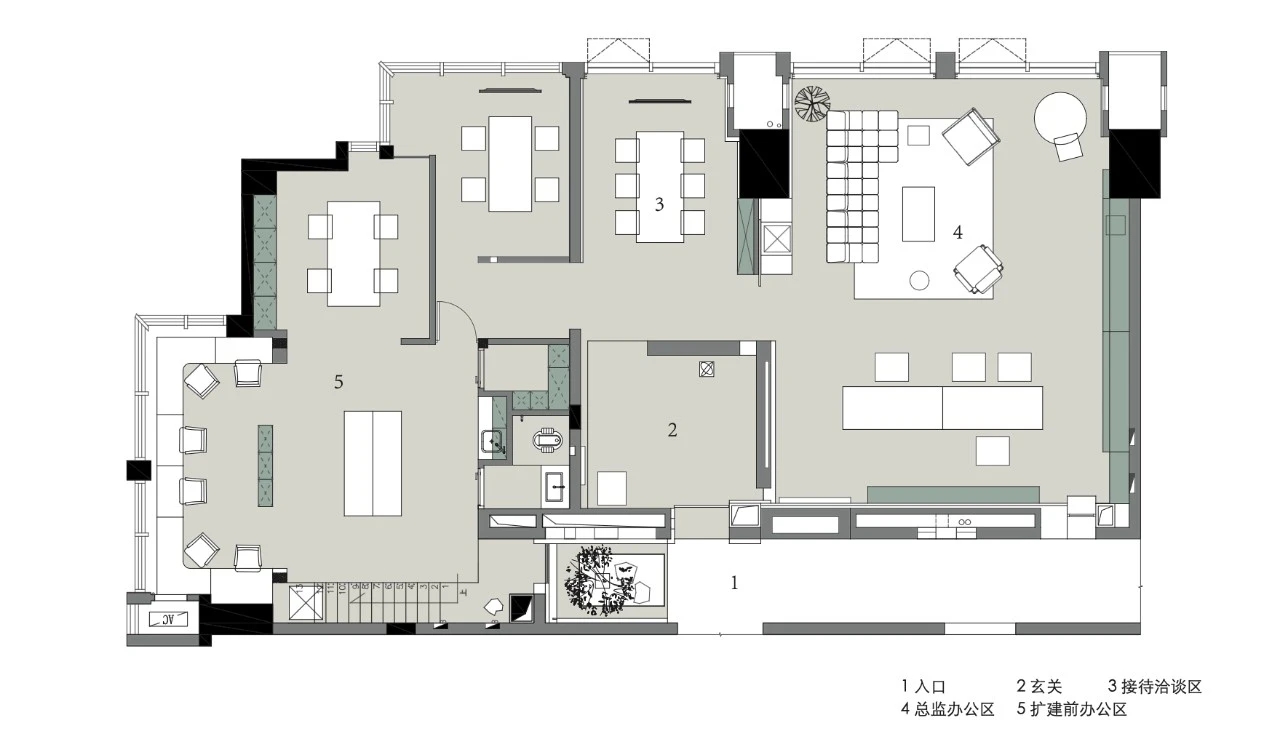
    电视背景是从玄关区过渡而来的方块,融合于整个空间的韵律中。水平和垂直线无处不在,所有墙面都包裹了金属板,不同高度和材料过渡位置都增加了线性灯光,增强空间轮廓和立体感。4.2米的超长办公桌和长条灯都是特别定制,墙上的红色小方块隐喻了蒙德里安。
    看向江景的方向,模拟了居家客厅,沙发和地毯传达生活气息,中古家具也摆放在相互平衡的位置。每个面都是呼应和对称的,在体块的尺度、比例中碰撞出微妙的平衡。
    水吧台是办公室空间的另外一重标准体块,在中间背景里表达态度。穿插咬合的关系,在体块尺度中碰撞出平衡,这里既模拟了西厨吧台,也为日常活动及招待客人提供服务。宝格丽岩板的装饰面带来灵动性,不同高度的层板展示酒杯及酒水收藏。        


  • #办公智造#

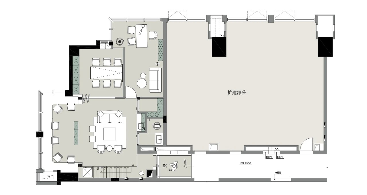
    细节 平面图        

  • 魏馨琪 / 设计师

    2023-04-05 08:40


    #办公智造#

    办公室设计 以热情和温暖为主
    客户想要创造一个既优雅、诱人又工业的办公空间。他们希望捕捉到一种简约的设计,围绕着简单的柔和颜色和自然成分的使用,如植物和温暖的木材。
    客户希望他们的办公室能为员工保留一个热情和温暖的空间。
    它还需要为客户提供一个实用的前沿阵地。重要的是,工作场所应该反映品牌所代表的意义。
    这感觉你爱了吗?        

  • 筑先生 / 客服

    2023-04-05 07:11


    我们敢于创新,我们以追求完美为习惯,我们不曾敷衍,不曾草率,不曾将就。        

  • 宋闲 / 设计师

    2023-04-05 07:00


    #办公智造#

    办公室实景图        

  • 夏毅 / 设计师

    2023-04-05 06:49


    #办公智造#

    厂区办公楼完工图        

  • 夏毅 / 设计师

    2023-04-05 06:48


    #办公智造#

    厂区办公楼收尾        


  • #办公智造#

    办公室实景图        

发直播

公开