当前位置:首页 > 设计圈
  • 敏颜 / 设计师

    2023-04-23 09:36


    #办公智造#

    新中风格        

  • 王高君 / 设计师

    2023-04-23 09:10


    #办公智造#

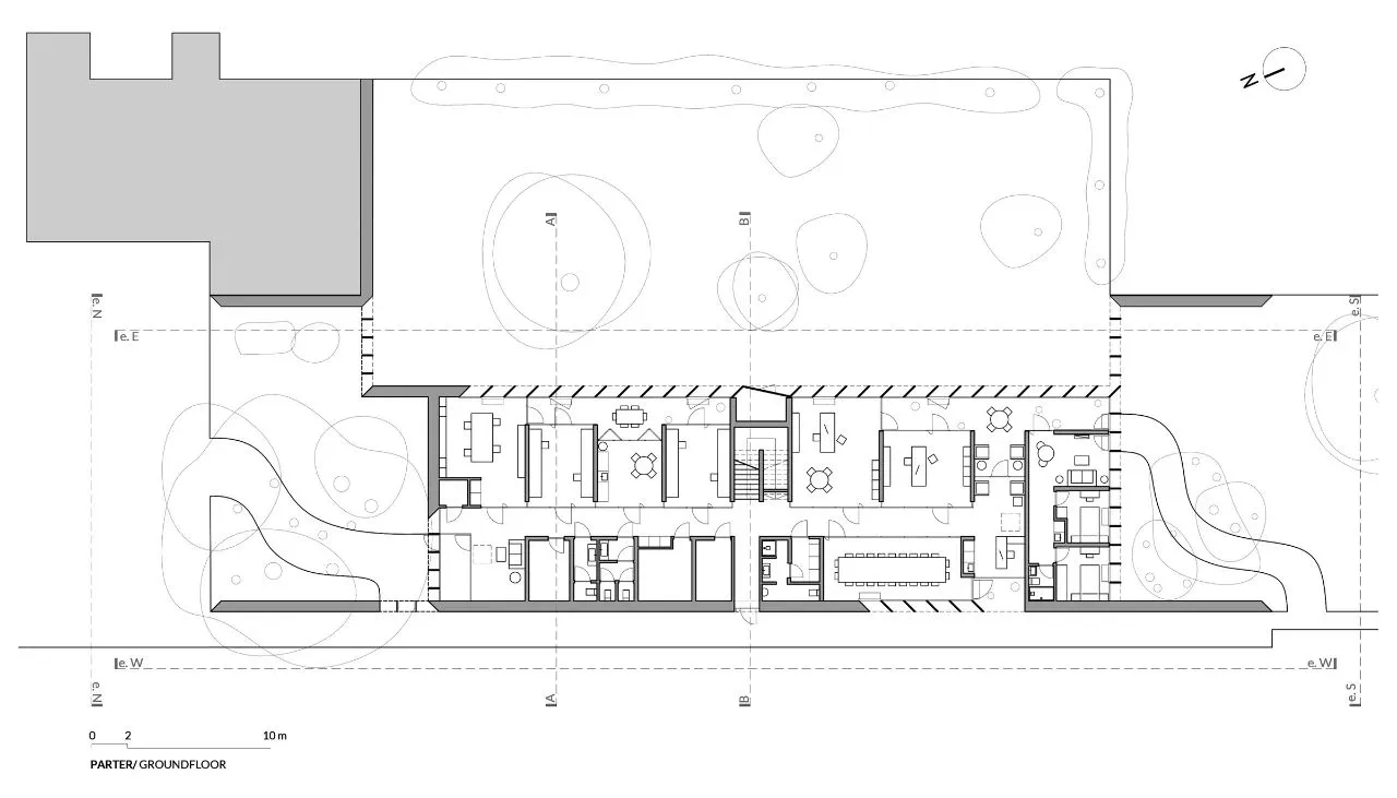
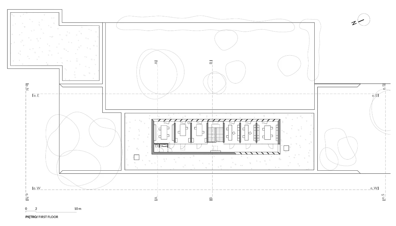
    该项目的一小部分分布在二楼,以减少现有绿地面积。通过这种方式,大量的办公室出现了,由于整个外围面积的缩小,这些办公室从不利的环境中抽象出来。        

  • Ellen / 设计师

    2023-04-23 08:54


    #醉美庭院#

    山水之间        

  • 乌拉西 / 设计师

    2023-04-23 07:50


    #办公智造#

    简装小面积办公空间        

  • 张小葵 / 设计师

    2023-04-23 06:50


    #办公智造#

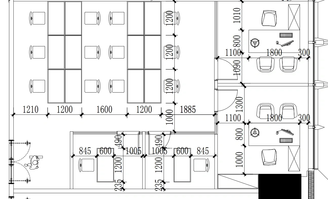
    办公空间设计效果图        


  • #标准施工#

    极简楼梯施工流程
    1 设计图纸.
    一般是楼梯商家出图
    2 楼梯开口
    我直接在开发商预留的楼梯位置做的楼梯,开发商留楼梯口偏小,如果做木制楼梯占地小应该就不需要切割了,因为要浇灌,又要木基层打底,还要贴岩板,所以在原有基础上切割了10公分
    3 楼梯浇筑
    先用板子固定楼梯位置,钢筋均匀的铺在板架上,然后钢筋绑扎,打好模板,把混泥土浇灌进模。两三天就可以走啦,这个过程期间要勤浇水!
    4 预留电源
    家里做水电的时候跟师傅沟通好楼梯的用电情况,电工师傅会预留出楼梯的起始电源,确认后期的弱电箱位置
    5 木基层打底
    大家可能会发现家里装修都会用欧松板icon打底,楼梯也不例外,因为欧松板易加工,防潮性好,推钉力强,易贴合,而且欧松板能做到精找平,在这个阶段就要确定扶手位置,预留好玻璃槽的厚度,这套是1cm厚的超白玻,一般要预留2cm
    6 踏步灯带安装
    我选的踏步灯带是暖白光,材料是铝制散热快的LED灯。电工师傅会在每个台阶安装一条灯,串连到一根主线上,连接变压器,然后在楼梯上下起始处分别安装感应探头,就可以实现人来自动亮灯,人走后自动熄灭啦
    7 岩板安装
    量尺寸,画图纸,两位师傅研究整整了一下午,订下尺寸10天左右就到货了。岩板可不是现场可以加工的,是在工厂里用水刀工艺切割,这样不易崩瓷。到货后师傅用结构胶icon进行铺贴,看似简单方便,实则两位师傅干了两三天。岩板铺贴完后又把灯带给粘上了,当初量尺寸的时候每个踏步预留的灯带凹槽是lcmx1cm的,灯带是0.8mm,需要嵌入在内
    8 玻璃和扶手
    楼梯没有用传统的梯邦样式,做的是岩板连纹楼梯,选用的是超白玻璃,不带颜色,这种高透明玻璃看起来晶莹易透,白度高,自爆率低,缺点就是贵,至于扶手用的是无边玻璃扶手,整体空间感一下子就出来了        

  • 丽旻 / 设计师

    2023-04-23 06:37


    #办公智造#

    办公空间设计赏析        

  • 小筑 / 设计师

    2023-04-23 06:32


    #标准施工#

    大样图        

发直播

公开