当前位置:首页 > 设计圈
  • 蓦兰 / 设计师

    2023-04-24 17:32


    #醉美庭院#

    长条形日式庭院(2)        

  • 张小葵 / 设计师

    2023-04-24 17:19


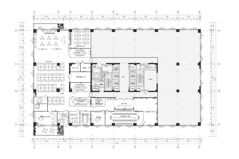
    #办公智造#

    公共办公区——不同选择搭配出不同办公需求
    公共办公区的员工卡位选择以开放办公桌为主,边柜保证了每个使用者储物的空间,通过搭配异色桌屏区分不同工区的部门职责,给每个区域空间通过不同组合进行划分。
    尽可能以科学合理的方式放大了属于每个部门的空间属性,避免了因局促拥挤而带来的负面情绪干扰,充分的个人空间有利地促进主观能动性。        

  • 张小葵 / 设计师

    2023-04-24 17:18


    #办公智造#

    休闲区——健康办公,放松茶歇
    设计师在员工办公空间周围设立了吧台、各式休闲座椅、软体沙发和桌子。目前,健康办公的理念已经给越来越多的公司重视,员工可以根据自己需求自由地使用这些空间。
    鼓励员工不时在空间里走动,促进健康办公的工作方式,从而帮助企业从人文主义角度进一步提高工作效率与创新能力。
    多功能会议空间——满足不同需求
    满足集团化办公访客和团队的多样化多功能会议空间,设计团队在配置方案中考量多方因素,搭配出不同空间的环境,设置不同规格模式的会议空间提供使用。无论是进行小组讨论还是短暂的灵动办公,都能在空间内得到解决方案        

  • 张小葵 / 设计师

    2023-04-24 17:15


    #办公智造#

    个人办公室
    个人办公区以真皮家具搭配为主,满足其办公及接待属性。落地的窗景外正是整个湾区海景和大沙河生态园区,延展办公的舒适性        


  • #办公智造#

    入口处采用大面积玻璃窗,以线条构成的LOGO墙引导向两侧区域,在灰色地毯的基础上增加色彩线条的对比,在无形中形成韵律感。
    走廊两侧房间均用玻璃墙作隔断,以减少狭长走廊的封闭感,条纹地毯与天花通风口形成的线条作路线指引,同时强化功能分区。
    办公区集中在LOGO墙后,用格子柜和办公桌、颜色样式不一的地毯分割开走廊与办公区域,柱子贴合LOGO颜色进行包裹,在黑白空间里保持小面积的亮色,点亮空间氛围。


  • #办公智造#

    茶歇区设置在办公区一侧,作为休息放松的地点,紧挨窗户,在保证采光的同时可以眺望远方舒缓心情,与外界空间进行连接。从顶部垂落的圆形吊灯与下方的装饰物件在色彩、形态上相互呼应,部分漆上颜色的柜子点缀完善空间,同时将茶歇区与办公区形成一个有联系的整体。
    会议室分为大中小三种类型,黑与白之间的色彩对比,柔软与坚硬的材质碰撞,线条与块面的空间关系,共同构成了极具秩序感的会议空间。
    茶室采用现代简约的风格,保留白墙的整体块面感。天花不同于其他区域,保留大块面,其上装饰黑色线条,与黑色的沙发桌椅遥相呼应。茶具则选用白色系,与桌椅形成鲜明的对比,垂落的双层吊灯在简洁的空间与装饰中丰富细节。
    房间内沿用统一风格,保持室内空间的一致性,设备带整齐排列在天花两侧,和灯具形成线条感,同时与地毯的纹路相呼应。空间中不止有线条,还有块面,两者相互结合,通过色彩与功能营造出简洁的办公氛围效果。
    房间内的布局大致相同,仅在细节上有所不同。棕色系的桌椅成为空间内吸引视线的亮色,皮质座椅更显沉稳,同时对木质桌面进行圆角包边,减轻使用期间的碰撞。        

  • 边洪镇 / 监理

    2023-04-24 15:57


    #标准施工#

    玻璃隔断安装        

  • 杜飞 / 设计师

    2023-04-24 15:44


    #办公智造#

    商务会所        

发直播

公开