当前位置:首页 > 设计圈
  • 王丹丹 / 设计师

    2023-04-27 08:23


    #办公智造#

    办公空间        

  • 王YANG / 设计师

    2023-04-27 08:04


    #办公智造#

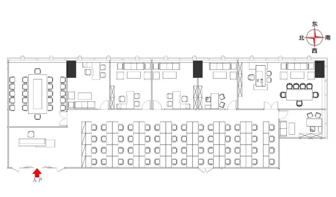
    岩板公司总部        

  • 敏颜 / 设计师

    2023-04-26 17:13


    #办公智造#

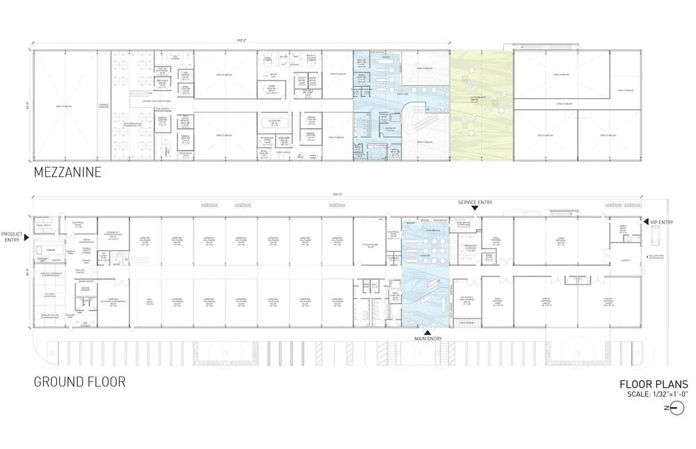
    整体设计概念旨在创建一个满足精确科技和性能要求的工作空间,同时展现艺术和科学的融合,就如同Nike的产品不止是舒适、还兼具尖端科技和艺术创新。此外,空间的高度灵活适配也是设计的重中之重。
    本案的每个生产空间都是按照运营要求设定的理想规格进行建造的。设计团队要在此基础要求之上对空间布局进行模块化、可重新组合和完全灵活的优化创新设计。
    底层的功能包括工作室,以及用于造型、装载和存储等功能的辅助空间。上层空间,即夹层空间,设有办公室、会议室和后期制作实验室。两个楼层都设有员工休息区。        

  • 敏颜 / 设计师

    2023-04-26 17:10


    #办公智造#

    项目的整体饰面材质非常简洁以与其功能相契合,整体配色也仅限于黑色、白色和灰色。地面采用的是用蜡和橡胶软木地板密封的混凝土地板;墙面是白色石膏板,局部根据功能需求装饰以毛毡板或穿孔金属板。开放的结构顶面装饰以声学元件,以营造舒适的声学体验,如织物面料软包的装饰板、吸音喷涂、以及声学天花条板装饰等。为了让天光在建筑中自由流动,设计尽可能的避免实体墙的构筑。
    建筑的中心部分包含主入口和横跨两个楼层的“社交中心”。楼上还有一处大型露台,这里设有木制的阶梯座椅平台、餐饮家具和乒乓球桌,为员工提供舒适的户外生活、与大自然的亲密接触。        

  • 敏颜 / 设计师

    2023-04-26 17:08


    #办公智造#

    室内的主楼梯扶手采用聚丙烯工业织物(内部是钢结构)围合而成。楼上的隔墙采用不同透明度的玻璃制作,这取决于房间的功能和边界
    这处旗舰工作室就像是一台设计精密的相机,通过一系列控制光线的镜头从而获得各个功能空间所需要的最佳光环境。当你在建筑的水平和垂直两个方向移动时,空间顺序呈现出各不相同的透明度和不透明度(硬的和软的)。这种多层次的材料构筑为建筑内部提供了更高程度的光质量,让户外天光能够以有意识的和可控的方式从周边进入建筑。
    此外,在这处大型空间中加入了艺术家的壁画创作,其绘画主题也围绕着与Nike和洛杉矶这座城市相关的运动员进行创作,清新的配色和动感图形点亮了黑白灰的背景空间。同时,建筑内部的环境导视系统也来自于艺术家的创作。
    设计团队强调,该建筑旨在提供一个人们可以聚在一起的物理场所——考虑到持续的疫情,这是一个特别重要的考虑因素。如今,随着工作场所的演变,工作场所现在是、并将继续是一个快速变化的有机体。尽管科技发展日新月异,工作也可以随时随地的展开,但仍然迫切需要一个能将我们连接起来的物理空间。        

  • 蓦兰 / 设计师

    2023-04-26 15:57


    #醉美庭院#

    阳光下的院子        

  • 小麦庆 / 设计师

    2023-04-26 13:39


    #办公智造#

    办公室设计        

  • 乌拉西 / 设计师

    2023-04-26 12:29


    #办公智造#

    现代商务办公空间        

发直播

公开