当前位置:首页 > 设计圈
  • 小麦庆 / 设计师

    2023-04-27 17:40


    #办公智造#

    清晰淡蓝色与活力绿植相互搭配相互呼应,红色的LOGO脱颖而出突出公司名称。整个办公空间充满生机让员工更加舒适的办公,让客户更加的舒适开朗。
    空间形式的考量更多指向公司的文化内核,由外而内,除了注重人文环境“生活感”的营造之外,更将关注点转向对“美”的追求,这种“美”既可以是热情活力的,也可以是沉稳克制的,既可以是人体本身之美,也可以是产品的专注之美,从而获得更佳的体验之感。        

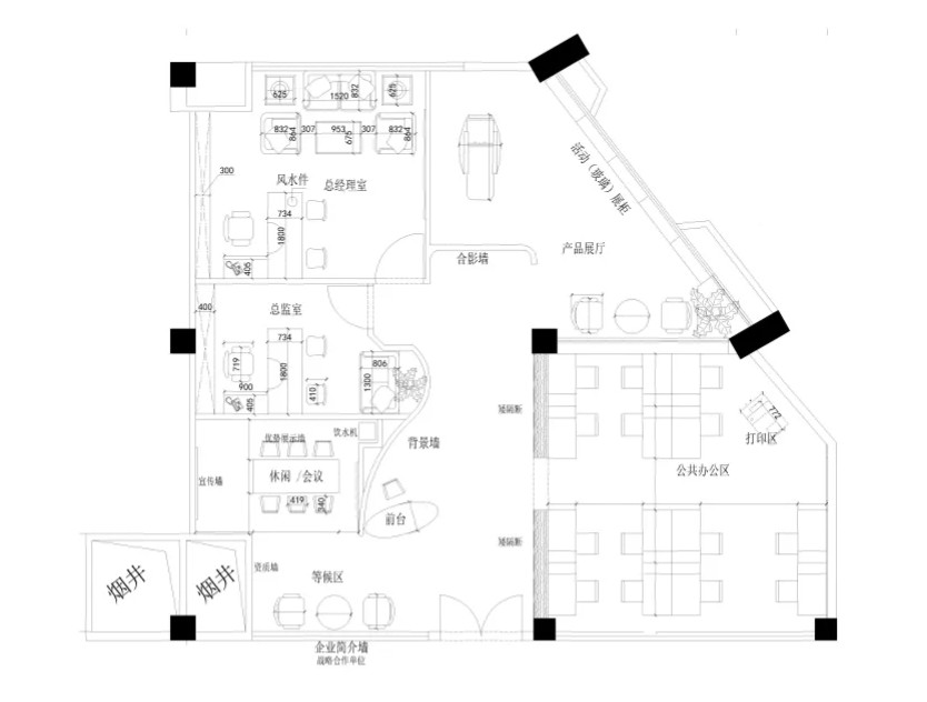
  • 蓦兰 / 设计师

    2023-04-27 11:57


    #醉美庭院#

    亮点        


  • #办公智造#

    时尚工业风办公空间        

  • 凌凌易 / 设计师

    2023-04-27 11:37


    #办公智造#

    办公室实景图        


  • #办公智造#

    空间感        

  • 椿楸 / 设计师

    2023-04-27 11:16


    #办公智造#

    设计团队以“设计可以改变生活”的设计理念再加上成都的人文特性,提出了“以人为本”的设计方案,旨在创造一个“更加自然和舒适”的工作空间。
    设计利用极简的线条定位了整个结构,以黑白蓝为主色调,在冷静的环境光里加入了这座年轻城市应有的活力蓝,部分办公家具点缀上明亮的黄色和绿色,呈现一种对未来感的包容与自然的贴近,透过色彩的传达表达办公环境的情绪价值,让人与环境进一步拉近距离。
    线条简单干净,质感满分,给到员工足够好的办公体验,加上可任意组合不同的功能形式,完全摆脱了传统办公家具的笨重感。模块化的办公家具,根据办公需求进行拓展、移动和调整改造,由此可开发出无尽的自定义功能。一组模块,便可诞生多种新鲜的可持续方案。        

  • 丽旻 / 设计师

    2023-04-27 09:00


    #办公智造#

    科技巨头华为的新办公室将创新和纯粹的功能与人性化和舒适性相结合。受创建现代工作空间的启发,设计师们一直在寻找更开放和更专注的空间之间的微妙平衡,同时满足公司的需求和要求。柔和和浅色渐变色调的平衡色调,结合对比元素和精致细节,赋予每个区域个性,给人一种舒适时尚的工作场所的整体感觉。            


  • 丽旻 / 设计师

    2023-04-27 08:58


    #办公智造# 办公室环境的多样性是通过在开放的工作空间和放松与合作的角落、咖啡区、用于个人谈话的壁龛(niches)以及各种会议和视频会议室之间的巧妙交替实现的。

发直播

公开