当前位置:首页 > 设计圈

  • #办公智造#

    施工现场进度        

  • 小筑 / 设计师

    2023-05-12 15:45


    #标准施工#

    设计节点分享        


  • #办公智造#

    办公室实景细节        

  • 木子李 / 设计师

    2023-05-12 15:06


    #办公智造#

    入口处采用大面积玻璃窗,以线条构成的LOGO墙引导向两侧区域,在灰色地毯的基础上增加色彩线条的对比,在无形中形成韵律感。
    走廊两侧房间均用玻璃墙作隔断,以减少狭长走廊的封闭感,条纹地毯与天花通风口形成的线条作路线指引,同时强化功能分区。
    办公区集中在LOGO墙后,用格子柜和办公桌、颜色样式不一的地毯分割开走廊与办公区域,柱子贴合LOGO颜色进行包裹,在黑白空间里保持小面积的亮色,点亮空间氛围。
    茶歇区设置在办公区一侧,作为休息放松的地点,紧挨窗户,在保证采光的同时可以眺望远方舒缓心情,与外界空间进行连接。从顶部垂落的圆形吊灯与下方的装饰物件在色彩、形态上相互呼应,部分漆上颜色的柜子点缀完善空间,同时将茶歇区与办公区形成一个有联系的整体。        

  • 木子李 / 设计师

    2023-05-12 14:56


    #办公智造#

    茶歇区设置在办公区一侧,作为休息放松的地点,紧挨窗户,在保证采光的同时可以眺望远方舒缓心情,与外界空间进行连接。从顶部垂落的圆形吊灯与下方的装饰物件在色彩、形态上相互呼应,部分漆上颜色的柜子点缀完善空间,同时将茶歇区与办公区形成一个有联系的整体。
    会议室分为大中小三种类型,黑与白之间的色彩对比,柔软与坚硬的材质碰撞,线条与块面的空间关系,共同构成了极具秩序感的会议空间。
    茶室采用现代简约的风格,保留白墙的整体块面感。天花不同于其他区域,保留大块面,其上装饰黑色线条,与黑色的沙发桌椅遥相呼应。茶具则选用白色系,与桌椅形成鲜明的对比,垂落的双层吊灯在简洁的空间与装饰中丰富细节。
    房间内沿用统一风格,保持室内空间的一致性,设备带整齐排列在天花两侧,和灯具形成线条感,同时与地毯的纹路相呼应。空间中不止有线条,还有块面,两者相互结合,通过色彩与功能营造出简洁的办公氛围效果。
    房间内的布局大致相同,仅在细节上有所不同。棕色系的桌椅成为空间内吸引视线的亮色,皮质座椅更显沉稳,同时对木质桌面进行圆角包边,减轻使用期间的碰撞。        

  • 王丹丹 / 设计师

    2023-05-12 14:27


    #办公智造#

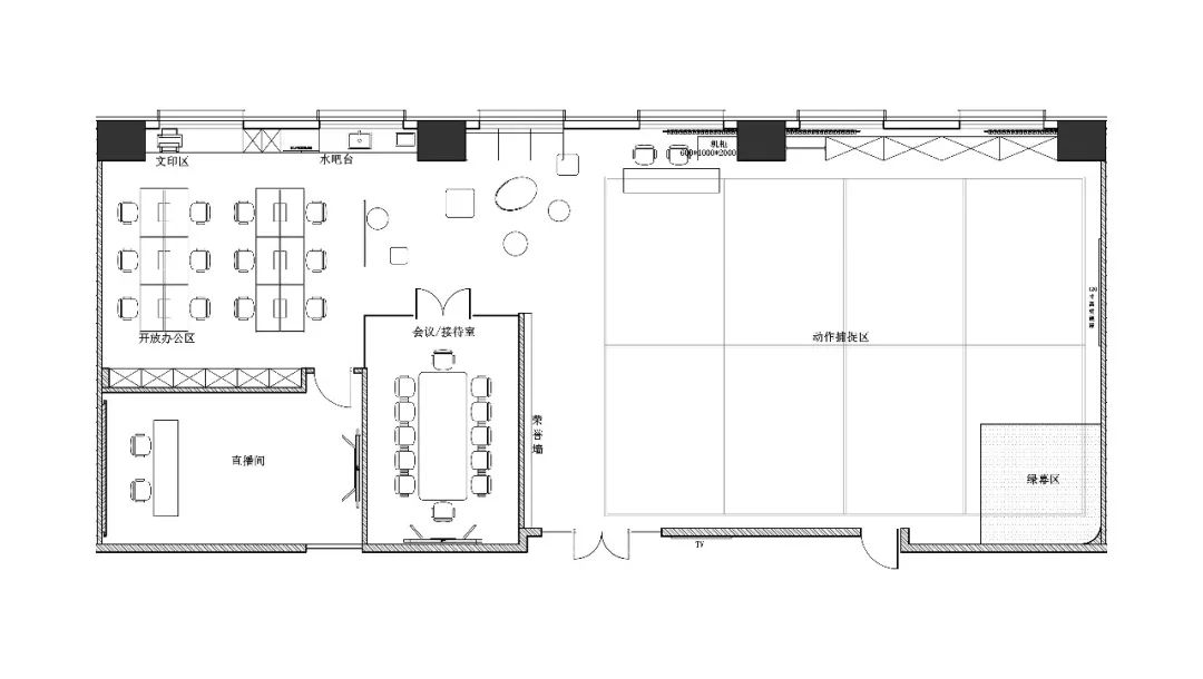
    简洁的门头效果和LOGO,用简洁的线条描绘出空间的形态,半透明的材质引导视线向内,黑与白的相互碰撞,虚与实的交汇融合,在影影绰绰间瞥见空间的语言。
    在黑白空间中探寻行动的轨迹,入口左侧设置个性化展示柜,在边缘处用灯带打亮,营造出一块明亮的空间氛围。由于场地设备的特殊性,大部分空间都在地板之上另设地毯,窗帘也采用深灰色不透光的材质,在场地一角设置绿幕无影墙,以满足场地工作过程中的需求。入口右侧转角的墙面制作成品牌形象墙,与左侧的展示墙面相互呼应,提升整体空间的完整度。
    将场景内相对开放的空间顶部漆黑,在一定程度上划分功能区域,以灰色为主色调,个性化的现代沙发茶几造型简洁流畅,材质柔和。会客区和办公区之间仅使用镂空方形隔断,纤细线条的LOGO与其装饰自成一体,减少了整体空间的拥挤感,使各个小空间相互共通。
    办公区桌面与电脑配件选用白色系,在灰黑色的空间里独树一帜,减少深色系所带来的沉闷感。柜面和部分空间与墙面相互结合,节省空间的同时,又准确地进行了区域分割,营造出办公空间的秩序感。
    直播间属于整个空间内的私密空间,故而在整体装潢上有别与外部区域。在吊顶之上装置软膜天花,以提高室内的明亮度,墙面除LOGO外不再添加任何装饰,使视线重点集中于直播人员之上,满足直播效果需求。
    会议室以白色为基调,仅地毯为深色,不规则透明玻璃门减少房间封闭感,增加活力,同时与邻近休息区的圆形座椅和边线柔和的logo相互呼应,使整个场地形成一个完整有联系的空间。        


  • #办公智造#

    入口处采用大面积的玻璃和简单硬朗的黑色门框,营造室内通透明亮的效果,配以简洁的前台与LOGO背景墙,用线条勾勒出空间和功能分割的曲线,增加律动感的同时,随着线条探索空间。
    在繁忙的工作中适当地休息放松,劳逸结合。开放的休闲区不仅仅是短暂休整放松的地方,同时也是沟通交流的场所。折射的光影,充足的自然光,舒适的座椅,营造如家一般的舒适环境。个性化的圆形沙发茶几吊顶,犹如宇宙中群星点缀。        


  • #办公智造#

    小会议室共有3间,均可容纳8人,在黑白灰的基础上,棕色木纹桌面点缀中和。墙面设置书写展示区域,同时配备投影设备,满足多样化的办公需求。
    在大会议室的设计中,延续了空间整体风格,利用重复排列的天花造型与灯具,形成严谨的秩序性,浅色木纹桌面使地整个空间在保证秩序感的同时,提升空间里的明快感。
    办公区分布在休闲区两侧,可容纳百人以上,采用开放式的设计,没有墙体和隔断,将空间变得开敞与包容。整体空间以黑白灰为主,与柔和的木质桌面相辅相成,使空间更具有沉稳的氛围和包容性。
    小茶室区别于其他空间,以木质为主材料,凸显柔和温馨的氛围,独特木质方形茶椅更贴合整体氛围,从天花上垂落的白色现代吊灯照亮主体,呈现出一种自由舒适的洽谈环境。
    黑白灰的经典搭配总能给人一种干练精英感,同时为空间增添沉稳可靠的氛围。简洁的装饰使空间更具可塑性,格子储物柜在满足储物展示需求的同时,使空间具有一定的秩序性。
    总经理办公室延续空间整体风格,辅以木色作点缀,在简洁的空间里最大限度地沉浸工作,创造无限的可能。办公室内设有会客区域,黑色沙发和玻璃茶几的组合,与深灰色杂纹地毯相互呼应,为空间增添沉稳可靠的氛围。        

发直播

公开