当前位置:首页 > 设计圈

  • #办公智造#

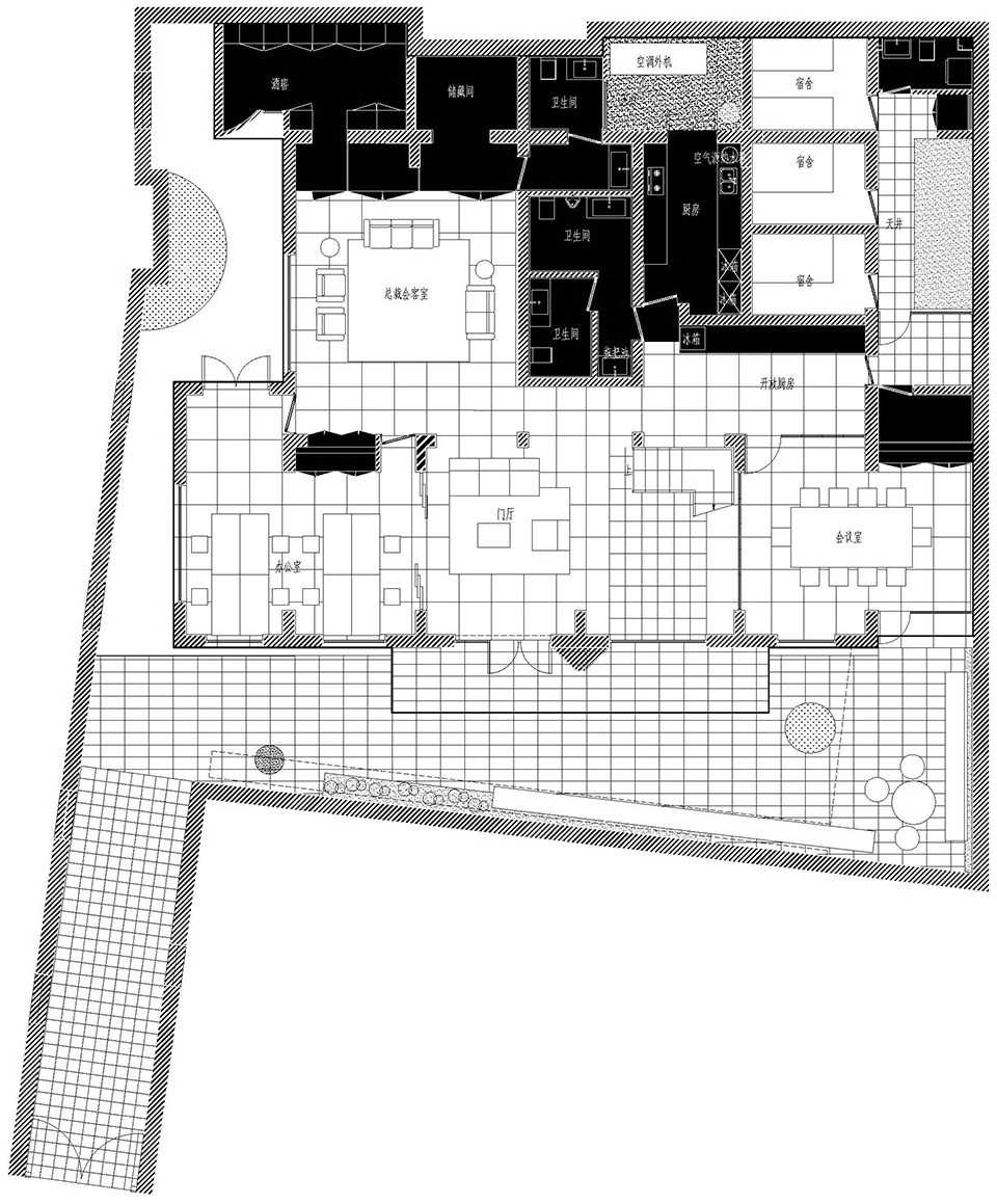
    改造范围内唯一的卫生间功能区被设计师从原会议室内置出,并由原共用一体式改造为性别分隔设计,有效的避免了客户线路绕行,为客户及律所员工提供了更为人性化的空间体验。        

  • 小筑 / 设计师

    2023-05-13 18:39


    #标准施工#

    背景墙        


  • 承蒙时间不齐,感恩一切给予。        

  • 吕行者 / 设计师

    2023-05-13 16:16


    #办公智造#

    房屋底层原本附带有低矮杂乱的搭建,只有一个能被完全看到的立面,但西南角有所缺失。我们首先拆除了房屋西侧的门房,将其打开为另一个与室内对景的庭院。由此,建筑获得了体量上的独立。我们将建筑西南角的体量补齐,形成轮廓完整的正立面。它形成这栋建筑特殊的时刻:首先立面的完整与抽象将建筑从其繁杂的环境中抽离出来,打开的转角又打破了立面洞口重复的节奏,并在内部提供了向外的景框。这个带有转角洞口的半私密露台,它是对本项目非常有限的室外空间的补充。
    立面选用与周边老洋房外墙涂料相近的石灰石,表面通过荔枝面处理与老洋房的拉毛肌理呼应。为了解决与周边楼房间距过近的对视问题,外窗玻璃全部金色贴膜。尽量完整不加分格的玻璃、L型滴水、不锈钢窗套,等光滑纤细的要素,使建筑与周边洋房产生轻微的差异。
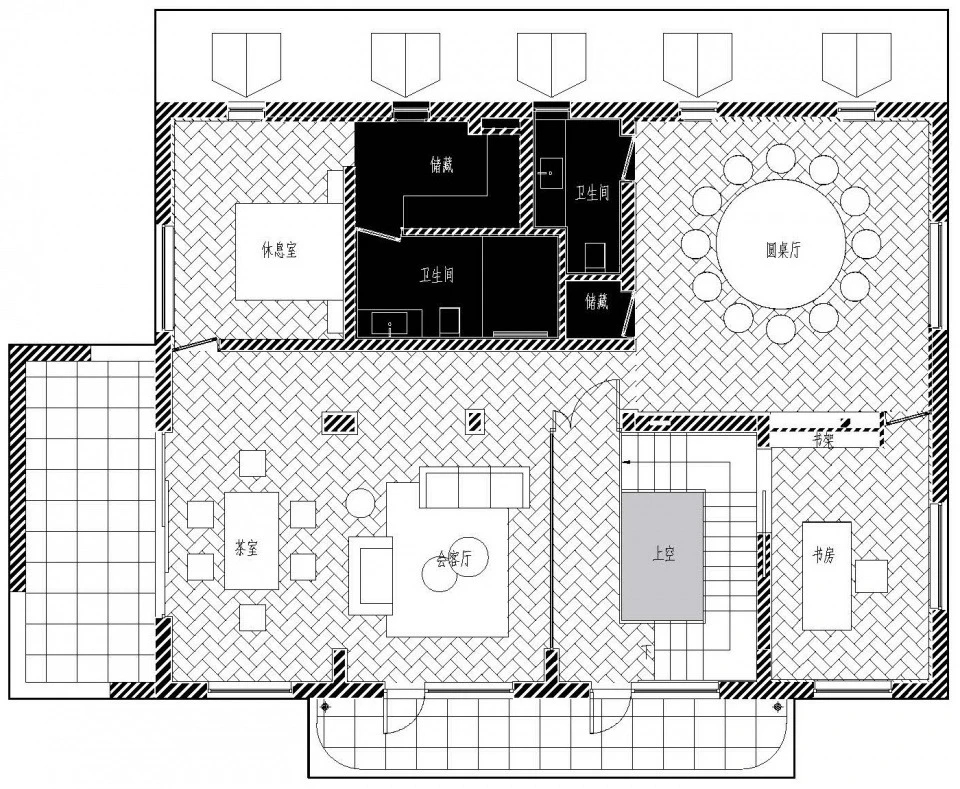
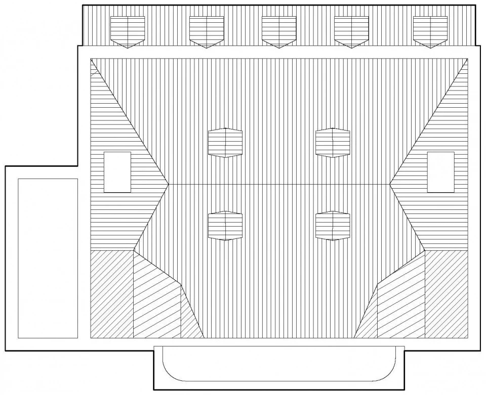
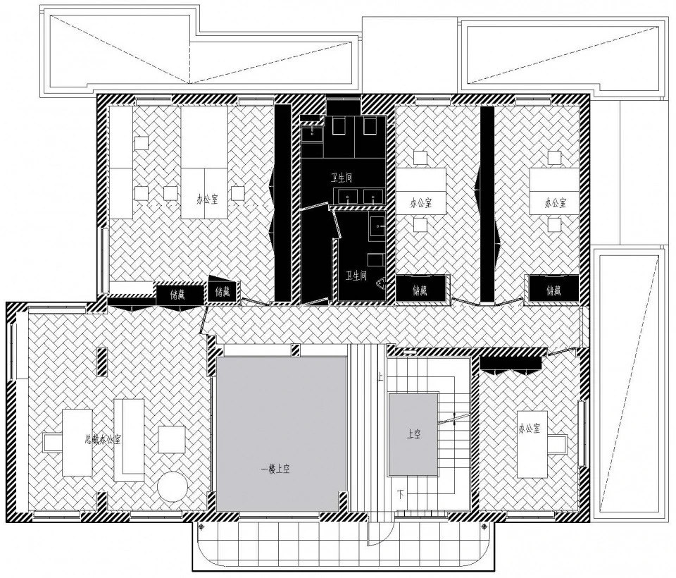
    本项目为企业独栋办公。一楼和二楼作为公司办公人员的工作空间,三楼作为个人休息与会客空间。设计取消了原本位于北面的楼梯,在南侧打开了三层通高的中庭空间,新建的折跑楼梯和连桥形成面向中庭漫步式的流线。栏杆根据不同视角所需的高低效果,采用不同做法:实心,或者顶部设有金属栏杆,它又延伸成为固定家具的一部分。        

  • 吕行者 / 设计师

    2023-05-13 16:13


    #办公智造#

    窗口的处理是本项目中有特点的要素。考虑到窗洞较小,上口位置偏低,设置挂杆或常规窗帘盒的效果都不理想。我们将墙体整体加厚,形成略小于原始窗洞的另一层洞口。这个构造同时解决几个问题。首先窗帘轨道可以隐蔽安装,窗帘拉起时也会与墙头形成更完整的效果。其次是可以较好地隐藏铝合金窗较粗大的窗框尺寸和施工瑕疵。最后是方便将踢脚与墙面做平。        

  • 吕行者 / 设计师

    2023-05-13 16:10


    #办公智造#

    在项目落地过程中,对中庭四周的短肢墙进行了钢结构加固,并在多处墙体和洞口跨度较大处增设钢梁。考虑到本项目的使用定位和空间氛围,并未采用暴露补强结构的做法。主材采用涂料、灰绿色墙纸、橡木地板、枫木饰面。        

  • 小筑 / 设计师

    2023-05-13 16:04


    #标准施工#

    轻钢龙骨石膏板吊顶
    灯槽造型系列        

  • 易壮壮 / 设计师

    2023-05-13 15:39


    #办公智造#

    设计效果图        

发直播

公开