当前位置:首页 > 设计圈

  • #办公智造#

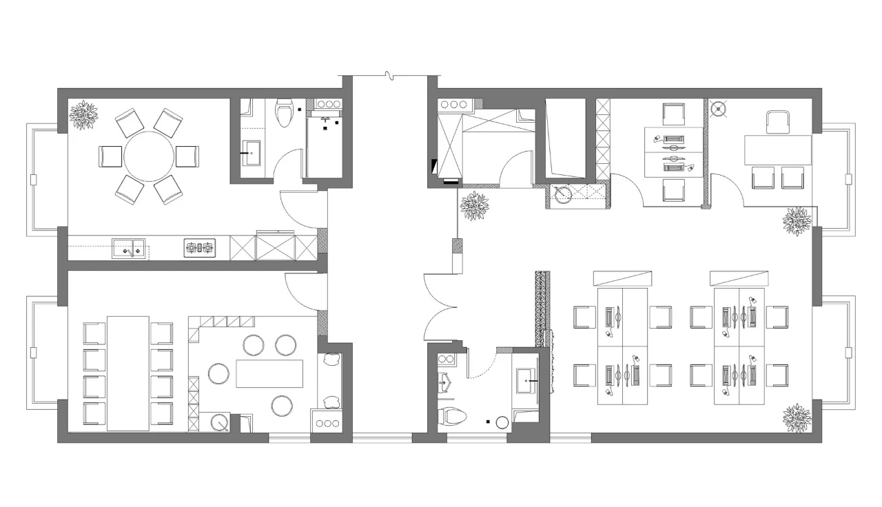
    灰色与白色是空间的主调。设计巧妙的加入明黄色标志色,如一楼开放工作区墙面上创意独角兽图形设计、桌面上精心置放的花盆和文件夹,一抹亮黄划过冷峻静谧的空间,犹如创意灵感霎那闪现。独角兽的创意图形设计已经成为IND Architects工作室的新标签。        

  • 陈澄 / 设计师

    2023-05-21 09:13


    #办公智造#

    中式办公空间        

  • 易壮壮 / 设计师

    2023-05-21 09:05


    #办公智造#

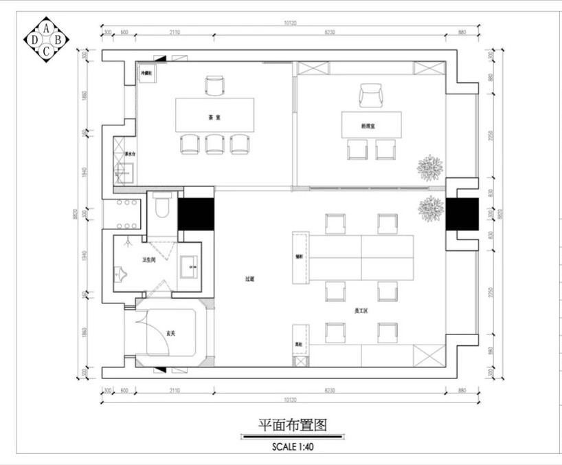
    一茶一世界、一味一人生!一天繁忙工作后,很多人都想约几个朋友品茗聊天、放松心情。尽管出门就见茶坊和咖啡厅,但是,这种场所标榜的幽雅安静却经常被喧哗打破,也就打断了闲适的心情。其实,不妨在办公空间打造一处清新雅致的品茶处,燃一线香,沏壶好茶,在行云流水的琴音中体味淡泊的心境,细品袅袅的茶香,这未尝不是现代生活中返璞归真的诗意栖居。
    茶歇区和总经理办公室打通,让整体空间更为开阔,不会显得狭隘,墙面背景以及地面铺贴的划分使得空间在融合的同时有了明确的功能分区。
    茶歇区,新古典风格的金属花片与充满意境的山水画背景搭配,给整体营造了一种高山远水的禅意氛围,忙余时与两三人来一盅清茶,享受一份悠然。
    员工区跟过道之间设计了柜体区隔,让员工区增加了私密性,隔断处同时又兼用了吧台,合理得到了利用。同时吧台处的金属吧凳和员工区的工艺吊灯都采用了同样的金属材质,这些金属元素与金属雕花玻璃隔断及装饰屏风一起,相互呼应,从而使得整个空间更为时尚强烈!
    员工区用两侧对称的吧台与公共走廊分割开来,划分干净利落,但不会减弱空间的开阔感。走廊远端再饰以一副与茶歇区背景风格一致的山水画。        

  • 易壮壮 / 设计师

    2023-05-21 09:02


    #办公智造#

    经理室的背景采用了偏暗的蓝色,与深沉的木色搭在一起丝毫不会觉得不协调,反而在沉稳中透露着一股时尚感。
    员工区不做分割,便于同事之间的工作交流,也有助于营造和谐的办公室气氛。

  • 夏毅 / 设计师

    2023-05-21 08:54


    #办公智造#

    原装修案例,要换业主了!        


  • #办公智造#

    我们就决定围绕其产品诉求来展开空间设计,努力通过办公环境的营造,来衬托呼应其产品的定位和公司的立意。保健品的目的是让人更健康,更有活力;因此“绿色”、“阳光”、“健康”成为我们本次空间设计的核心要义。
    原木对应自然,绿色对应生机;进门的地面,一方面从功能使用出发,二方面从效果平衡出发,采用灰色大理石瓷砖铺设。logo墙下方,则做地面凹入,铺设白色鹅卵石,让这块区域更有一种生机自然的感觉。
    开放式办公区域,功能上主要为:水吧台、阅读书柜隔断、以及八组办公桌椅。地面,原木色石塑地板,看着自然,用着则硬度更高,静音效果也更好。墙面大面积以浅灰色硅藻泥为主,绿色环保;logo背景墙反面,则木饰面跟过来一段,然后以一面绿植墙面收掉,前后呼应,自然而清新。        


  • #办公智造#

    经理室,与开放办公区以一整面顶天立地的玻璃墙(门)进行隔断,通透连贯,后期再装铝百叶,根据使用需要,方便控制空间的私密需求。墙面没有多余的装饰,以硅藻泥一面墙为主要背景,其余墙面则刷白色乳胶漆。地面原木色石塑地板一统跟进。整体空间简约,通透,阳光。
    喝茶区域,主要用来接待客户和朋友。半高的方格木作隔断,让这个区域有一种明显的围合感,但由于这个空间总体不大,因此半高,可以让视线继续延伸,有围合不局限,坐着安定,看着则相对开阔些。
    会议区,和喝茶区在一个空间,有区隔但连贯的,这样总的感觉会更大气舒适些。会议桌顶着一端,为一个开放式展柜,主要用来展示摆放公司产品,这样无论是客户介绍,还是员工培训,产品在边上,都将更加方便和直接。        


  • #办公智造#

    办公实景        

发直播

公开