当前位置:首页 > 设计圈
  • Bobo / 设计师

    2023-05-21 14:52


    #办公智造#

    办公的核心设计,是要进行恰到好处的“留白”。在为数不多的色彩与装潢中,在打破局限、创建趣味与高效的同时,予人以“放空”。
    在空间中使用黑白两色,勾勒干净利落之感,采用少量亮色软装点缀出空间的活力感,以此强化使用者对空间的视点,同时增强人与人、人与空间的互动,达到彼此舒适的状态。        

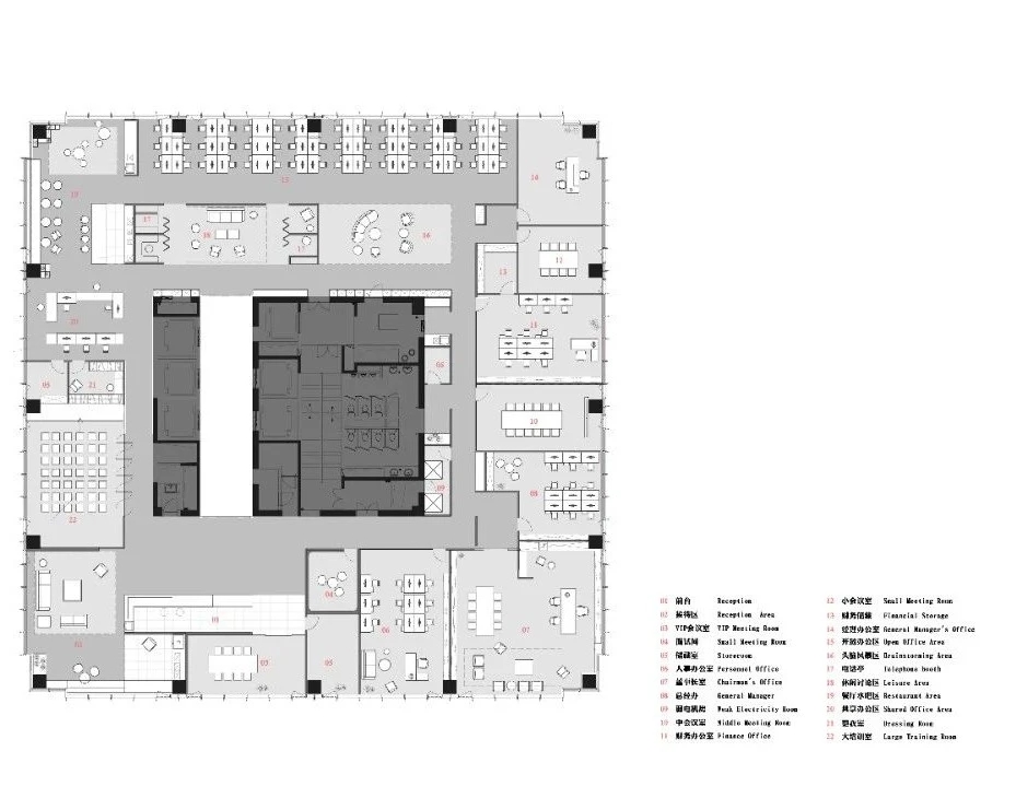
  • 杨梅酱 / 设计师

    2023-05-21 12:49


    #办公智造#

     高奢品质办公室        

  • Mr.Wang / 设计师

    2023-05-21 12:48


    动线设计,空间规划,灯光布局!周六保证不休息,周日休息不保证!        

  • 刘静 / 设计师

    2023-05-21 12:38


    #商业空间#

    JD游客服务中心,卧枕于JD东线旅游的核心区,融于万亩森林与江河之间,是JD旅游度假区的游客接待服务区。基于这样一个大的环境及区位优势,JD游客服务中心紧扣自然生态,亲子人文的主题,风格上采用自然主义,以生态环保为前提,塑造时尚简约又具现代感的服务空间。
    进入游客服务中心大厅区域,主要由大型服务接待台,一整面的LED电子显示屏墙,以及一个完整景区的模型沙盘组成。这样的配置,从功能目的上讲,首先是为了在第一空间序列上,给游客提供直接,便捷的服务,其次也是为了在第一空间序列上,就能够直接的向游客相对集中的介绍JD景区的特色特点,以及当地的风土人情,游玩活动等。通过景区沙盘模型,游客可以直观的通览鸟瞰整个景区的大概,而通过LED电子屏墙,服务方可以根据需求,定制各种针对性的景区信息,活动,向游客进行展示和宣传。        

  • 刘静 / 设计师

    2023-05-21 12:36


    #商业空间#

    游客服务中心的二层,主要设计配置了培训课堂以及顶层大景观露台。培训课堂的设置理念,主要还是基于游玩中的“亲子教育和儿童科普”,在JD这一特殊的景区地理环境中,提供一些结合当地的科普教育活动。而顶层景观露台,则给游客提供一个独特的观景,休憩之处。
    游客服务中心边上副楼,则主要规划为住宿酒店的功能,在内部空间布局上,主要采用“通铺”、“上下铺”的设计理念,总的呼应自然,亲子的定位。在空间材质彩色上,主要采用“木本色加白色”的搭配,塑造一种明亮,自然,有趣的住宿空间体验。        

  • 毛均峰 / 设计师

    2023-05-21 09:48


    #办公智造#

    我们的设计灵感正是来源于人眼对光的感知,所有的形体与色彩是在“光”中被感知。与其说是设计师设计了空间与物体,倒不如说光赋予一切以形状。空间的平面排布“逐光而居”,每个区域都以最大程度引入自然光线为原则,让员工获得360度的绝佳视野和光线,享受沐浴着阳光的现代化工作空间。
    从南侧电梯厅进入公司,前台首先构成了人们对企业的第一印象,传递出企业严谨、专业和富有品质感的形象。雅士白天然大理石沉稳内敛的气质借由玻璃框架支撑,轻盈通透的感觉抵消了大理石材密实的分量感,石材对光线的反射和玻璃对自然光的折射使得入口区呈现出一种令人难以置信的色泽。借由吊顶的发光膜,整片区域散发出和谐而统一的氛围。
    医疗办公的职业属性最强,尤其强调稳重、柔和的氛围。太多的装饰和色彩容易使人分心或是感到不安,因此前台、接待区的色调以灰白为主,家具和软装的材质是舒适而温馨的纤维触感。如果还有什么让人分心而不安的话,只有窗外的阳光和飘忽不定的云朵。
    员工办公区坐北朝南,享有整个空间最为充足的阳光,有利于提升办公的舒适度和工作效率。在完全开放的空间中,设计师在其中置入了两个较为私密的“黑匣子”作为功能性的分割,咖啡吧、休闲区、打印区都沿着这一流线布置,能最大程度上方便员工办公和休闲的需求。公司VI色调中的橙色作为极少量的暖色点缀其中,打破了原有的充满秩序的色彩平衡,似乎是一种试探性的召唤,邀请人们加入友好而轻松的交谈氛围,获得片刻的休息和灵感乍现。        

  • 毛均峰 / 设计师

    2023-05-21 09:46


    #办公智造#

    在整面黑色分隔墙中,她又变成发光的“瞳孔”,在流窜的视线中渴求聚焦和凝视。让每次对视成为一种心照不宣的“合谋”。
    管理者需要更私密的空间以获得更深刻的思考。依照其个人喜好,设计师从莫兰迪画中提炼出一种隐晦的苦灰色调作为主色。将色彩从情绪中抽离出来,就连木质背景墙的色泽也消融其中,一种介于疏离和孤独之间的平和。材料有自己的形式语言,不同材质在空间中兼容并呈现出一种品质。
    办公室的设计关乎一个企业的品牌形象和员工的效率,在本案的设计过程中,我们依然秉持着予舍予筑质朴的设计理念,尽可能去利用已有的光,减少人造光的干预。值得我们设计师去思考的是,当客户将表达自我的权力交于设计师手中时,我们如何去帮助他们更好地表达,如何在有效的沟通中达到理想的平衡。        


  • #办公智造#

    时尚简约的灰白色调、极简的设计语言,IND Architects为自己设计的办公空间,淋漓尽致地展现了“简约、纯粹、宁静”的建筑美学与“睿智、冷峻、沉稳”的硬朗质感。作为设计公司,办公场所无形中成为了公司无声的广告代言,让客户在第一时间感知公司文化和设计创意。
    整个空间被划分为两大区块:一个是双层挑高的设计师工作区,一个是位于夹层的舒适的建筑师工作区,这里还有一道长长的背景墙用以展示目前正在进行的项目的草图与图片。除去这两大开放空间,一楼还有接待区、一间会议室、咖啡茶歇、;二楼设有一间办公室、一处休闲区、一处开放的员工休闲会议空间。当然在一楼的开放空间还设有两三人的洽谈小圆桌;在入口处为客户精心准备的衣橱、在会议室还有暗藏的员工衣橱。        

发直播

公开