当前位置:首页 > 设计圈
  • 敏颜 / 设计师

    2023-05-25 21:46


    #办公智造#

    由多个小房间打通而成的中部空间行成开敞办公区,便于同事之间的交流协作,这种“透明感”在日常的工作状态下显得非常生动。
    阳台是室内空间的延伸和丰富,让室外景观参与进来,自然光随处可见,朴素且舒适的设计语言,让我们重新感受工作的状态        

  • 敏颜 / 设计师

    2023-05-25 21:44


    #办公智造#

    材质细节        

  • 夏毅 / 设计师

    2023-05-25 06:50


    #办公智造#

    易筑原案例        

  • 小麦庆 / 设计师

    2023-05-24 09:44


    #办公智造#

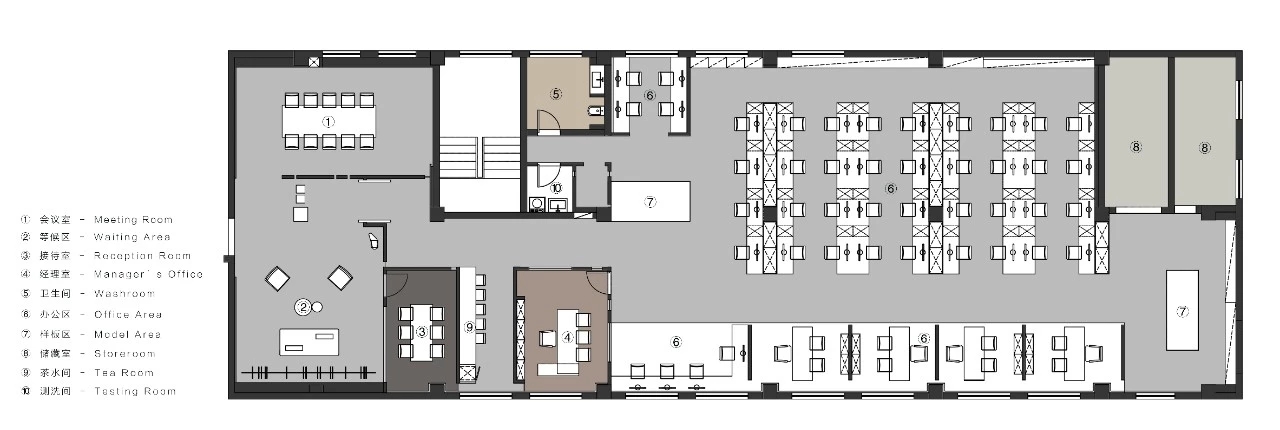
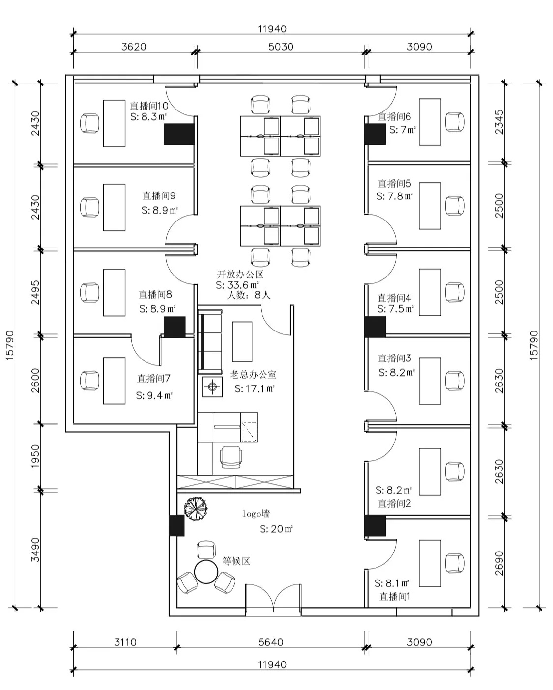
    三版直播办公室平面布置图        

  • 杜飞 / 设计师

    2023-05-24 09:33


    #办公智造#

    极简现代办公设计        


  • #办公智造#

    这个办公空间主要为服装材料研发部和设计部,甲方需要在短时间内完成改造,且造价成本不高。对于办公空间设计要求为年轻化、创新同时兼具创意感,空间需要划分出区陈列面料,会客区、会议室,同时大面积用于综合办公,便于团队研讨。
    旧房改造工期较短,总工程历时不过30天,现场需全部拆除,且不影响其他楼层办公,二楼厂房消防设施及楼梯位置尴尬,在平面布局中作为重点考虑。地面采用工程地板,墙面保留原始水泥柱和局部墙体,白色钢架方便置物陈列,并且我们在每个工位上方也做了纵横交错的白色架子,作为隔断也方便把面料随手挂在上面,以避免乱堆乱放。这些设计在方便节约成本的同时又起到了装饰作用。        


  • #办公智造#

    甲方对空间功能数量、工位数量及储藏数量有要求,并框定了造价及施工期限。有了限定也就有了局限,我们以简洁的手法融入现有的空间形态为切入点进行构思。动线通畅,色块清晰,功能分明。开放式现代化办公空间,改造之前办公区域相对幽闭、压抑的状态。更能使团队沟通便捷,有效。整个空间白色为主色调,呈现明快,干净,极简的设计效果。        

  • 椿楸 / 设计师

    2023-05-24 09:04


    #办公智造#

    生长的“希望之树”、墙面绿植、苔藓造景共同创造形成绿色循环的生态氧吧。植物与空间相生共融,消弭了屋内的沉闷感。置身于绿意盎然的办公区,在移步换景、清新治愈的氛围间卸下内心的疲惫焦躁,以愉悦松弛的姿态开启新一天的工作。
    天花流动的曲线光纤造型寓意科技时代的万物互联,与之呼应的地毯绿环跑道增添青春跃动的能量,一抹轻快的绿色由室内蜿蜒至户外景观露台,模糊有形的物理间隔,引领多元的空间无界交互。

发直播

公开