当前位置:首页 > 设计圈

  • #办公智造#

     高奢办公室实景图        

  • 丽旻 / 设计师

    2023-05-30 12:01


    #办公智造#

    弧线的形态源于自然,往往可以为人们带来更舒适、更柔和的视觉体验。借用弧形与生俱来的艺术美感点亮空间,打造好博独树一帜的风格。
    作为进入内部空间前奏的一部分,接洽室与前厅自然连接,顺势而为的木纹展现出鲜活的自然生命力,访客们可由此感知空间的情绪传递。

  • 丽旻 / 设计师

    2023-05-30 11:30


    #办公智造#

    入口造型灵感来源于开启健康之门,点明展厅的生命主题。门头造型和周围的景观对应,整体感强,灯光射线从内部延伸贯穿空间,使展厅框架感更强,寓意生命和自然都有遵循的规律可言。        

  • 丽旻 / 设计师

    2023-05-30 11:28


    #办公智造#

    “观、游、感”三大体系构成访客于展厅之内行走一遭的心灵体验。清晰明了的动线帮助访客快速了解展厅内的布局和陈列,同时还透过充满艺术感的具象化设计,譬如这道LOGO色的门,制造随意停留的机会,使得参观者感知深度加强,体会到不同以往的观览形式。        

  • 丽旻 / 设计师

    2023-05-30 11:26


    #办公智造#

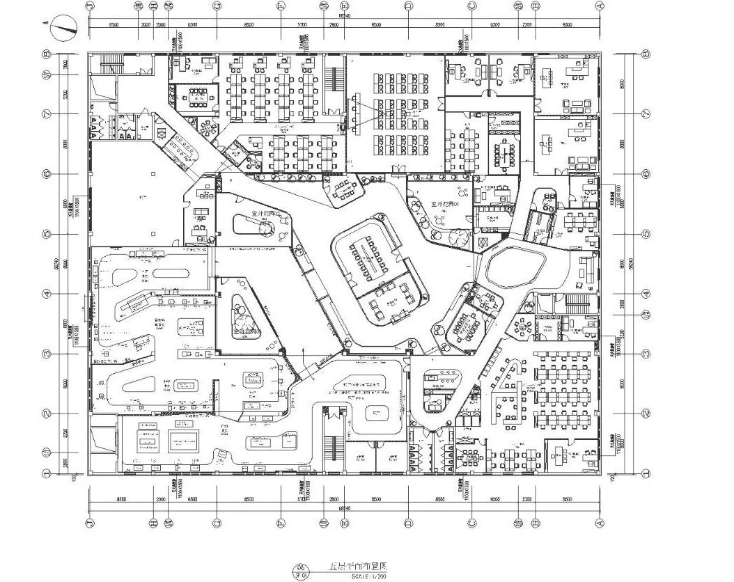
    5楼的整层楼面内打造成充满自然氛围的花园式办公场景,以承袭着天然肌理的石为主材,组构单元界面,通过微缩的高度及尺寸,将森林、植被、多肉等室外景观“搬移”至室内,构筑生态的自由和有机情景。        

  • 丽旻 / 设计师

    2023-05-30 11:24


    #办公智造#

    以极简手法,运用材质特性,糅合为一份毫无喧嚣的纯粹美感,使心灵回归自在本能,追逐自然与时间的流转,专注感受无声胜有声的沉静画面。        


  • #办公智造#

    电视剧中的办公室        

  • 杨梅酱 / 设计师

    2023-05-30 07:47


    #办公智造#

    共生造园办公室        

发直播

公开