当前位置:首页 > 设计圈
  • 王丹丹 / 设计师

    2023-06-05 14:32


    #办公智造#

    对于立面而言,建筑方案整合为一个品牌概念,同时安装了生物气候膜,这在应用自然照明的时带来了隐私性和能源效益,同时内部也不会过度增加热量,在黄昏时刻,空间可以变成一个通向室外的区域,就如同一个通透的游戏理念,其中安装了内部太阳能屏幕,可以按照需要打开或关闭,满足使用者的隐私需求。        

  • 王丹丹 / 设计师

    2023-06-05 14:30


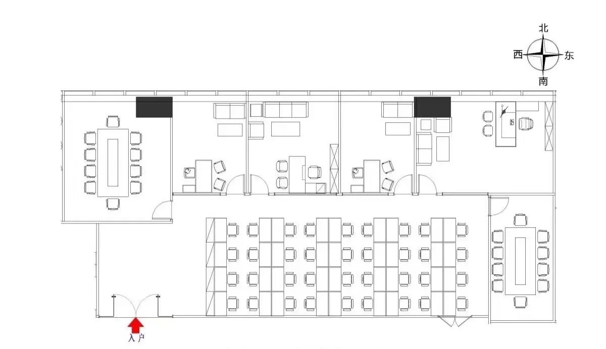
    #办公智造#

    图纸部分        


  • #办公智造#

    办公室实景图        

  • 木子李 / 设计师

    2023-06-05 12:48


    #办公智造#

    从入口大堂到电梯厅,大量使用了灰色花岗岩、木饰面和不锈钢材质,严谨而有秩序。
    通过将原有贴近核心筒的走廊外移,进一步产生内外两个层次的办公“厚度”;同时将内圈东西办公区抬高26公分,使得内圈使用者的视线和采光效果更为优化。相比内圈东西两侧的厚度,南北靠近内核部分进深变小,主要处理辅助空间功能。
    使用了玻璃的三种形式:超白钢化玻璃、钢化竖纹玻璃及竖纹玻璃加镜面的组合。即从全透明、半透明到不透明的三级过度。超白钢化玻璃主要应用在玻璃隔断和墙面装饰,竖纹玻璃主要用于吊顶及部分墙面装饰,竖纹玻璃和镜面组合主要用于不透明的半高隔断及柜门位置。        

  • 木子李 / 设计师

    2023-06-05 12:45


    #办公智造#

    预留在玻璃和墙面之间的距离,产生了一种无法接触的空气感;超白玻背后粗糙的水泥质感涂料,更像是刻意营造的博物馆中陈列的一片旧墙。退在纤薄光滑之后的粗糙质感,设计师希望使用者可以有片刻的视觉停留,产生更多针对色彩和块面之外的印象。
    竖纹玻璃和LED灯具的组合,成为天花采光的亮点。轻薄而透明的材质让入口玄关和走廊上空增加了某种未来感,经过玻璃隔断的反射,又进一步延伸进了两侧的空间之内。
    从不透明到半透明,竖纹玻璃能否有更多的“质感”?设计师受到杉本博司《海》系列摄影作品的启发,将竖纹玻璃和镜面结合,营造出一种意想不到超低反射界面,在隔断和柜门部位被大量使用。对周围环境反射的图像是模糊而冷静的,通过类似“失焦”的处理使其融入整个空间
    东西办公区内嵌了6个透明的玻璃盒子和4组不透明的玻璃半高隔断,这些盒子分别成为了相对开放的会议室和半开放的主管办公位。
    同时在走廊靠内圈的四个转角处,都预留了让视线穿通、放松的缓冲区。这些空间提供了更多的可能性,让不同部门的人在此相遇、交流。        

  • 木子李 / 设计师

    2023-06-05 12:42


    #办公智造#

    一直以来针对办公空间的设计原则,即使用相对基本的材料,强调不同材质之间的对比,追求轻薄透明的视觉感受。在保证高效的功能布局和动线组织前提下,弱化单纯追求风格化的装饰目的,给予使用者更多的思考空间。        

  • Diana / 设计师

    2023-06-05 12:25


    #办公智造#

    办公区域集接待活动,办公,水吧,为一体的多功能空间。
    在空间体量上,趋向于现代性和对称性,空间作为背景,要有足够干净利索的木饰面和客观性来支撑未来所有可能性的陈列变化!        


  • #易筑展陈#

    预期与效果相符        

发直播

公开