当前位置:首页 > 设计圈
  • 魏馨琪 / 设计师

    2023-08-30 22:09


    #办公智造#

    这不仅是一家设计公司,
    更是一家全屋定制展厅。
    形形色色的板材放置在板材厅,
    隐而不藏的灯光呈现出璀璨丰富的质感细节,
    以开放式的形式,与艺术对话。
    来访的客户可亲临感受到板材的材质与触感,
    真实感受到材质的纹理与细腻。        

  • 魏馨琪 / 设计师

    2023-08-30 22:07


    #办公智造#

    为每位顾客的完美落地
    定制工艺的细节与坚固的材料
    提高了生活品质也为客户省去时间与精力
    这里兼顾着多功能会议以及放置材料展示等功能
    每一次会议的灵感碰撞都源于此
    愿其成为理想的家庭/商业空间        

  • 魏馨琪 / 设计师

    2023-08-30 22:06


    #办公智造#

    仿木纹砖台阶的步入式灯光
    让访客即可感受到设计的材质也让步入的仪式感
    墙面留白,大小不一的展示墙
    摆放着历年获得荣誉项目的奖项与业主赠予的认可奖杯        

  • 小麦庆 / 设计师

    2023-08-30 21:20


    #办公智造#

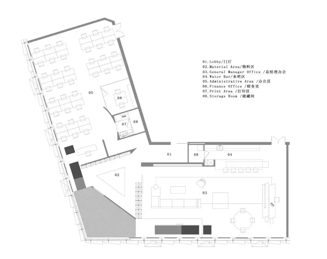
    设计师通过对空间气质的分析,优先考虑将“直线”形态列为贯穿始末的特征元素,来强调办公空间的专业度,极简的直线元素表达着空间序列的美感。
    整个空间运用无主灯设计,摒弃传统的吊线灯,简约天花造型搭配室内定制家具,让空间变得大气、流畅。        

  • 木子李 / 设计师

    2023-08-30 21:00


    #办公智造#

    整体办公空间的搭配方案以打造“松弛感”办公环境为主旨,在前厅以明朗干净的设计打通开阔感。用盆景绿植分割出前厅的休闲区,右边设置阶梯式脑暴区,透露着现代和充满活力的态度。        

  • 木子李 / 设计师

    2023-08-30 20:58


    #办公智造#

    集团化的办公需要适应不同的会议模式,运连网在办公会议区的设置考虑到了不同会议的特性,给员工设置不同的会议场所,提供更高效的讨论空间。        

  • 张曲峰 / 设计师

    2023-08-30 20:53


    #办公智造#

    开放办公区从工作模式、行为习惯出发,屏风式卡位保护了员工的部分隐私权,从实用性出发,提升办公室整洁性,呈现整个空间专业,自信的集团企业态度,给到访的人员带来更深层的信赖感。
    个人办公区选用板式油漆班台,深胡桃木色这样深色调搭配,能营造沉稳、稳定的空间氛围,让空间使用者在办公环境内更更加冷静面对细微繁琐的工作任务,从而做出最优的判断。        

  • 张曲峰 / 设计师

    2023-08-30 20:51


    #办公智造#

    会议室沿用其深胡桃木色搭配属性,搭配黑色会议皮椅。公司会议是传达公司经营理念,集思广益解决问题,头脑风暴寻求创意的核心场所,更是商务洽谈的重要舞台。        

发直播

公开