当前位置:首页 > 设计圈
  • 丽旻 / 设计师

    2023-10-16 16:38


    #办公智造#

    各种方案        

  • 饶阳 / 设计师

    2023-10-16 16:33


    #办公智造#

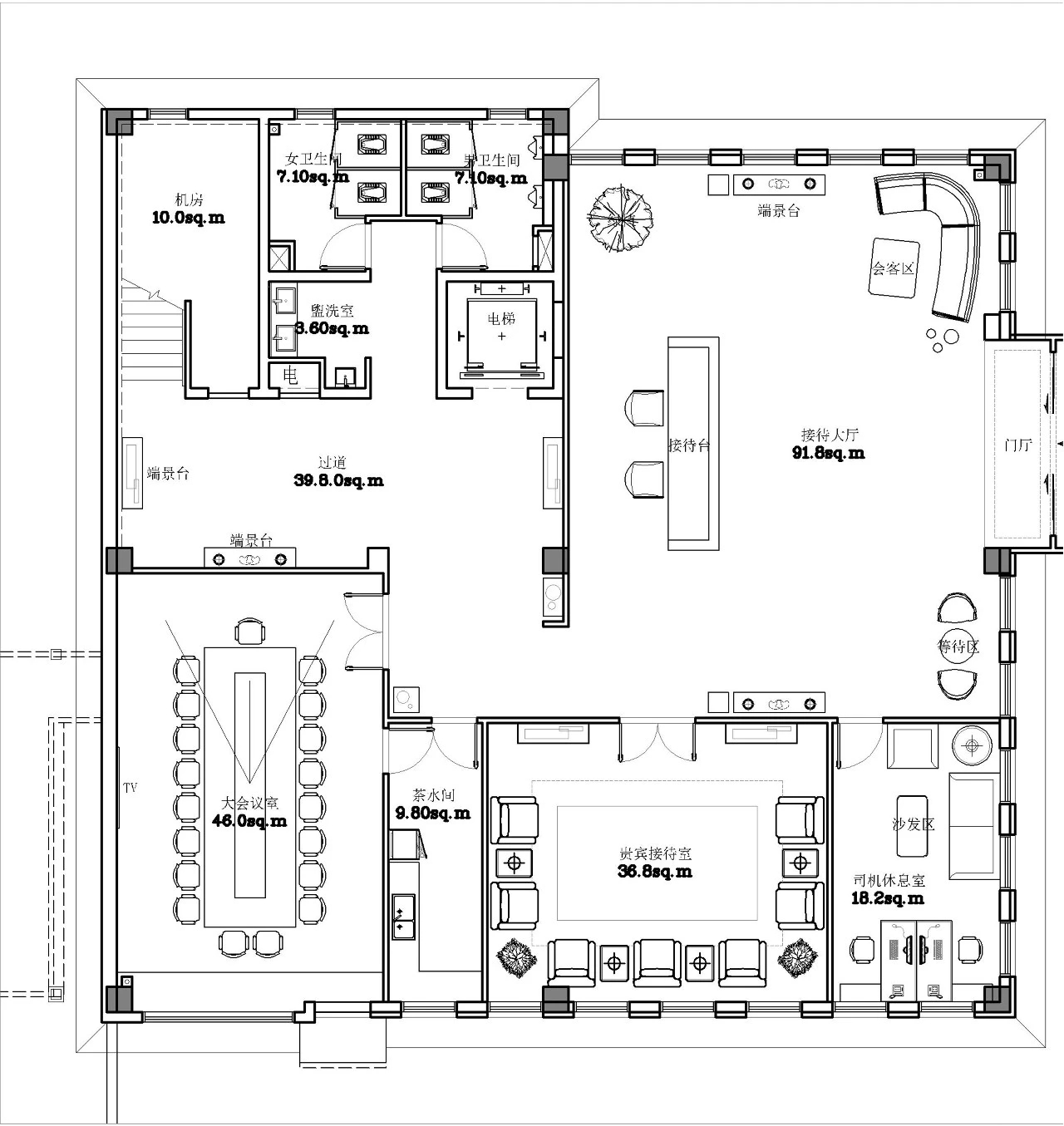
    一 层First Floor
    设计不是一味的风格化,概念化,而是需要切身的和业主相处,了解使用者对空间的具体要求及工作习惯,而后将功能性及美学相互结合打造出的一方雅韵空间。
    设计师运用建筑内层高较高的优势将首层空间构思成接待大厅、贵宾接待室、会议室及司机休息室等空间。
    纹理自然的大理石元素,加以带有高级感的驼色影木点缀,演绎出一种“低调的奢华”,令空间质感更为饱满。
    从彰显典雅、庄重、传承到实用体验,气派的接待室切近业主职能需求。深咖色的墙面分割及浅色墙面漆和黄铜元素的巧妙混搭让原本单调的空间更添层次,华丽感也瞬间提升。        

  • 饶阳 / 设计师

    2023-10-16 16:29


    #办公智造#

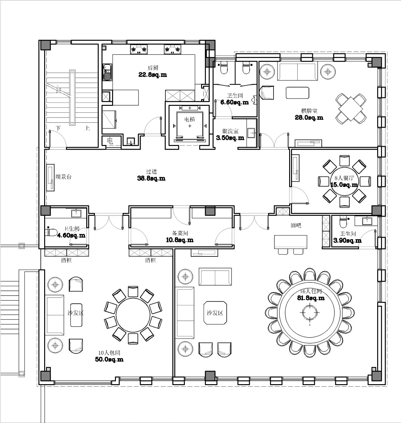
    二 层Second Floor
    相对独立却又互相联系的办公室之间秩然有序。是成本最小化,效果最大化。本空间最大化的保留了原有建筑结构,窗户与墙体的虚实相交,加上罗马帘的点缀,深咖色家具古铜色的金属包边,浓缩着意想不到的功能与细节。
    三 层Third floor
    在张力十足的线条勾勒、层次丰富的材质运用以及质感奢华的装饰细节下, 将古典元素与现代融合,为使用者带来一种奢雅的工作体验。

  • 饶阳 / 设计师

    2023-10-16 16:25


    #办公智造#

    四 层Third floor
    使整个空间优雅、低调、舒适、简单却又无损高贵的雅致。        

  • David / 设计师

    2023-10-16 16:02


    #办公智造#

    进入空间,你会惊喜的发现,设计师运用的设计手法不见了,而呈现在感受里的是化学反应后的空间......好的空间最终会在精神层面上与人发生互动对话,并产生某种共鸣......似乎一切并没有时间或某种特定历史留下的痕迹,寻找这个空间的独特特质?又是如何让原有的特质之美被找寻回来?
    这种精神互动的背后拆分开来,却是设计师理性与感性思维的互动,空间的本质、材质的本质都会以某种方式深印在人的思维深处,而设计者则要去感受某种记忆中的意境;通过空间里面材质、光影、家具陈设、时间还原出来。        


  • #办公智造#

     办公室实景图        


  • #办公智造#

    现代办公空间实景图        


  • #办公智造#

    我们选择了白与黑作为空间的主色,经典的简约配色,在还原空间本质的同时,更富有视觉张力。并引入咖色,弱化黑与白的冲突,营造更舒适且随性的空间氛围。
    细腻的涂料是空间的基底,木质是宁静且有力量的,柔和的自然纹理,提升空间的舒适度。玻璃则是清透而明亮的,以增加空间的透光性,形成轻盈的空间状态。辅以金属以及石材,利用其独特的属性,提升了空间的质感。
    前台区域我们以品牌色“黑”为主题,打造暗调空间。装点品牌灯箱、软膜与LED屏,让明与暗互相冲突,让暗更暗,让明更突出,从而彰显品牌调性。顶部区域则采用不锈钢水波纹,流动的视觉更有设计的态度,同时赋予空间更丰富的层次感。        

发直播

公开