当前位置:首页 > 设计圈

  • #办公智造#

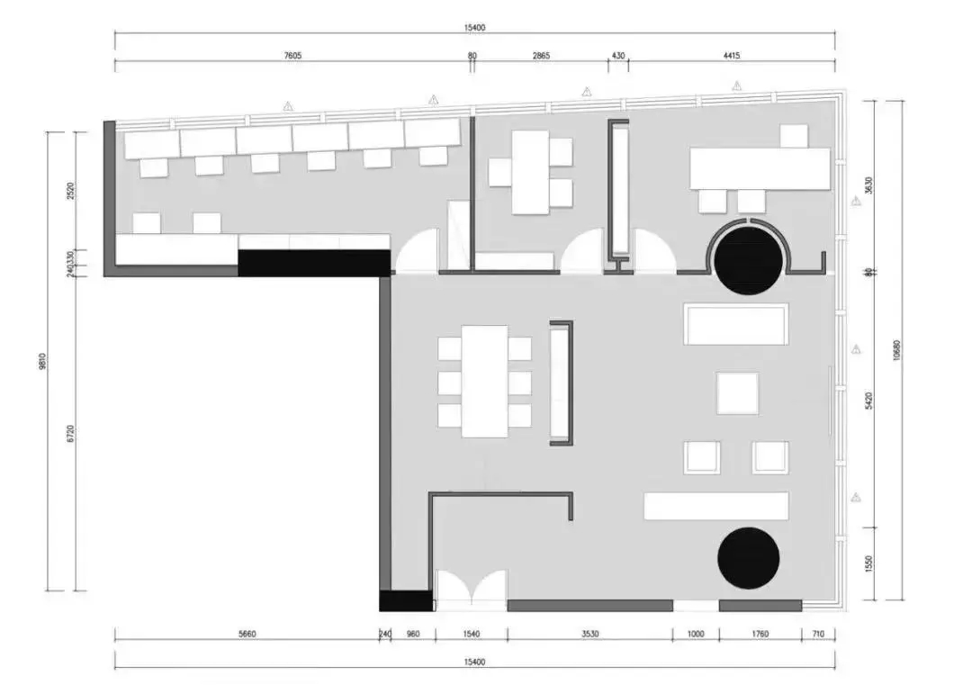
    从接待区胡桃木装饰的过渡空间可以直接来到由透明玻璃隔墙围合的大型会议室。胡桃木、黑色金属装饰、石材、玻璃,不同的纹理和质感构建了一个极为有趣的空间场景。
    宽敞的午餐室是平面规划的核心空间,是活动和聚会的中心场所。设计以可移动的家具创建空间的流动性和灵活性,便于随意重组开展各种形式的活动。漂亮的木纹肌理、时尚的花纹瓷砖、以及亮色的家具装点,为这里带来时尚活力氛围。
    一面由数百块金属板组成的特色墙,它们代表了每一位员工的价值观,一方面映射出他们积极的生活方式,一方面也如同DNA图形彰显于环境中。

  • 木子李 / 设计师

    2023-11-12 21:52


    #办公智造#

    空间入口的纯白背景墙,公司LOGO跃然进入视线,便给予人们无尽的畅想。简洁、安静、自然、永恒的空间气质翩然而至,朴质为表,内里追求自然、艺术、美学的浸润,于自然中探索灵动、隽永、纯粹的设计本真。
    右转进入空间内,设计师将原有柱子只做了最简单的圈围造型,正所谓“万物初始,大道至简”。
    在会客区,设计师用浅木色地板搭配纯黑色简洁的皮质沙发,营造视觉空间的跳跃,缔造和谐宁静的会客氛围。        

  • 木子李 / 设计师

    2023-11-12 21:51


    #办公智造#

    灵动简约的空间艺术营造,是富有情感与自由的净土,让使用者于时光流动中汲取宁静,长久以往,达至沉淀心灵的境界。
    在这个空间中,设计师用用简洁的设计语言书写生活的美好意境,在本色间追寻本真的自我。        

  • 木子李 / 设计师

    2023-11-12 21:49


    #办公智造#

    半封闭的隔断墙让空间拥有更好流动性,原木矮柜简单的搭配设计师收藏的茶杯,整个空间简单中显见一种令人神清气爽的特质。        

  • 毛均峰 / 设计师

    2023-11-12 21:35


    #办公智造#

    简洁中透露着冷静,使清晰的脉络在美学上达到一定的平衡感,铝方通从顶面延伸到墙面,结合错落有序的线性灯形成了极强的律动感!
    被黑白灰包裹的空间增加点绿色,顿时活灵活现!        

  • Mr.Wang / 设计师

    2023-11-12 21:19


    #办公智造#

    繁华背后的多样办公空间        

  • 猪猪侠 / 设计师

    2023-11-12 21:12


    #办公智造#

    窄体隐框门,摒弃了传统门型的粗壮线条,减少了视觉上的阻碍,与墙体风格和谐统一,使整个空间连为一体。        

  • Sue / 客服

    2023-11-12 20:21


    森林里,一只乌鸦想要搬家,因为它被小动物孤立了。鸽子告诉它:“你不改变自己,搬家到哪里,都没有用。”
    这就是“乌鸦定律”——人生痛苦时,需要改变的,不是别人,是自己。        

发直播

公开