当前位置:首页 > 设计圈
  • 敏颜 / 设计师

    2023-11-19 11:27


    #办公智造#

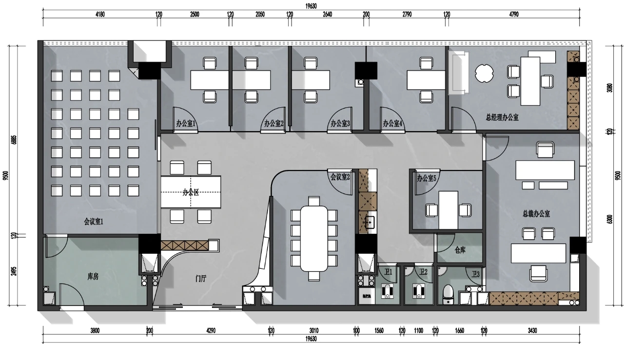
    简约而精致的设计:介绍办公室的简约设计元素,如简洁的线条、干净的色彩和无多余装饰的空间布局,让读者感受到办公室的简约美感和精致细节。
    注重空间的利用和功能性:描述办公室的空间布局和功能分区,如合理的办公区域划分、充分利用墙壁和角落的储物空间,以及便捷的工作流程设计,让读者感受到办公室的高效和便利性。
    自然光线和舒适的工作环境:强调办公室的良好照明设计和充足的自然光线,如大窗户、透明隔断和明亮的灯光,让读者感受到办公室的明亮和舒适的工作环境。
    优雅而实用的家具和配饰:介绍办公室的简约家具和配饰,如简洁的办公桌、舒适的椅子和实用的储物柜,以及简约而精美的装饰品,让读者感受到办公室的优雅和实用性。
    清爽而整洁的氛围:描述办公室的整体氛围和气氛,如整洁的工作台、清爽的空气和安静的环境,让读者感受到办公室的清新和宁静。        

  • Diana / 设计师

    2023-11-19 11:04


    #办公智造#

    方案        

  • 饶阳 / 设计师

    2023-11-19 11:02


    #办公智造#

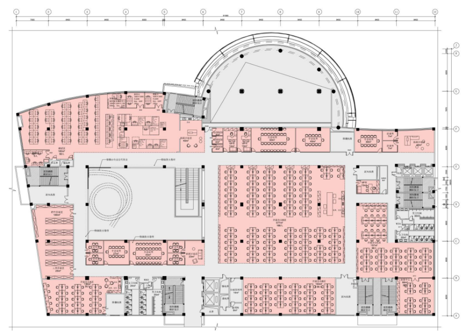
    本次是能源公司办公室装修设计项目,企业的核心项目就是能源研发技术,以环保、低碳为企业奋斗的目标,故此设计师办公室设计的时候,通过天然元素的现代化融入手法,目的就是使空间更有益于身体健康,设计师希望如此可以保证空间的创造性,以此激发员工的工作效率。
    整个空间可谓每一个地方都是办公区域,这也是设计师希望看到的,因为这样一来就可以将整个空间结合在一起不分彼此,这也是合中有分、分中有合的真实写照。        

  • 魏馨琪 / 设计师

    2023-11-19 11:00


    #办公智造#

    质朴印象,“质”愈功效
    素净、科技感的简洁韵味,是接待区给人的鲜明印象。材料的质朴肌理,如手臂般集聚力量,代替了原办公室的高饱合度色调,烘托出自然、舒心的氛围感。        


  • #办公智造#

    入口处,以原木作为主要材质,原木加灯带,使整面的背景墙简约又舒适。右边的镂空字设计,让空间更有立体感。
    两个会议室统一设计元素,简约地使用原木与白色的材料,以白色衬托原木的温馨,大气又简约的视觉感扑面而来。
    每个独立办公室,都选择半透明的窗帘,让阳光自由光线,减弱眼睛疲劳感。在办公室内添加一些简约的艺术品,抽象绘画作品和摄影作品,增添艺术要点。        


  • #办公智造#

    设计团队把科技、流畅、明快的设计元素与自然属性的融合构筑了这个特别的环境氛围,这样的设计手法不仅体现小鹏独特的品牌文化,也体现出不一般的员工理念。为小鹏汽车为中国乃至亚洲的汽车制造产业树立全新的工作向标提供必不可少的条件。        


  • #办公智造#

    成熟的设计手法和空间的合理布局,让小鹏汽车总部办公大楼更具品质感;通过建筑语言塑造一个冷峻和炫酷气质、流畅而又富有科技感的现代化办公大楼;室内空间定义为开放、轻松、随性,用线性的语言去表达,采用丰富且有质感的材料去营造空间的通透性;        


  • #办公智造#

    小鹏汽车早期办公室        

发直播

公开