装修案例
灵感美图
找设计
找工长
看工地
记住密码
我已阅读并同意注册协议
发直播
比较喜欢一套风格(1)
比较喜欢一套风格(2)
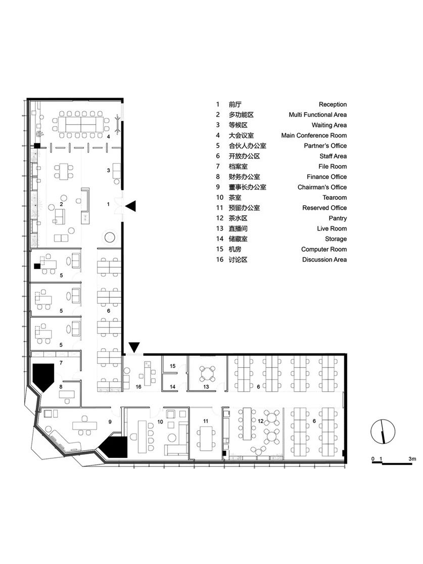
办公室装修案例分享(1)
办公室装修案例分享(2)
严谨与活泼并存
方案效果图(1)
方案效果图(2)
效果图