当前位置:首页 > 设计圈

  • #办公智造#

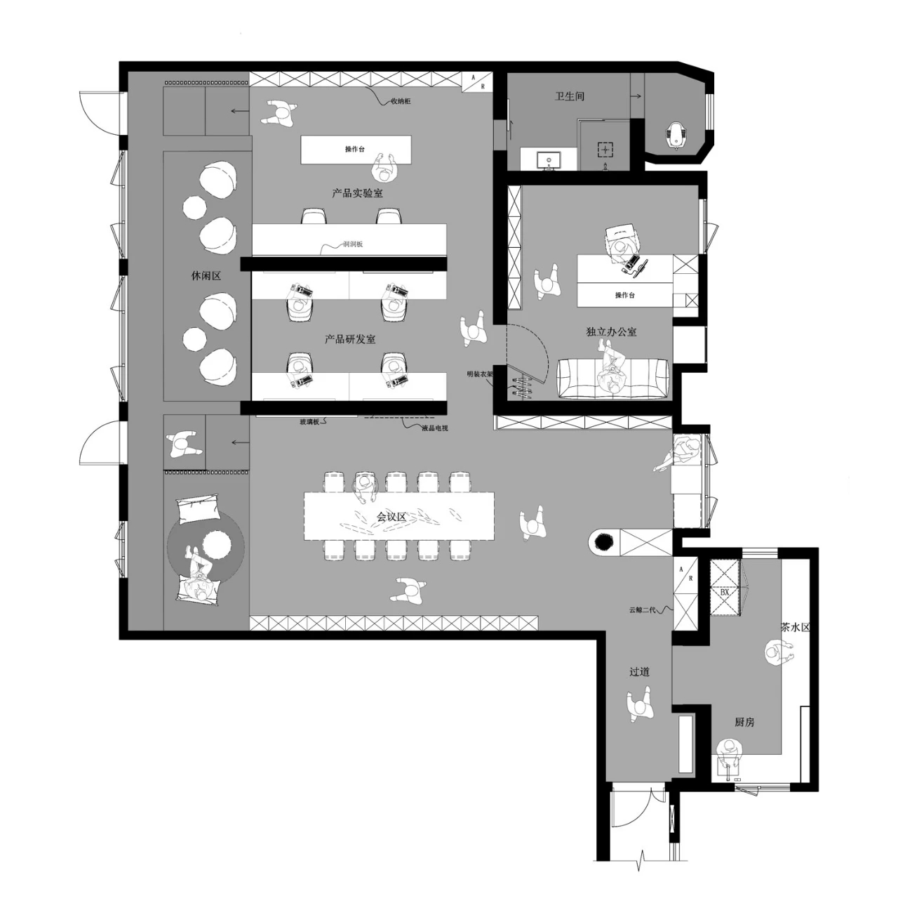
    从了解产品本身融合绿色植物和原木等元素透露出产品调性。与甲方沟通需求后,本案甲方老板是年轻的都市女性,希望以办公及产品展示为主体。结合旗下品牌产品本身,以绿色为空间主色调,打造清新、自然、绿色、健康、有活力的办公空间及产品展示环境。空间中以原木色与绿色为主调,局部使用仿真绿植,使空间更加自然、治愈、有活力!力求打造新型、多元、共享、精致、时尚的新型办公的品牌体验。
    进门前台天花悬挂品牌形象——SUNNY女神,SUNNY来自S星球,S星球是人类心中美好愿望折射而成的星球,也是地球生命体更高维度的存在,希望品牌的能量能给来访客人带来自信、元气!带来希望和信念!前台围绕着品牌的概念与形象展开设计,前台犹如婀娜的形态,犹如天使的翅膀守护美好,让身体更加轻盈自信。优美的曲线弧度彰显品牌设计的体量感让我们进门有种沉浸式的体验感,美感与质感的融合,灵感与设计的结合。前台背景做一处企业文化墙,各种证书的摆放彰显公司的雄厚实力。


  • #办公智造#

    高吧区墙面与吧台采用木色,清新自然,一侧玻璃幕墙将室外景观引入,室内与景观完美融合。        


  • #办公智造#

    糅合健康的办公理念,将自然的绿色与原木色与空间融合贯通,呈现出清新风格设计。从会议桌椅到柜体设计,色调的运用统一,渲染出会议场所的室内立体感。吊灯层次的天花造型与线性灯带相辅相成,无形中拓展了视觉空间。空间较大的会议室可灵活变换摆放位置应用不同的场景需求。        

  • 大鹏 / 设计师

    2024-01-10 10:36


    #办公智造#

    中式的透景让原本狭长的空间更加通透,仿岩石面与肌理漆,钢化玻璃在灯光中映现出不同的材质纹理也呈现出了欢迎的姿态!
    层高4.9米的双层空间,中高挑的电视墙面呈现出不同角度的空间体验黑色的大理石岩板、金属的展示钢架让访客真实感受到建筑结构中的空间层次的无限可能后方电视放映着成立以来的做过的项目视频至今都还历历在目,
    不锈钢展示架放置酒品更富有展示功能;前台大理石岩板墙面的暗门设计可灵活通往材料间;黑色的肌理漆搭配绿植造景让整体空间别具韵味和更富有高级感。不同的设计元素在此汇聚交融,展现别样的创意设计理念。会议空间相对规整以长条红色桌子作为介质让空间的关系得到延伸跳脱的颜色给安静的空间留下俏皮的一笔在这边可以碰撞方案与创意让人亢奋和充满激情        

  • 大鹏 / 设计师

    2024-01-10 10:33


    #办公智造#

    仿木纹砖台阶的步入式灯光,让访客即可感受到设计的材质也让步入的仪式感墙面留白,大小不一的展示墙摆放着历年获得荣誉项目的奖项与业主赠予的认可奖杯!        

  • 大鹏 / 设计师

    2024-01-10 10:31


    #办公智造#

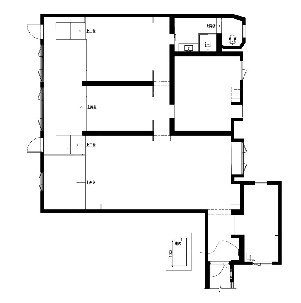
    二楼办公区        


  • #办公智造#

    室内外露的胶合木和交叉层压木材结构创造了一种温暖并充满活力的氛围,使用者可以清楚地看到建筑如何组建在一起,就像是一个巨大的乐高积木一样。由于建筑结构使用了预制的结构木材整个建筑结构只用了三周就搭建起来了,而客户希望建筑外观具有工业感,设计将建筑包裹在一层波浪形的外立面挂板中,立面的搭建过程也只花费了一周时间。        

  • 毛均峰 / 设计师

    2024-01-10 10:06


    #办公智造#

    干净的水泥地面、欧松板定制柜、白色会议长桌营造宽敞明亮的会议场地,把所有的办公设备嵌入墙体让相对局限的空间布局也井然有序起来。
    用格栅条纹做出的隔断清晰地隔开的区域,抬高的水磨石地面让休闲区充分收到阳光的浸润使得空间氛围愉快和舒缓。阳光透过玻璃斜照进来,与格栅的木质色调碰撞,让办公空间不再冰冷,而是充满了人文的情怀与自然的温雅。
    整体大空间上运用了平行的线条去叠加从不出错的黑白灰与木色的调和。局部的精致摆件点缀了整个空间,除了增加细节感之外,更在不经意间体现出设计上的精致和格调。        

发直播

公开