当前位置:首页 > 设计圈
  • David / 设计师

    2024-01-24 14:27


    #办公智造#

    高新区创新创业孵化中心        

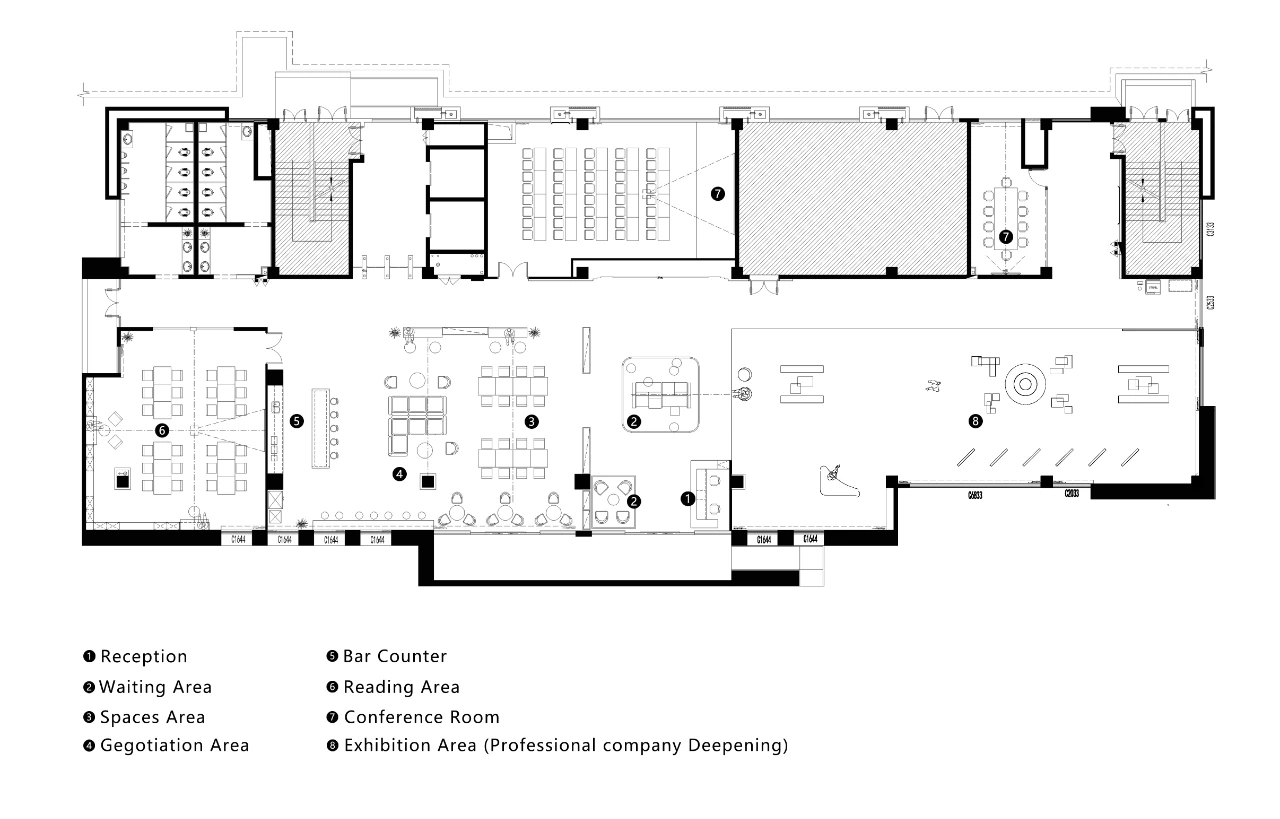
  • David / 设计师

    2024-01-24 14:25


    #办公智造#

    陈设色调提取PANTONE流行色彩,在不同的空间做明度和冷暖的变化调和,在同色系中运用不同明度饱和度变化来使得空间富有层次感,也赋予空间精致与活力。        


  • #标准施工#

    天花造型深化设计                


  • #标准施工#

    天花造型深化设计        


  • #标准施工#

    天花造型深化设计        

  • 魏馨琪 / 设计师

    2024-01-24 13:14


    #办公智造#

    这是一间年轻创业团队的公司,拥有快速跳跃的思考能力,为反映他们的需求,我们发挥了不少设计巧思,在均质整齐排列的工作空间中,置入 Brainstorming 的方盒子,方便员工随时随地彼此脑力激荡,创造高互动的对话。当运用设计回归到人与工作场域的互动,不再索然无味的单调,一种 Office Living 的生活风格让工作效率提升、撷取更多灵感,更是趋势所在,激荡着出众不凡的效率之余,也取悦了工作者的身心。
    拥有建筑背景的林政纬设计总监汲取空间与自然共存的设计理念,将位于台北的旧烟厂中蕴含的自然与老旧地景涵构,与周遭建筑条件相融合,揉合出带有工业风,却无处不细致的空间表情,开创出深具魅力的工作场域。格局安排更突破传统的封闭办公室表现,舍弃实墙隔间配置,反以铁网、灰玻区隔出不同部门,让光线可自然流动,在在型塑出宽敞通透的空间感;材质使用上,运用铁件、木质、深色玻璃完美搭衬,使异材质碰撞出时髦前卫的设计感,再搭配精致光泽感灯具及造型家具,提升质感。
    拥有建筑背景的林政纬设计总监汲取空间与自然共存的设计理念,将位于台北的旧烟厂中蕴含的自然与老旧地景涵构,与周遭建筑条件相融合,揉合出带有工业风,却无处不细致的空间表情,开创出深具魅力的工作场域。格局安排更突破传统的封闭办公室表现,舍弃实墙隔间配置,反以铁网、灰玻区隔出不同部门,让光线可自然流动,在在型塑出宽敞通透的空间感;材质使用上,运用铁件、木质、深色玻璃完美搭衬,使异材质碰撞出时髦前卫的设计感,再搭配精致光泽感灯具及造型家具,提升质感。
    突破传统的封闭办公室表现,为了让户外光线可以自然映入室内,舍弃了实墙隔间配置,反以铁网、灰玻区隔出不同部门,让光线可自然流动,在在型塑出宽敞通透的空间感,并且把最好的窗景留给员工,设立休憩区。        

  • 魏馨琪 / 设计师

    2024-01-24 13:12


    #办公智造#

    虽然每个工作领域皆有阶级之分,但我们希望能突破这些藩篱,让所有工作团队之间交流无碍、革命情感更凝聚。独家订制 Y 字型桌面,舍去 OA 家具封闭相隔的隔间墙, Y 字型的一端则做为团体中领导者的位子,如此不仅无时无刻都能和组员相互关心了解,也突破身分限制更显亲切。
    裸露的天花增加空间开阔感,在此工作也能扩展视野,墙面上的“WORK HARD , DREAM BIG”字样,传达公司精神、构成聚焦画面,更是振奋人心的正能量。
    藉由漂浮柜体及切割线条,在看似开放的空间中清楚区分每个区域,而铁网元素则能象征性界定场域,明显分隔却让视觉穿透无阻碍,使窗外大台北美景无论在哪个角落均能映入眼帘。        

  • 魏馨琪 / 设计师

    2024-01-24 13:09


    #办公智造#

    空间的底部则为主管办公室,因应建筑折线的状态,让空间内推后,使大面灰色玻璃产生了连结的效果,延伸时尚美学。并细致安插金属切割面与金属的结合,让每一个材质与材质的接合面都可幻化高雅气质,打破工业风给人的既定印象。如此无时无刻都能在细节中找到创意与灵感的办公空间,链接上生活的温度, Office Living 也有耐人寻味的感动。
    谈起办公空间,忙碌敲着计算机键盘或是快速移动鼠标的画面马上跃入脑中,繁忙的画面令人没有喘息。因此我们特别留下空间中最好的 View ,作为咖啡厅使用,随意摆放上木质家具,浅浅散发木质调的放松氛围,或是也可选择直接坐在窗边的订制吧台,恣意拥揽都市景致。此区也能弹性使用,只要将桌椅合并,便能成为活动会场。        

发直播

公开