装修案例
灵感美图
找设计
找工长
看工地
记住密码
我已阅读并同意注册协议
发直播
办公与实验室空间落地...
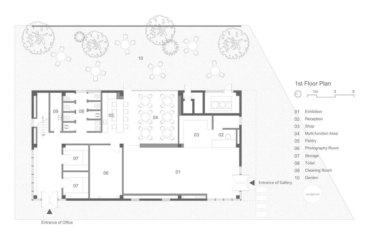
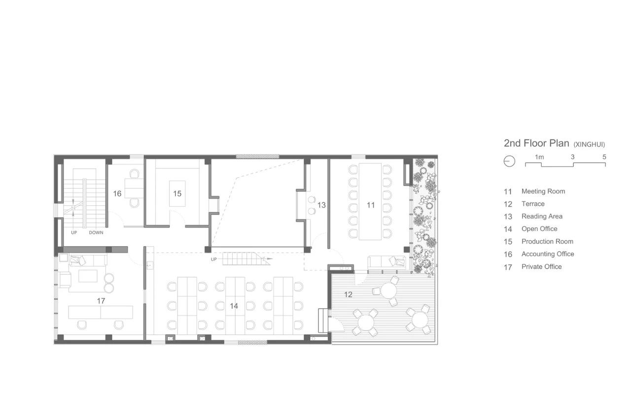
由Weestar Studio与幸会潮玩两间创意机构共用。首层共享空间用于展览展示及举办各种活动,楼上两层为两家公司的办公区。建筑南侧横亘着几道交错的货运铁轨,不时经过的火车承载了园区的历史记忆。
设计以“连续的风景”为灵感,试图打破办公空间的物理边界,将工业文明痕迹与忙碌的日常工作景象结合,创造出能够激发想象力的开放式办公环境与灵活多变的公共空间。
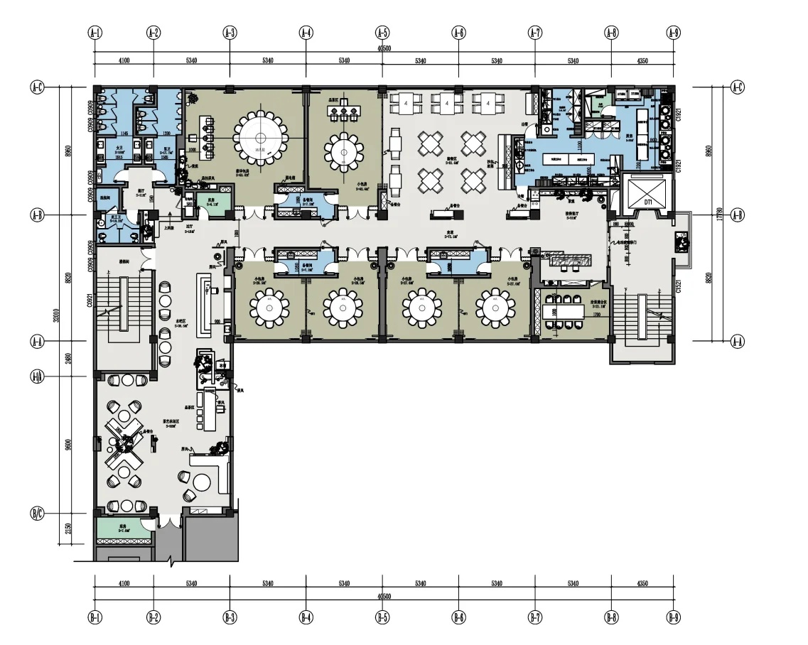
直播公司办公室
企业接待餐饮中心
施工对比图
设计效果图
独栋办公空间设计