当前位置:首页 > 设计圈
  • 王丹丹 / 设计师

    2024-02-01 20:41


    #办公智造#

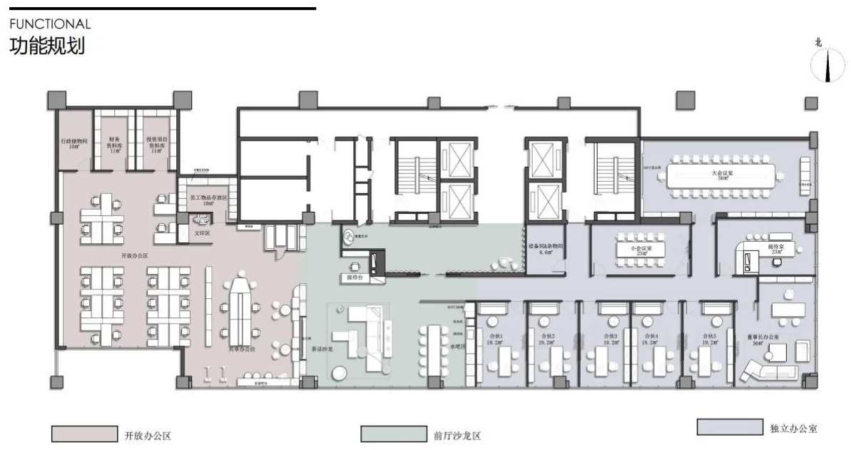
    办公室设计        

  • 张曲峰 / 设计师

    2024-02-01 20:37


    #易筑展陈#

    充分挖掘环球背后的精神内核,采用国际化、现代化、科技化的设计思路,以“动”为关键词——动是一种态度、也是一种力量、更是一种智慧,传递出企业融合国家发展战略的理念、决心、行动和愿景,打造独属于环球集团的品牌展示窗口、对外交流平台。        

  • 筑先生 / 客服

    2024-02-01 18:30


    一切表象,都是我们内心深处的虚设,如果你能看到各种表象背后的本质,你就彻悟了。        

  • 吕行者 / 设计师

    2024-02-01 18:20


    #办公智造#

    大鱼智行办公室        

  • 大鹏 / 设计师

    2024-02-01 14:09


    #办公智造#

    办公空间设计效果图        

  • 大鹏 / 设计师

    2024-02-01 13:10


    #办公智造#

    办公空间设计效果图        

  • 丽旻 / 设计师

    2024-02-01 13:01


    #办公智造#

     设计师打造了这个 "能源广场",10 个能源广场赋予了总部活动中心的生命和活力。每个广场都以能源类型为主题,以传达公司新的多能源定位,并使该能源公司的新发展道路具体化。这些广场经过精心设计,采用了背光纺织天花板,或通过穿孔隔音板的顶光,这些穿孔隔音板上根据每种能源类型都有相应的图案,还采用了鲜艳的色调和霓虹灯图标,与项目其他部分的灯光和发光颜色一起,激活了地板中心的绿色元素。
    边上的石蕊玻璃扶手会随着视线的变化而改变颜色,让人想起该能源公司的能源之路。
    该区域是一个旨在推广灵活、协作式工作模式的场所,有各种各样的聚会空间,既可以举行正式或非正式的会议,也可以进行社交活动,还可以集中精力完成个人任务。这些协作空间大多由两个交叉的托架组成,使邻里之间井然有序,并控制了开放空间的大小。        

  • 丽旻 / 设计师

    2024-02-01 12:59


    #办公智造#

    新的办公室已成为一个主要用于合作和加强组织文化的场所。为此,利用旧自动扶梯的空隙,将两层楼用一个多功能楼梯连接起来,成为办公室的核心。这里既是通道,也是会议、非正式工作和协作的场所.        

发直播

公开