当前位置:首页 > 设计圈
  • 小筑 / 设计师

    2024-02-07 19:50


    #标准施工#

    天花造型深化设计        


  • #办公智造#

    现代简约的家具与自然光的完美结合,创造了一个既适合专业交流也适宜放松的环境,提升了员工的工作与生活品质。        

  • 大鹏 / 设计师

    2024-02-07 17:01


    #办公智造#

    在此次空间改造中我们尝试反其道行之,摒弃预设立场,从最基本的功能逻辑出发,用最朴素的方式回应项目场地。避免过度设计,让每一个元素都恰到好处的出现在其本该在的地方。
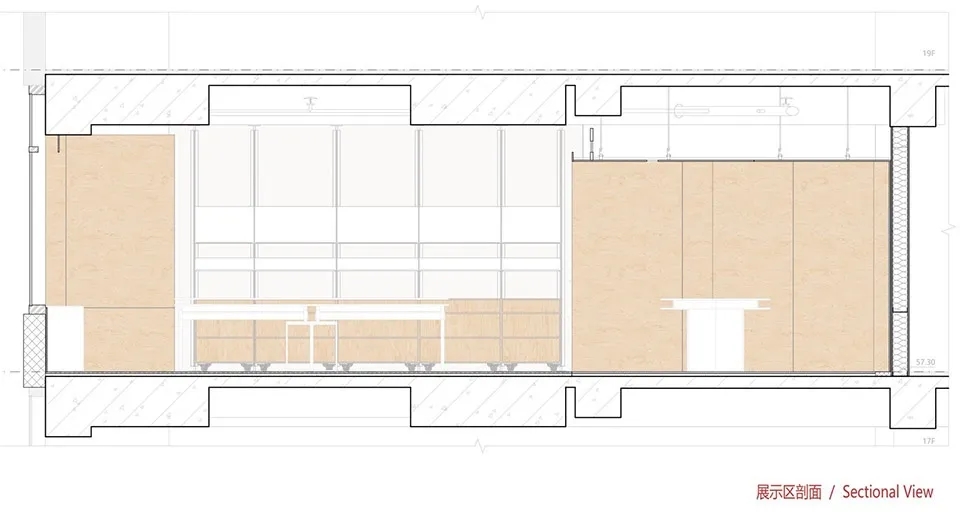
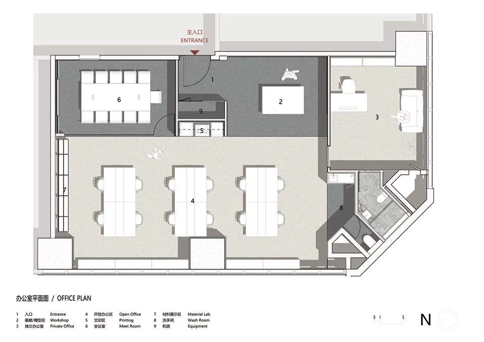
    为此我们将原有建筑与改造部分视为两套相互独立的系统。拆除旧的天花隔墙后,意外的发现原本的混凝土框架系统依然保存完好,但老旧的空调系统及桥架路由妨碍了空间净高的最大化,也不适合未来设想的办公格局,将其拆除后归拢至走道一侧,原本2.2米的室内净高得到释放,空间豁然开朗。在管线的下方顺理成章的依次布置门厅-机房-会议室等对空间净高要求相对较低的功能。同时这一组功能块也起到了缓冲区的作用,不仅在视线上也在隔音方面减少了外部对办公区的干扰。
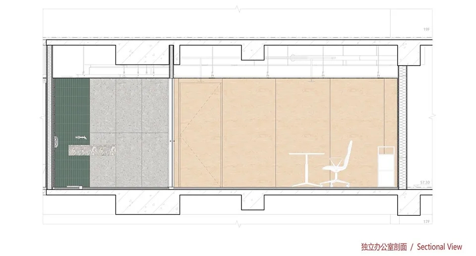
    由于开放办公区一面为全景窗,另一面会议区和打印区也无法提供可用于挂图板的展示墙,实墙面显得尤为珍贵,因此决定将独立办公室由原来的玻璃隔断改为实墙隔断,靠窗一侧巨大的钢筋混凝土柱下半部分也用桦木多层板包裹,用作展墙功能。
    无论是门厅会议功能区的吊顶还是包柱子的墙板抑或是孤立悬于梁下的窗帘盒,似乎都以一种即兴表演的形式独立于原有的钢筋混凝土框架系统而存在,但组合在一起两者之间又隐约有某种新老对话。        

  • 大鹏 / 设计师

    2024-02-07 16:59


    #办公智造#

    装配式的建造方式由来已久,在今天追求大规模工业化的背景下似乎更能体现某种时代精神。不同于常规室内装修的固定性和不可变性,我们选用了装配式的方式组建新系统,装配式的灵活性和模块化很好的契合了自适应设计理念,通过背后的装配式五金让新的墙板及天花与原始结构完全分离,我们希望传达的是一种临时性和可变性,新的系统应当具备足够的灵活性,以适应未来可能出现的使用需求调整。
    采用装配式带来的另外一个好处是成本的节约,用桦木多层板直接作为面层材料,在基层龙骨排版上已经考虑到材料的块幅,最大化的减少损耗与浪费,自然留缝既是材料装饰性的表达,也是背后装配逻辑的外在表现。这也延续了WEA一贯的室内设计理念,追求自然而真实的美而非涂脂抹粉式的装饰。
    除了天花和墙面,桦木多层板也用在了其他家具上,家具设计也延续装配式的理念,使用单一标准化板材用CNC机床进行切割标记,而后运至现场进行组装。在设计阶段做到板材用量精确可控。        

  • 大鹏 / 设计师

    2024-02-07 16:57


    #办公智造#

    项目图纸        


  • #易筑展陈#

    主题:展现企业成长历程起伏和重要年限大事记。亮点:面向未来的历史长卷数据:展区面积150㎡展项技术:互动LED屏幕、融合投影、光电玻璃
    主题:介绍企业产品系列,产品服务内容的重要场所,是展示企业核心竞争力的宣传窗口。亮点:企业产业及其技术展示数据:展区面积360㎡展项技术:光电触控玻璃、互动LED屏幕
    主题:展示企业历年荣誉和行业标杆形象,树立企业的形象和声誉。亮点:荣誉殿堂,以黄铜为肌理,垂直延伸的线条,塑造大气永恒的殿堂形象。数据:展区面积60㎡展项技术:运动动态捕捉传感器、互动LED屏幕            


  • #易筑展陈#

    主题:企业发展过程中,树立的精神文化是企业文化的核心,展示企业文化风貌的宣传空间。亮点:以书卷形式,LED屏幕高科技全方位展示企业快速发展数据:展区面积125㎡展项技术:光电玻璃、互动LED屏幕
    主题:接待中心/会议中心亮点:传统与现代结合,接待大厅整体在不减少原有接待人数的基础上,整体空间进行提升。数据:展区面积190㎡        

  • 小筑 / 设计师

    2024-02-06 20:00


    #标准施工#

    天花造型深化设计        

发直播

公开