当前位置:首页 > 设计圈
  • 王倩 / 设计师

    2024-02-07 20:55


    #办公智造#

    多彩办公空间        

  • 魏馨琪 / 设计师

    2024-02-07 20:49


    #办公智造#

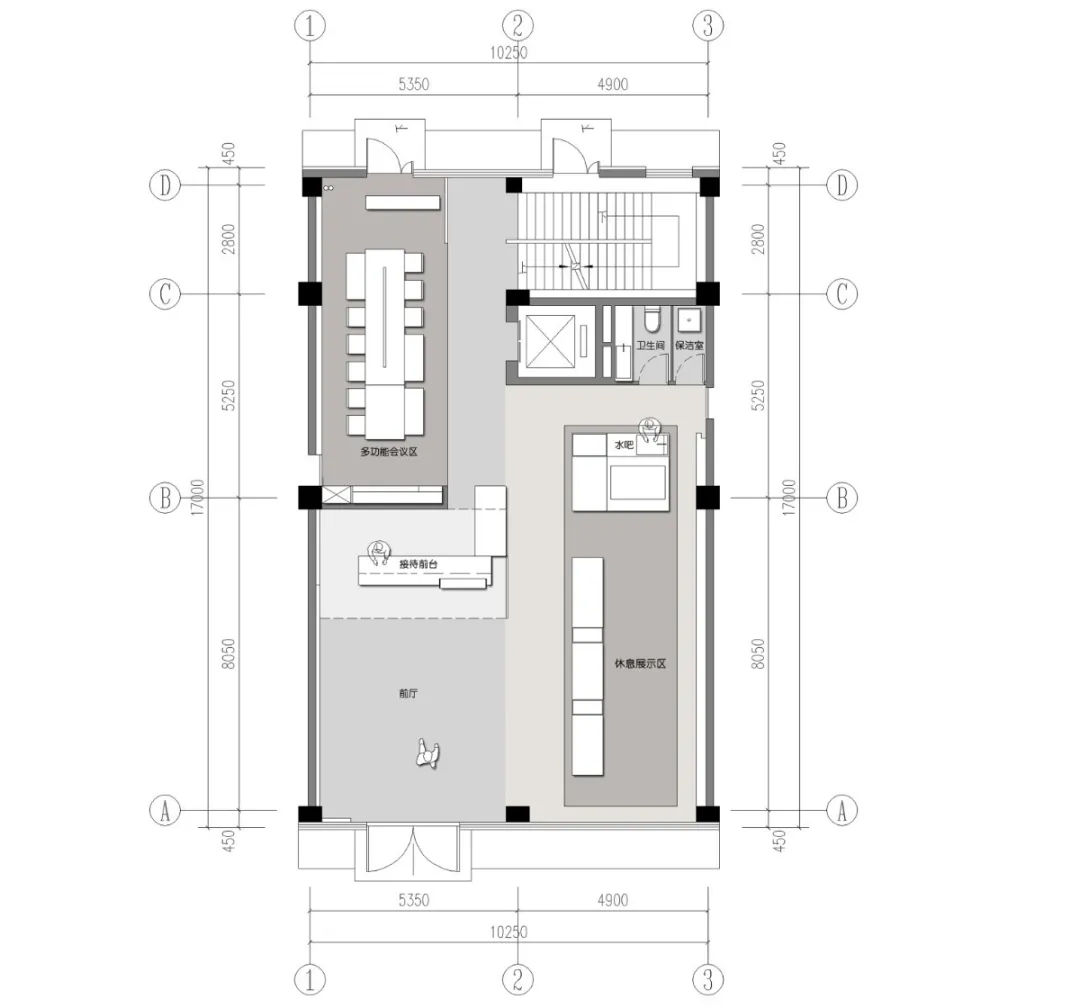
    现代别墅办公新概念 ‖ 在这次设计中我们预构建出一个开放、社群、高效、感性的办公空间,我们运用体块的空间穿插来改变动线关系和空间关系,从而让空间之间相互交融又相对独立,这也是我们对当下办公空间设计中一些思考的呈现。
    商墅源于officepark,即低密度、私密性花园式办公产品理念,相对于写字楼,商墅对于空间拓展的可实时性更强。如何把握空间节奏感的同时突出商墅本身的结构属性成为了我们这次设计的课题;
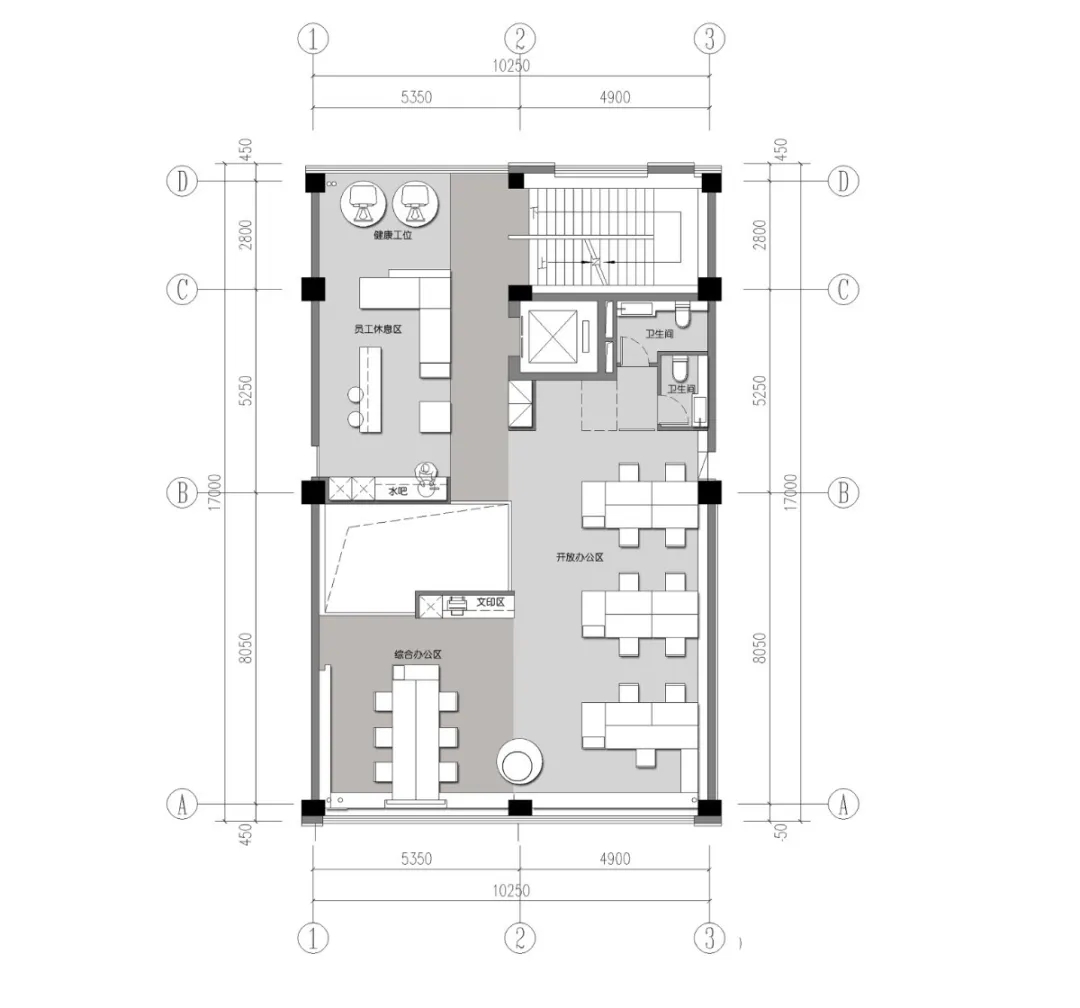
    一层设计中我们将二层的楼板部分去除,用活体绿植墙进行上下贯穿,增加一二层的互动关系,突出结构的空间特性。

  • 魏馨琪 / 设计师

    2024-02-07 20:45


    #办公智造#

    二层为敞开办公区,休息区健康办公工位的植入也点明我们愉悦办公的设计理念;
    在办公家具的设计上我们考虑满足日常功能的基础上,尽量拓展其在不同使用状态下的更多可能性。工位吊灯的研发我们把磁吸灯灯槽进行改良与工位结合形成了现在的工位吊灯,内嵌的泛光源和点光源可根据不同使用者的喜好来进行更换。        

  • 魏馨琪 / 设计师

    2024-02-07 20:44


    #办公智造#

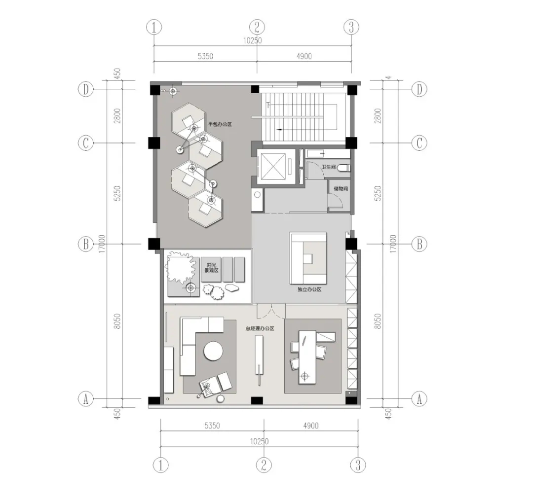
    三层将原露台进行封闭,延展出景观区和总经理室休息区,顶面自然光线的引入将在室内形成不同的光影效果。        

  • 杨梅酱 / 设计师

    2024-02-07 20:39


    #办公智造#

    办公室实景图        

  • Diana / 设计师

    2024-02-07 20:34


    #办公智造#

    现代轻奢办公空间设计(1)        

  • Diana / 设计师

    2024-02-07 20:32


    #办公智造#

    现代轻奢办公空间设计(2)        

  • 乌拉西 / 设计师

    2024-02-07 20:20


    #办公智造#

    工作室设计        

发直播

公开