当前位置:首页 > 设计圈
  • 毛均峰 / 设计师

    2024-03-15 19:24


    #办公智造#

    空间整体以低调的大片白色和局部灰色作为基调,穿插企业的形象色中国红、行业蓝色,形成鲜明的视觉冲击。白色,其在商业设计中,具有高级,科技的意象。将高纯度白色与空间的企业色通过中间调灰色调和,不仅提高企业色的纯净度,也弱化了纯度较高的企业色带给人的视觉压迫,表达无拘与率性、干练且利落的空间情绪
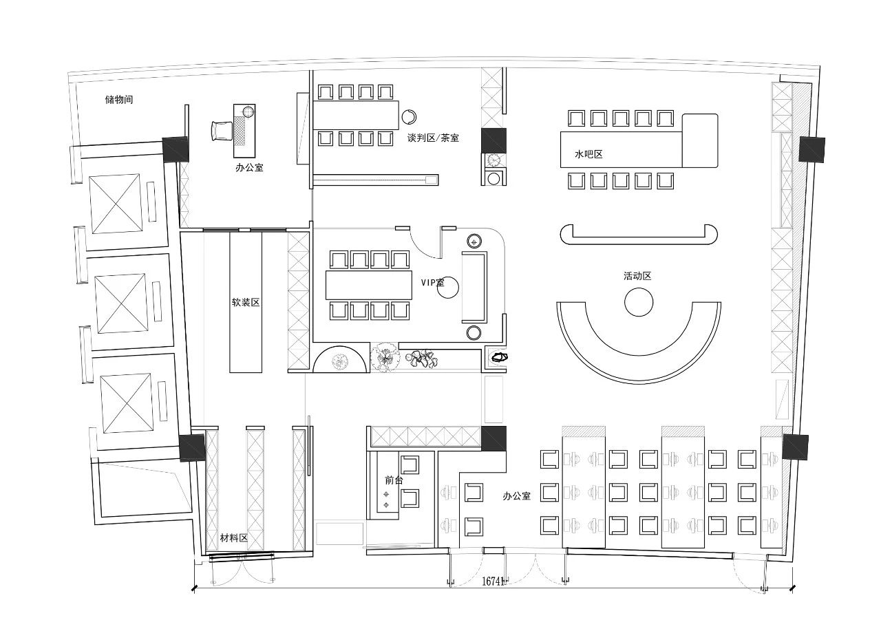
    空间整体规划依附于建筑的核心筒往四周延展,在核心筒的“盒子”周边植入四个独立的盒子,让原有的柱子消隐在空间中,几个“盒子”围合成相对独立的环形通道,并将空间的分割成四个区域:接待区、沙龙活动区、会议区、办公区。多元的空间满足企业的发展需求,以核心筒的“盒子”为中心点,设计师采用“环形”的动线设计,将空间分化成不同的工作区域向其四周进行分流,各个空间围绕电梯间进行依次分布。每个空间都可以自由贯穿,增强空间的共享性和互动性。打造秩序清晰、协同、独立而又能自由扩展的流动性办公空间。
    一进入前厅接待区,就会被耀眼的红色标志吸引,在白色的基底上立入巨型标志,与横向的空间流线形成对立的空间形态 ,在破立之间呈现企业创新精神。        

  • 毛均峰 / 设计师

    2024-03-15 19:20


    #办公智造#

    沙龙活动区呈现多维的空间形态:沙龙会议模式、会客模式、移动办公模式、吧台休闲模式、企业文化模式;沙龙区接着茶水间。通过折贴门扇可围蔽成独立的会议沙龙区,也可敞开形成自由的多功能活动空间;自由组合的家居布置、趣味的阶梯座椅、流动空间边界。人性化的办公空间,总是给工作中的人群留出自由呼吸、放飞自我的时间、空间。        

  • 毛均峰 / 设计师

    2024-03-15 19:17


    #办公智造#

    空间形象呈现出一个当代创新企业的时尚办公场景,空间采用的大块面的构造,借助清晰的几何线条,对墙体柱体的重新组合和拆解,削弱空间的边界,办公区“盒子”的介入,模糊与延伸空间的界限。极简不锈钢前台,几何形体的立体色块和线条感的灯饰,营造出了由内之外的空间秩序,打造创新 IT企业自由、活力,开放的办公空间。        


  • #办公智造#

    入口处成洄游动线,使办公室保持一种更为私密的环境与神秘感。大片的光引导着方向,往里走,空间便慢慢地呈现,直至豁然开朗,如同《桃花源记》开篇中所描述的那样:初极狭,才通人。复行数十步,豁然开朗。
    过厅是空间场域切换前的过渡,设计师希望透过光影的协奏、虚实的比衬、动静的平衡与意境的构造,打造一个开放、通透、相互伸延又贯通的空间。人在其中,感受不同场景切换的美轮美奂。        


  • #办公智造#

    室内的布置尽入眼帘,解放盒子牢笼,打破传统隔间的办公环境,连接办公与休闲功能,构建一个会客、办公、选样、休闲的空间。中岛结合办公桌,这里是设计师头脑风暴的场所。餐厅,自然光线在空间肆意流淌,如卷轴横幅开展的大面窗景,拉长视觉尺度,柔和的光线及舒适的卡座,让人们从繁忙的工作状态中得到几许松弛。        

  • 乌拉西 / 设计师

    2024-03-15 15:32


    #办公智造#

    正合顺机电办公室        

  • Tina.baby / 设计师

    2024-03-15 15:11


    #办公智造#

    顶楼前台拥有四米五的层高,得天独厚的条件让设计师可以大胆设计、创作。横向和竖向的线条感也进一步凸显了空间的高度和宽度,既大气又不俗气。        


  • #办公智造#

    改造后的商务空间分为三个区域,除了会议室以外,还提供会客室以及可灵活使用的空间等轻松舒适的商务环境。工作之余,亦可在此休闲阅读或共享交流。创意的源泉不会诞生于呆板的空间中,在M+Space随时随地的头脑风暴,更能充分发挥个人潜能、激发创意灵感。        

发直播

公开