当前位置:首页 > 设计圈
  • 瑾萱 / 设计师

    2024-04-09 21:59


    #办公智造#

    定制的接待台采用 Avonite Artica 饰面装饰,奠定了空间的基调,而华丽的灯光和几何设计则营造出精致的氛围。除了美观之外,该设计还考虑了多功能性,可接待会议和接待国际宾客。低影响油漆和英国产品体现了对可持续发展的承诺。        

  • Mr.Wang / 设计师

    2024-04-09 21:28


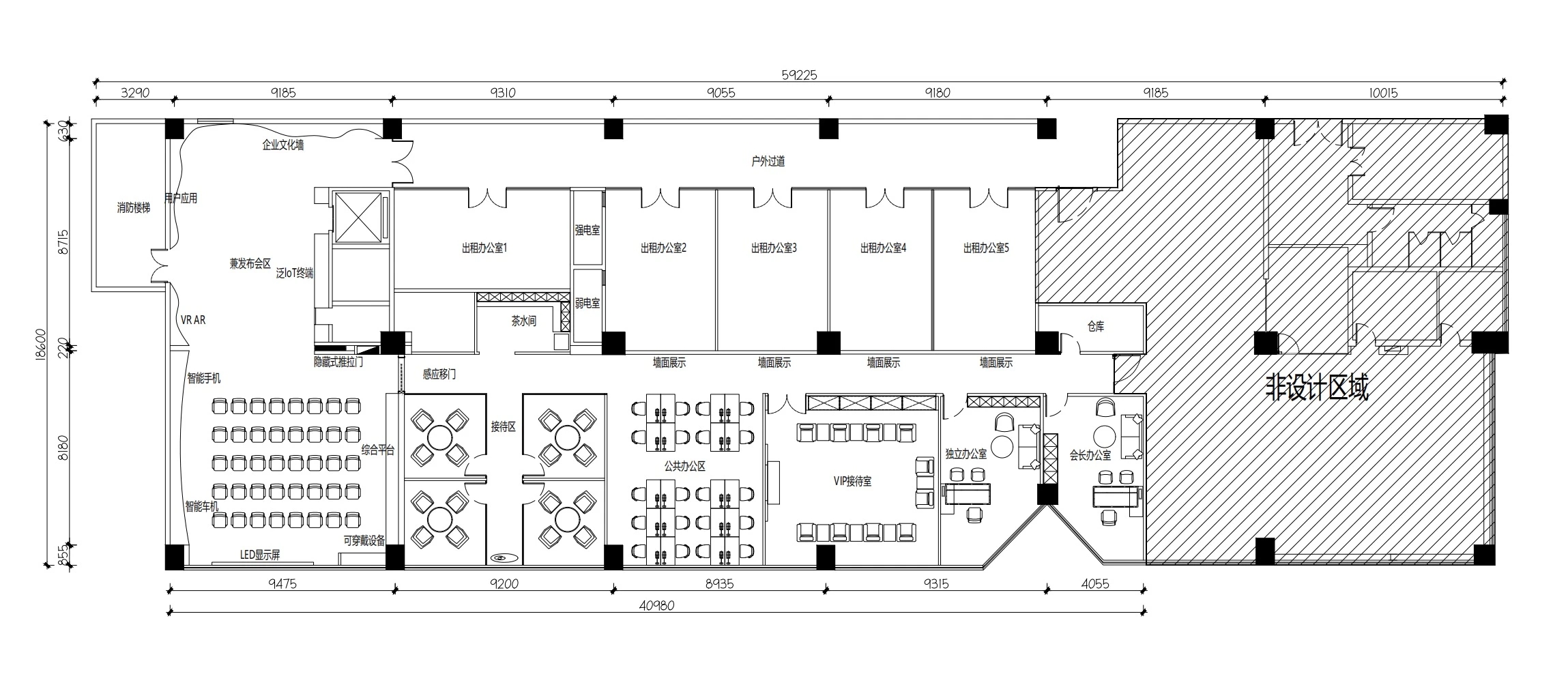
    #办公智造#

    大厅承载着展览接待和交通停靠的复杂功能,设计采用精致银灰和纯白的空间节奏来处理这一区域。宏伟的空间将高科技产业的专业化转变为简洁的结构,银白主色的结合将创造出先锋前卫的行业文化。
    空间以开放明亮的姿态欢迎来访者进入到智能终端产业的生态系统中。
    展厅精而美的造型和干净的色彩为企业产品营造一个极佳的展示场所,墙面展示内容涵盖了AR VR展示、个人电脑应用、智能手机、智能车机、可穿戴设备等,在这里人们可以感知智能科技的进步与发展成就,通过多媒体打造可视化品牌文化,以灵感融合科技的场景体验为来者传递尖端技术力量。
    发布会厅兼大型会议厅实现了空间元素在视觉上的和谐统一,天花板保持干净裸露,以创造高度和空间灵活性,保证视野的宽阔,模糊并延伸空间的界限。顶部的线条节奏则呈现出沉稳严谨的理性场景。
    蓝色作为协会logo主题色,贯穿辐射整个空间,明亮的蓝色瞬间让空间活跃起来,突出重点,使蓝色部分成为空间视觉焦点,带给来访者科技化、未来感、力量感的鲜明印记。        

  • 毛均峰 / 设计师

    2024-04-09 21:24


    #办公智造#

    英匠留学办公室        

  • 饶阳 / 设计师

    2024-04-09 16:35


    #办公智造#

    紫藤集团总部办公设计提案(1)        

  • 饶阳 / 设计师

    2024-04-09 16:34


    #办公智造#

    紫藤集团总部办公设计提案(2)        

  • 饶阳 / 设计师

    2024-04-09 16:32


    #办公智造#

    Purplevine IP项目设计上设计师提取深圳紫藤的核心理念“专业、敬业、乐业、创业。”四大核心理念为基调,以知识产权为支点将传统竹简的设计元素用现代手法融入当下科技未来的大潮流,关心员工’是绿色办公空间的目的,通过提升空间温度湿度和采光的舒适度、降低室内装修带来污染提高空气品质、使用环保材料等方式去创建健康的绿色办公环境.通过绿色环保节能设计,可以降低能源运营成本.过绿色设计为社会环境和生态环境做出一份贡献。
    功能分布原则:进门印入眼帘的开放式兼具前台、办公、接待功能于一体的接待空间,幕墙延边均以常用办公人员为主,核心筒内测视野、通风、采光较差的区域设置办公配套功能,并以核心筒的交通动线为核心辐射各个功能区,满足高效办公的原则。动静分离:办公空间南区西区为接待区使用模式(动区),它融合接待、面试,对外文化展示,咖啡社交休闲等多元化功能,北区、东区为较为私密安静专业性办公区使用模式(静区),动静区通过休闲区链接,员工可携带笔记本在这里沐浴        

  • 饶阳 / 设计师

    2024-04-09 16:30


    #办公智造#

    进入前厅接待台将视野带入整个空间,富有变化的竹简屏风造型让前厅于虚实之间自如转换,加强前厅和后台办公区采光及沟通,通过用隔而不断的方法打造空间,制造空间视觉通透感。
    亲自然设计元素如绿色永生苔藓、自然材质和纹理,都巧妙的融入整个环境中,强调空间与自然的联系。
    主要动线的墙面以天然的擦色胡桃木与深空灰装配式玻璃隔墙。
    公共办公区与接待区之间的缓存区,突破以封闭、约束的传统局限办公模式、高效、开放随时独处、随意合作的空间设计理念,同时也可以作为举办企业活动的绝佳地点。
    特色阶梯座对会议模式模式的重新思考,也促进了创造性的交流互动。        

    筑先生

  • 饶阳 / 设计师

    2024-04-09 16:28


    #办公智造#

    大会议室以装配超透玻璃隔墙形成互动的大型空间,,临窗的座椅让你俯瞰城市繁华、坐拥震撼视野。
    配上全部柔和的上下发光的慢反射灯光系统,这样的工作环境才子、佳人怎么能不好好写案子从而默默地为中国科技产业的专利问题护航保驾。
    黑白调空间加上极简的办公家具展现紫藤人的工作需要就是这么简单纯粹。
    白色调融合简洁的线条呈现了现代办公美学空间的格调,在有形的场所中领悟无形的精神“坚韧、乐趣、宁静。
     CEO办公室则是时尚与文化的结合,禅意中丝丝流出国际时尚的气息。        

发直播

公开