当前位置:首页 > 设计圈
  • 魏馨琪 / 设计师

    2024-04-20 19:28


    #办公智造#

    夹层下的工作室是建筑师的创意中心。它包括一个材料库,耐用的工作表面和工作面板的存储活动架。        

  • 敏颜 / 设计师

    2024-04-20 17:48


    #办公智造#

    马尔办公空间        


  • #办公智造#

    施工深化图        

  • 筑先生 / 客服

    2024-04-20 16:59


    #办公智造# 港派办公空间

  • 筑先生 / 客服

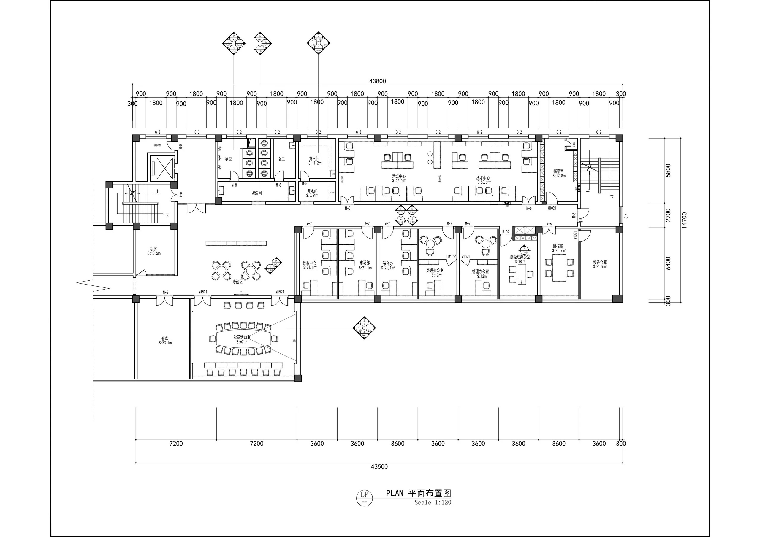
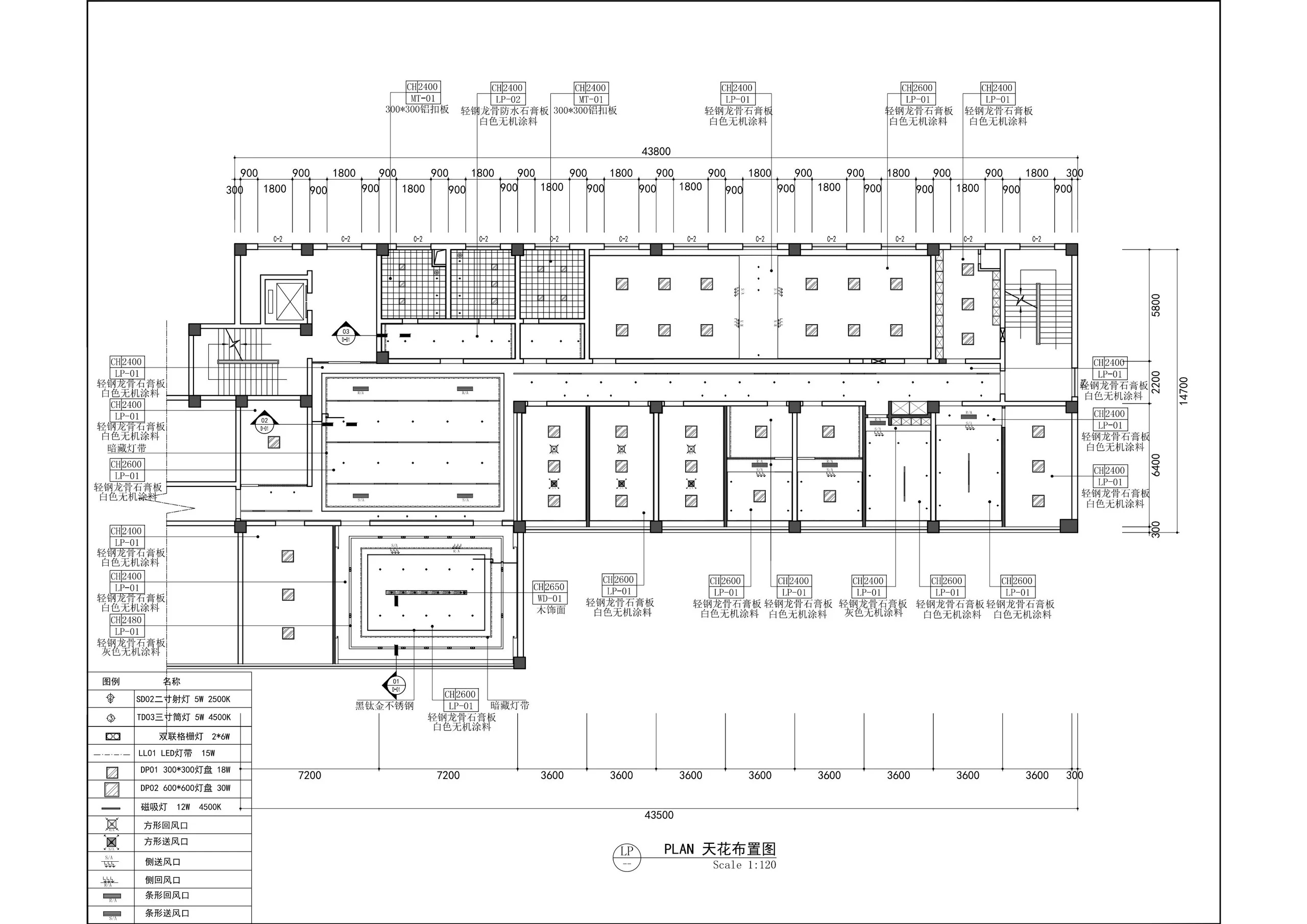
    2024-04-20 16:57


    #办公智造# 平面图

  • 毛均峰 / 设计师

    2024-04-20 16:29


    #办公智造#

    水洗石与木饰面搭配,没有过多的装饰,穿插企业文化,展现自己的文化特色
    原木自然纹理与浅色墙面内敛气质,搭配植物点缀,呈现出设计的审美倾向。经得起凝视、触摸和历练的质感,穿越时空和距离,用现代设计语言解读传统,使环境和心灵都达到灵与静的唯美境界。        

  • 毛均峰 / 设计师

    2024-04-20 16:28


    #办公智造#

    连廊通道是空间设计中一亮点,通过连廊空间把整体空间形成环形动线增加空间趣味性,丰富空间结构。

  • 饶阳 / 设计师

    2024-04-20 13:27


    #办公智造#

    入口处,曲线木作的运用,削弱直线带来的冲突感,为空间注入了流动与灵动的气息。格栅玻璃隔断在保证前台人员私密性的前提下,通过其通透性引入自然光线,让接待空间在视觉上更加明亮开阔,达到了既实用又美观的双重效果。
    在空间的布局上,利用走廊作为纽带,串联起各个功能区域。走廊两侧玻璃有效减少了房间之间的视觉阻挡,使得整个空间更加通透与干净。大面积的艺术画,通透的自然光线,一路点亮创造者的想象力和灵感,让抵达办公室的的路程也不再枯燥。
    设计充分发挥空间的通透与流动性,打造充满活力与创意的工作环境。为实现空间的极致利用,在开敞办公室中设置了多功能的共享区域,如茶水区,洽谈区,休息区及打印区等,形成可以高效服务于办公区的office hub,通过其多元化的功能满足员工的不同需求,促进团队之间的交流与协作。        

发直播

公开