
「老外街」位于上海闵行区虹桥镇
东起虹许路,西至虹梅路
是在废弃的虹桥机场运油铁路路基上改建而成的街巷
全长仅仅480米,却汇集了十几个国家的风味主题餐厅
外国人时常前来光顾、游玩,“老外街”由此得名
如今这里已跻身为上海最著名的休闲地标、夜生活地标之一

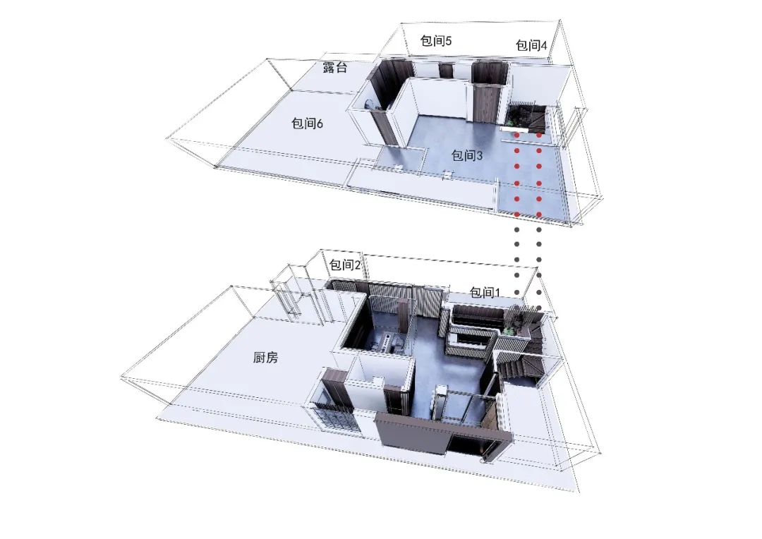
爆炸图
隐世之所 友名荟所在场地的前身是独立的老旧厂房 上下两层总面积480㎡,共有6个包房 进入会所后 一块影壁似的不透明玻璃隔档 阻拦了从入口向空间内观看的视线 既强调了友名荟私密的会所性质 又是对“犹抱琵琶半遮面”这一东方审美的恰当表达 当“竹”的剪影形象投射在玻璃上时 让人仿佛置身葱绿的竹林,更加想步入深处一窥究竟



「大小」的视角
担任友名荟设计的是上海大小建筑设计事务所 事务所多从事大型办公、商业体等建筑的规划与设计 在大小建筑看来,室内设计是建筑思维的延伸空间 是建筑师视角的归纳与总结 从“大”到“小”都是对空间串接的设计与考量


大堂
友名荟内 装饰栅格的灯光墙组成大的块面,将两层空间串接起来 加上深棕木色调与白色交相穿插 如同节奏与韵律和谐的建筑立面 将整个会所概括在统一且简洁的视觉语言中 而柔和的发光墙体与光带 则为空间渲染出雅致、幽静的氛围



东方的雅韵
摒弃繁杂的装饰,巧妙运用减法设计 舒适的茶室与简洁的酒吧区域 是到访者对友名荟这处质感空间的第一印象 空间的整体美感从这里铺陈开来



吧台
从吧台处拾阶而上 栅格墙面与房门之间用圆润的弧形角度连接 微妙的进深赋予连廊“曲径通幽”的基调 与入口处的“竹林”形成精神与气韵上的贯通 而“竹”又与台阶转角处的“松”呼应 是意喻草木繁盛的“荟”字的精神写照 同时又恰到好处为空间勾勒出 贤人雅士聚集于此的高雅意境

茶室

步入包房内部,设计师留白的巧思在此呈现
白色大面积晕染开来,而木色则退居成为点缀




在雅致色彩的映衬下
墙面上悬挂的写意画作十分引人注意
既是装点空间的背景又是视觉的重心
像中国古典园林中用作造景的洞窗一般
窗内窗外互为风景,画作与宾客也互为景致
似乎空间之外便是曲院风荷


项目信息
项目名称 | 友茗会餐厅
项目地址 | 上海老外街国际文创生活园1号楼
业主 | 上海佳茗餐饮有限责任公司
建筑面积 | 480平米
设计团队 | 李瑶、吴正、陈思捷、王晖、陈平平等
机电团队 | 上海中建建筑设计院有限公司
灯管顾问 | 上海路盛德照明工程设计有限公司
建筑摄影 | 刘磊摄影工作室
故事还在继续 ...
To Be Continue
全部评论