
胡扯咖啡坐落于苏州老城区鹅颈湾。通过将最初位于购物中心的店铺,以外卖为主的经营模式,搬迁至沿街店铺;一边是热闹的街道,一边是富有年代感的居民楼,闹中取静,给大家更多空间和时间坐下来一起闲谈,一起感受生活。Rachel的设计初衷与业主不谋而合,舒适的室内环境结合趣味的游戏摆件,温馨、放松。
▼项目外观

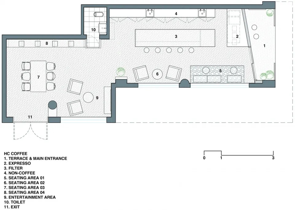
将空间划分为“入口露台”、“开放式厨房”、“起居室”、“餐厅”等;让每位参与进来的咖啡爱好者,都能成为胡扯“大家庭”的一员。内退式入口给露台提供了足够的空间,无论是在室内还是入口露台就坐,都能够在品尝咖啡的同时,与周围环境保持互动。


▼不同风格的座椅


▼内退式入口形成露台

▼入口处的装饰

内部在保留原始结构基础上,以水泥墙面、水泥地砖为背景,通过选取马里奥兄弟的红色与绿色,将室内休闲区与功能区区分开。同一个室内空间,多种座位方式的尝试,根据每个人自己的喜好选择,完全不一样的体验。胡桃木色为主的家具与低饱和度色彩趣味的点缀,相互共存。
室内暖白光源,无论是白天还是夜晚,均让室内拥有日落般的惬意。

▼后方的休闲区

▼平面图

项目信息
项目名称:胡扯咖啡店
设计方:王媞
项目设计&完成年份:2020
项目地址:江苏省苏州市姑苏区鹅颈湾
建筑面积:80㎡
摄影版权:李仁
材料:真石漆、水泥砖、立邦漆、手工釉面砖
故事还在继续 ...
To Be Continue
全部评论