
项目坐落于享有盛名的重点高中武汉中学内,原项目地点为教学楼走廊处的学生阅读区。因其一面面向开阔的公共通道,是众多学生出入教学楼的常经之处,拥有得天独厚的展示面,遂选定此处为禁毒教育基地的选址,从而有了我们重新审视一个教育展示空间的想法。
The project is located in Wuhan middle school, a famous key high school. The original location of the project is the student reading area in the corridor of the teaching building. Because one side faces the open public passageway, it is a common place for many students to enter and leave the teaching building, and has a unique display surface. Therefore, we chose this site as the site selection of the anti drug education base, thus we have the idea of re examining a display education space.

▲ 空间原状(学生阅读区) Original space

▲ 改造后外立面 Facade after reconstruction
参考其他政府性教育展示空间案例不难发现其大多可规划为两类:一类是因缺少经费难以支付设计及建造费用,空间仅以基础的白墙及广告宣传知识为主体,用最经济的方法解决为学生传播知识的问题方式。二类是拥有一定的经费,建造出来的整体以夸张的造型和炫目的色彩灯光来吸引眼球,而鲜有关注内容本身。
Referring to other government education exhibition space cases, it is not difficult to find that most of them can be planned into two categories: one is that it is difficult to pay the design and construction costs due to lack of funds; the space is only based on the basic white wall and advertising knowledge, and solves the problem of disseminating knowledge for students in the most economical way. The second type is to have a certain amount of funds, the construction of the whole with exaggerated modeling and dazzling color lighting to attract attention, but little attention to the content itself.



社会的现状引发我们对教育展示空间的思考与探索,这也是我们尽力去摆脱的现状以及跳出当下展示空间利用夸张造型及炫目灯光夺人眼球怪圈的思考,同时也是对我们自身设计批判的一些参照。
The current situation of society leads us to think and explore the educational exhibition space, which is also the status quo that we try to get rid of, and the thinking of jumping out of the current exhibition space and using exaggerated modeling and dazzling lights to catch people's eyes. It is also some reference for our own design criticism.



教育展示空间的使命是把内容知识完整的传输到观览者自身,我们认为此次展示空间的基调应为“优雅适度的空间+可阅读性的内容知识”的组合方式,抛弃其他不必要的元素,去装饰化,反归到其需求本身。
The mission of educational exhibition space is to transfer the content knowledge to the visitors themselves. We think that the keynote of this exhibition space should be the combination of "elegant and moderate space + readable content knowledge", abandon other unnecessary elements, de decorate and return to its needs.

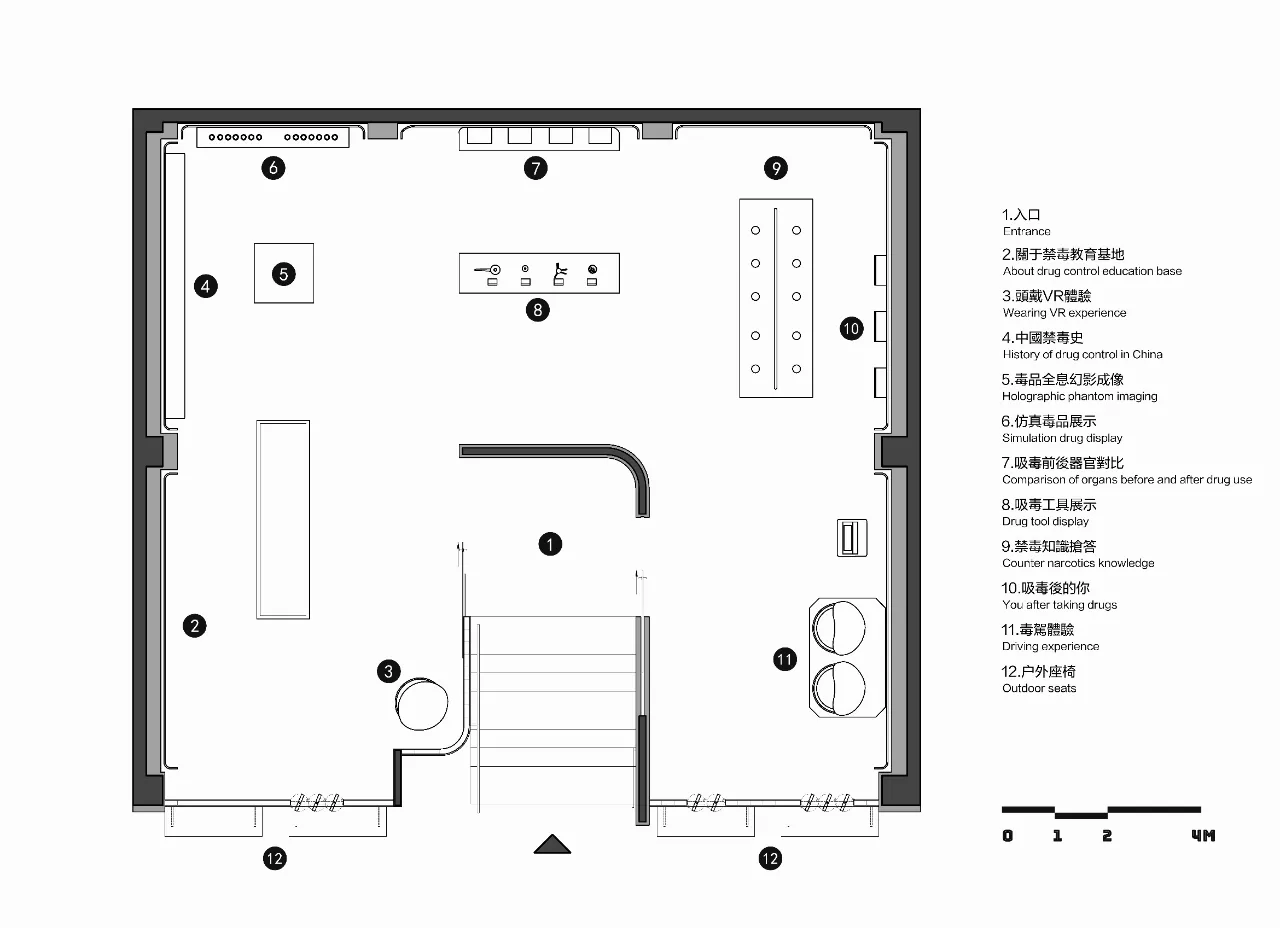
少年兴则国家兴,少年强则国家强。青少年是国家的希望,民族的未来。青少年正处在生理、心理发育成长的时期,对抵制毒品的危害性和吸毒的违法性缺乏认知,容易受到毒品的诱惑。
Well equipped youths lead to a powerful country .Adolescents are the hope of the country and the future of the nation .Adolescents are in the growth period of physical and psychological development .They lack awareness the dangers of resisting drugs and the illegality of drug abuse.

▲ 全息影像系统展示 Display of holographic image system

目前,吸毒人员虽然年均呈明显下降的趋势,但吸毒人群也逐渐向年轻化发展。青少年吸毒的问题越来越严峻,严重影响社会和谐和青少年身心健康发展。预防青少年吸毒,做好青少年禁毒教育工作已经成为一个刻不容缓的问题。
Well equipped youths lead to a powerful country .Adolescents are the hope of the country and the future of the nation .Adolescents are in the growth period of physical and psychological development .They lack awareness the dangers of resisting drugs and the illegality of drug abuse .Preventing drug abuse among young people and teaching education for youth about drug control now has become an urgent issue .

▲ 利用pad动态影像展现 Using pad to present dynamic images


▲ 屏幕抢答互动装置 Screen answering interactive device

简单的体块形体组成整体的空间,平静而优雅,观览者可以安静的阅读吸收所展示的知识,而不是惊鸿一瞥过眼云烟。让观览人群放慢脚步,细心观察和阅读思考。
Simple forms form a whole space, calm and elegant, visitors can quietly read and absorb the knowledge displayed, rather than a glance at the clouds. Let the audience slow down, observe carefully, read and think.



西方哲学家Leonard Koren曾这样说过,“削减到本质,但不要剥离它的韵,保持干净纯洁但不要剥夺生命力。”
Western philosopher Leonard Koren once said, "cut to the essence, but don't peel off its rhyme. Keep clean and pure, but don't deprive vitality."



规避浮夸繁复的装饰,而于抽象及体块形体中展现事物本质的美,摒弃物质而着重精神。
It avoids pompous and complicated decoration, and shows the beauty of the essence of things in the abstract and the body, aba n the spirit.



▲ 前期手稿 Early manuscript

▲ 空间体块概念 Space concept block

▲ 平面概念 Plane concept
项目信息
Information
━
Name | 项目名称:
WUCHANG Drug Control Educational Base | 武昌区禁毒教育基地
Location | 项目地点:
WUHAN,CHINA | 中国 武汉
Area | 项目面积:
120㎡
Client | 项目委托方:
WUHAN CITY NARCOTICS CONTROL COMMISSION | 武汉市禁毒委员会
Date | 完成时间:
11.2019 | 2019年11月
Interior Design | 主案设计:
XUAN 湯 璇
Article | 撰文:
XUAN 湯 璇
Photographer | 摄影:
XUAN 湯 璇
故事还在继续 ...
To Be Continue
全部评论