

要让顾客能坐下
情绪不波动
让顾客感到轻松、舒适、温馨
并具有信赖、安全感
那么店内色调一定要
因地制宜的
有趣配置。

客人不是找来的
应该是被沙龙时尚
及专业的氛围吸引而来
沙龙装修设计是一件
很系统的事。

今天分享的沙龙设计案例
位于台湾省台北市
在97平方米的空间中
设计师将发艺视为
一种空间铺陈的表现手法
由里到外将空间裁剪、打薄
重新排列。

设计师将空间里旧有的装饰褪去
重新想像空间
经过裁剪后的样貌
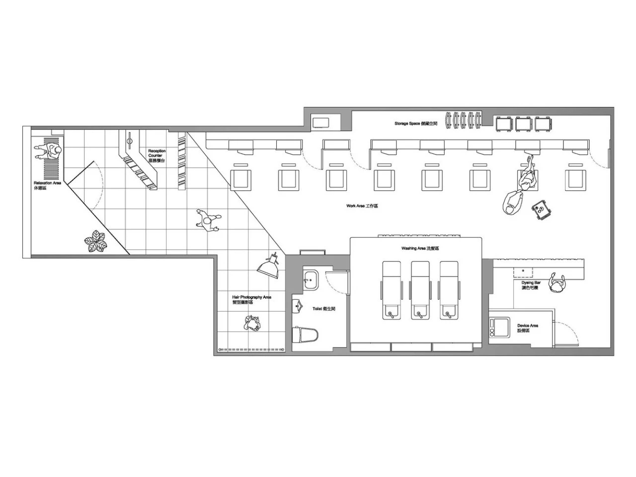
分别以入口休憩、接待、工作
三个区块呈现
以此划开新的空间层次
从中萃取主次动线的排列。

首先以暗色调的入口作为缓冲
接待区块则采用材质转换的
方式跟入口连结
并结合发型摄影棚形成
独立的空间断点。

工作区块则是由入口
较为粗旷的暗色调介面
接续至剪发空间
使明亮的接待区块成为入口
和工作区的中介过渡。
同时也让视觉有效的聚焦
并运用色域交界的空间纹理
带给使用者显著的分区冲突感
构筑沙龙空间的新体验。


整体形象以俐落的线性剪裁贯穿
由入口立面对应到木质门把
再由接待柜台延伸至隔屏
以垂直的斜切面呈现
使得外部视觉不容易直视内部。
并透过反射感较为模糊的金属材质
提高物件柔和的轻盈感
让面积较大的固定物件
经过裁剪后的排列
在空间中保有流畅的穿透性。


沙龙以照明配置
将空间的明暗色调点缀的更加丰富
强化空间的视觉层次
使得物件在经过裁剪后的间隙
能在观看时从不同角度产生
非定性的空间表情。

沙龙以不影响工作动线的情况下
有效利用既有的畸零空间
安排一个发型摄影棚
并在工作镜柜体的后方隐藏了收纳空间
专门提供推车和折迭课椅的
储藏使用。




▲平面布置图
故事还在继续 ...
To Be Continue
全部评论