
门头的设计将是一个亮点,要想达到吸睛的目的,不能强行“秀操作”,得环顾四周其他店面,找出他们得共同点,反其道而行之。他们都有一个共同点,门头颜色普遍偏重抑或是鲜艳,所以我们只需要用浅一点淡一点的色彩即可。

在门头造型的形式上,考虑到门头体量并不大,我们希望采取若隐若现的空间手法,这种空间手法用在当下最合适不过。紧接着就是产品陈列主次关系,门口的位置相当于所有陈列位置的C位,极其重要,产品本身的吸睛多少也在一定程度上决定了顾客进店的概率。所以C位规划了相当大的一块区域放当下最畅销的产品。

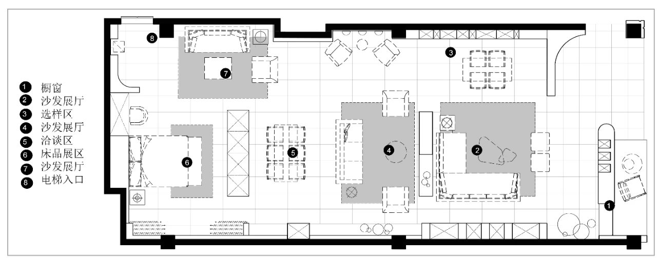
家居店的设计与住宅设计有相似之处也有不同之处,它要具备很强的兼容性,既要保留居家的内敛,同时还要彰显店面的个性。空间布局,也就是动线的规划是商业设计最重要的。合理的动线有助于顾客阶段性的购物体验,同时也有利于销售人员有节奏的向顾客推荐产品。就建筑结构来看,店内开间小进深长,设计难度不小,同时根据管理方的规定,从店外过道通往店内观光电梯入口的动线上不能有障碍物。结合以上几点,“回形动线”是我们认为最恰当的方式。
空间布局轮廓已经完成之后就要开始附材质了。我们有一些争论,到底用什么材质打底。一种声音是,多种材质让空间更有层次感;一种声音是,用单一的材质打底,切勿喧宾夺主,主要还是突出产品的特点。这要引入一个根本性的观点,家居店设计的重点是什么?答案是引入人流量,突出产品特点,激发购物欲,传递企业文化。当我们理清楚这几层关系后,思路清晰了不少。在综合参考店面的空间体量,售卖的家具产品等多方面因素后,我们决定选择单一材质为空间打底。




[ 洽谈区 ]
洽谈区位置的关键点在于,以它为圆心,视线所及之处为半径,是否能辐射到销售人员可能会推荐到的产品。毫无疑问,中间区域将是洽谈区的最佳位置,当然,少不了合适大小的银屏辅助谈单,这很大程度上让谈单的内容更丰满。

[ 卧房家具展示区 ]
剩下最后一个区域,也是最靠里的一个区域,我们之所以将床放在这个区域,是为了模拟我们回家看到家具的先后顺序。作为一个家居集合店来讲,进店就是床品,在心里上难免会不太适应。

[ 展示分区 ]
三大区域的确定,让设计有了阶段性的进展。现在回到最初的问题,怎样做到保留居家的内敛,空间的界定是重点。
完全不透,太过沉闷;完全通透,毫无层次感。
最终,我们决定利用玻璃材质的属性解决这个问题,同时,它还需要满足店内陈列产品的需求。为此,我们让玻璃壁炉作为第一个屏风,不锈钢支撑的玻璃柜作为第二个屏风。首先壁炉元素出现在沙发组旁并不突兀,而玻璃壁炉既形成了屏风又增加了相邻两个区域的互动,同时恰到好处的完成了区域之间的过度。玻璃柜屏风使得床品区域较隐蔽,这个区域我们希望相对私密一点,在动线合理的情况下最好能就此模拟一间卧室,也是希望带给顾客一种沉浸式体验。这两个屏风的确定,奠定了空间的基础,后面的工作也就容易多了。

[ 商业美陈 ]
如何让空间有一定的趣味性,同时还要陈列部分软装饰品,得给软装留有发挥的空间。是时候凹凹造型,张扬个性了。但是由于空间的局限性,在内凹或则外凸的基础上得有一定的序列感,但整体效果不能过于抢眼,毕竟它们并不是主角。





最后这个位置其实是另一个电梯的入口,所以我们用小造型来呼应大门头的位置。

[ 设计图与项目落地 ]
项目的设计与落地是客户们比较关心的一个问题
每个项目一般情况落地在80%就已经是非常完美的了
当然硬装一般完成会在90%以上,软装会调整的部分相对要多一些
入口:相似度80% 门廊缩小了玻璃面积,整体进口区满足商场要求开口达到3M。

内部空间:相似度99% 陈设调整






▼平面布置图

/ 设计伊始 /
我们要开始设计一个家居店,
这是一件非常有趣的事情。
摆在我们面前的有一系列的问题:
它是一个什么样的家居店?
店面的商业属性是什么?
主营产品是什么,副营产品是什么?
同时,店面的整体形象要给顾客传递一个怎样的企业文化?
与甲方展开很长一段时间的沟通后,
我们选定了展示主流产品为主导的设计方向
没有奢侈感与概念化
更多的是用简洁的设计手法来平衡产品的视觉输出。
故事还在继续 ...
To Be Continue
全部评论