
将品牌精神融入当代消费者使用场景中,成为我们设计最重要的切入点。
首先将空间分成几个区域,这也有利于我们理清动线关系,空间是否宽敞和动线是否合理,决定了是否能将产品的特点展示出来,顾客是否有良好的购物体验。
设计理念 / Design concept
圆弧形设计可以让空间更有趣味性。所以我们考虑用一些简单的圆柱体与长方体结合,几种不同规格的几何体相互穿插,从而在几何体内部形成一些耐人寻味的空间。


圆弧形的造型并不是凭空想象出来的,而是通过4根圆柱体切割立方体自然而然形成的切面而得来的,圆柱体并不真实存在于空间中,仅仅是为了切割空间。
水平放置的粉色圆柱体切割了主次入口,将主次入口所在的外立面联系起来。从主通道经过时,门头效果更加壮观。垂直放置的红色圆柱体切割了门头空间,形体上并没有完全将空间切断,而是用橙色玻璃砖延续圆柱形体,用不同的高度围合这个圆形区域,当视线移动时,会给人一种若隐若现的意境感。最后两根有一定倾斜角度的橙色圆柱体在原建筑的其中一面墙相交,在墙面上留下了两个相交圆的造型,当在店外从造型处经过时,如同一个硕大的“望远镜”帮你窥探室内的风景。而两根橙色圆柱体的另一端与建筑的切面分别形成了两个橱窗。
门头 / storefront signboard
由“细腻主义”包裹外立面,成为建筑的内外沟通介质。

门头的设计,一方面要考虑到商场的人流量,分清主通道和次通道。高人流量的通道将是我们考虑店面主入口重要依据。另一方面还要考虑到店面的入口对店内的动线的影响。


根据店面地理位置的特点,选择东面作为店面的主入口,北面作为次入口,当考察了现场的情况以后,考虑到店面的三面都是通道,有很大的空间可以作文章,于是做出了一个大胆的决定,用相同的设计手法将主次入口联系起来,将店面的结构看作是一个几何盒子,整体设计,让外部可视面保持同一种节奏。

“望远镜”造型、橱窗、主次入口的门洞同时构成了整个店面的外立面效果。我们运用圆柱体去切割立方体从而使空间的手法统一,贯穿始终。


无论顾客从任意方向经过,都能感受到外立面有规律的变化。
内部空间 / inner space
室内设计贯穿了异形的建筑体块,以棱角分明的现代力量感,有意区别于生活的自然形态。深色系的空间基调之上,漫反射的光照模式和光滑饰面的二次反射相结合,营造出悠远的视觉广度。















设计细节 / Design details
细节的处理为品牌和客户在购物旅程中提供了耳目一新的视觉角度。




项目落地 / Actual
注重差异性的设计的同时,保证项目实际落地率。
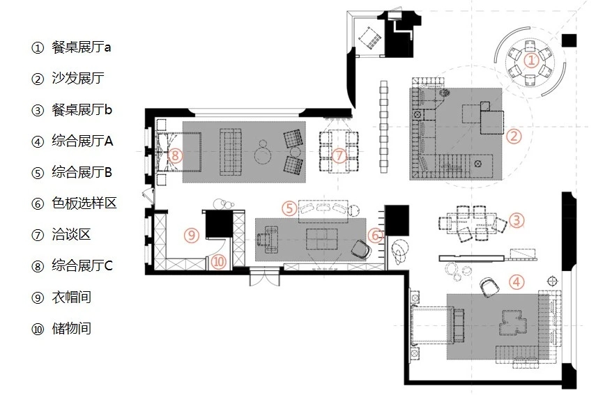
方案设计图




ZC HOME

▲平面布置图
设计不仅与美有关,还要去关乎人性
重建人与事物的关系
用丰富的文化和探索的思维形成了完美的平衡
组建而成魅力无限的空间
—
故事还在继续 ...
To Be Continue
全部评论