


前台
|| 设计理念
从人类开始修造建筑之初,建筑与石材之间就保持着千丝万缕的内在联系。本案是石材展厅项目,设计不仅需展示不同石材的色泽、纹理和质地特点;更聚焦于石质材质的肌理表现而激发参观者的视觉联想。

展示区
为创作寻找一个灵感点,能够引导设计元素的整合。整个石材展厅秉持“以全新视角审视石质材质之间微妙关系”的原则,由“太空”的灵感出发对材质、人与空间作了全新解读。闭目幻想置身于浩渺无垠的太空宇宙中,人的身体在悬浮、运动的巨大星体面前显得如此渺小。也正是这种悬殊的状态,才使我们真切地被星体变幻的色彩和微妙的肌理所震撼,体会“材质”的张力和冲击感。设计的每个细节都用心营造视觉上的别开生面,形、色、质相互作用传递出石材的个性。











展示区
|| 创作解读
设计采用了较多的象征性分割,划分不同功能分区的同时保持着空间的开阔性。错落的高差结合灯光、家具设置,使领域变得明确;抽象、概括的几何形界面因此被自然而然地突显出来。

大板展示区
特意打破传统石材展示标准的石样尺寸,采用不同形状且大小迥异的石材错落分布,营造视觉上的疏密、聚散变化。




会议区
洽谈区是整个展厅项目中需要具备较高“私密性”的功能空间,它既要提供一个舒适的洽谈环境,又需融于整个空间氛围中。由“太空舱”的形象出发,以“保护”、“探索”的关键词作出解读:凝练地概括为发光立方体,将之“嵌”于展厅一角。空间之间既相互独立,又可便捷地实现场景转换而并不突兀。此外,“太空舱”的洽谈区形象在外界面上还可与入口形成“光暗”对比,起到视觉的强调作用。


洽谈室
展示石材与构建室内空间的多种材质协调,着重把握色彩、纹理、尺寸及出现的规律和节奏。项目室内空间的材质选择了大量的无彩色黑、白、灰以平衡并调节多色展示石材的炫目效果。大量散射光源设置,烘托了空旷的氛围感,散发些许艺术气息。


展厅
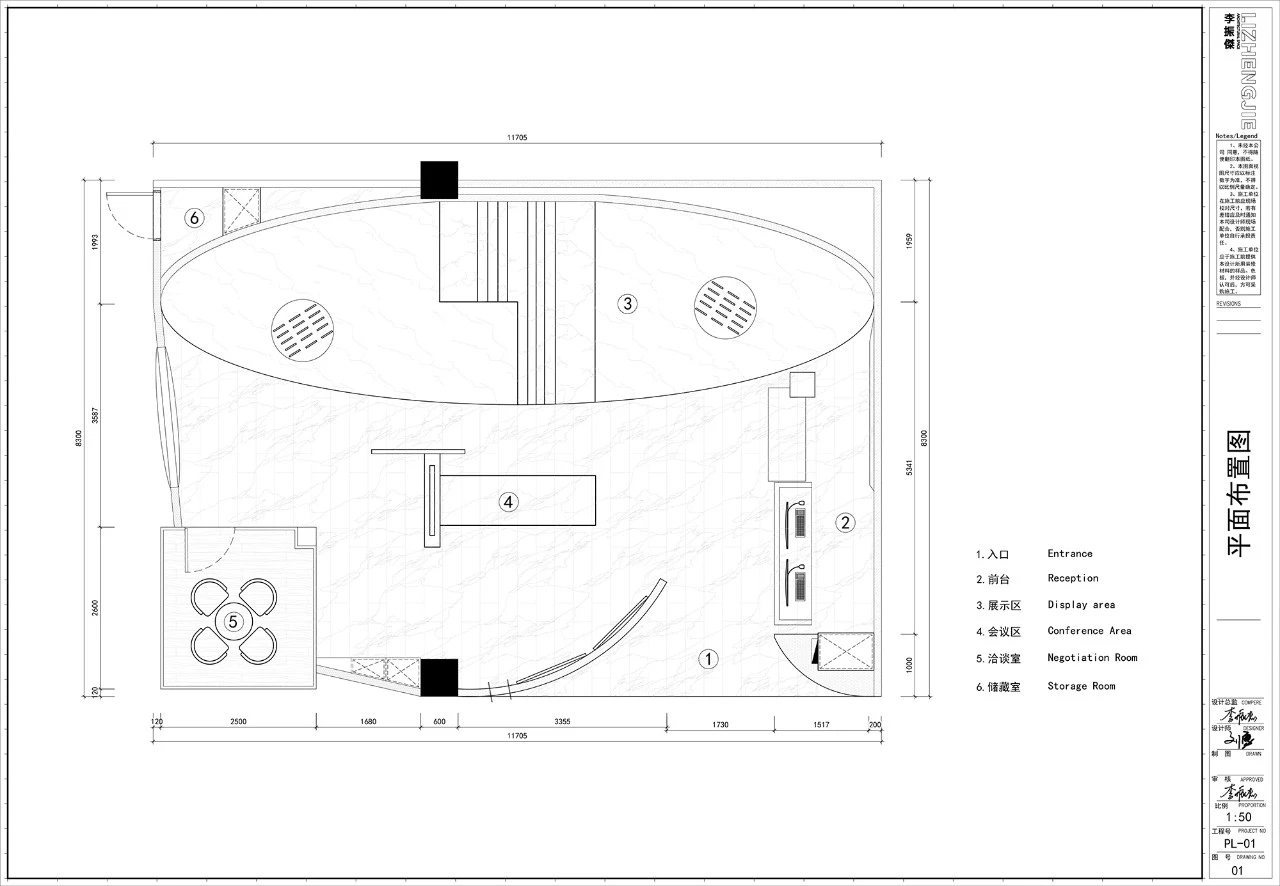
▼平面图

▼门头A立面

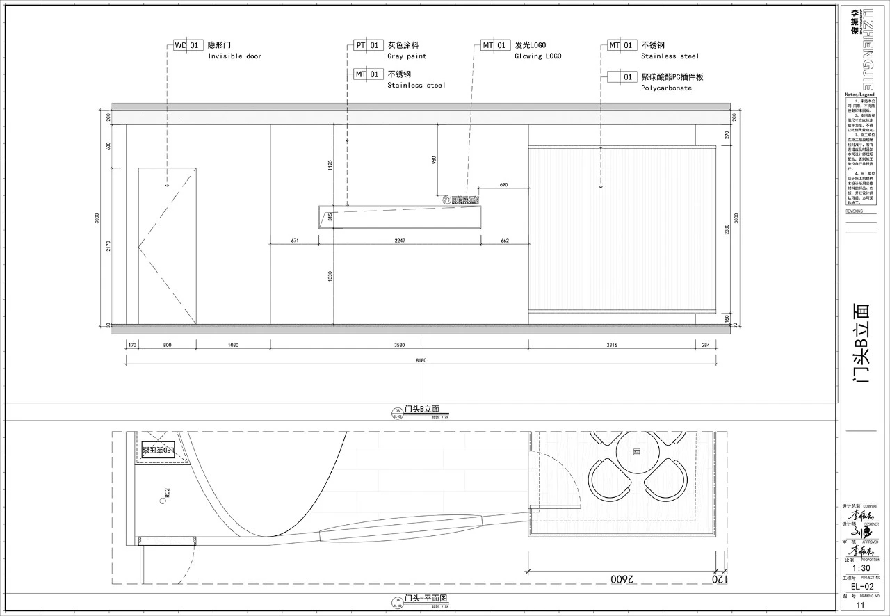
▼门头B立面

▼展厅A立面

▼展厅B立面

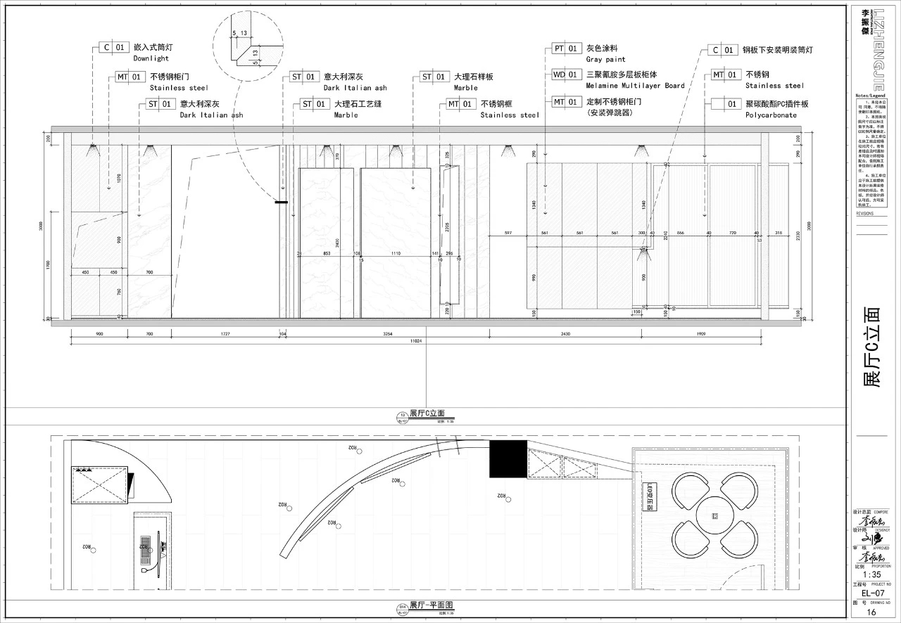
▼展厅C立面

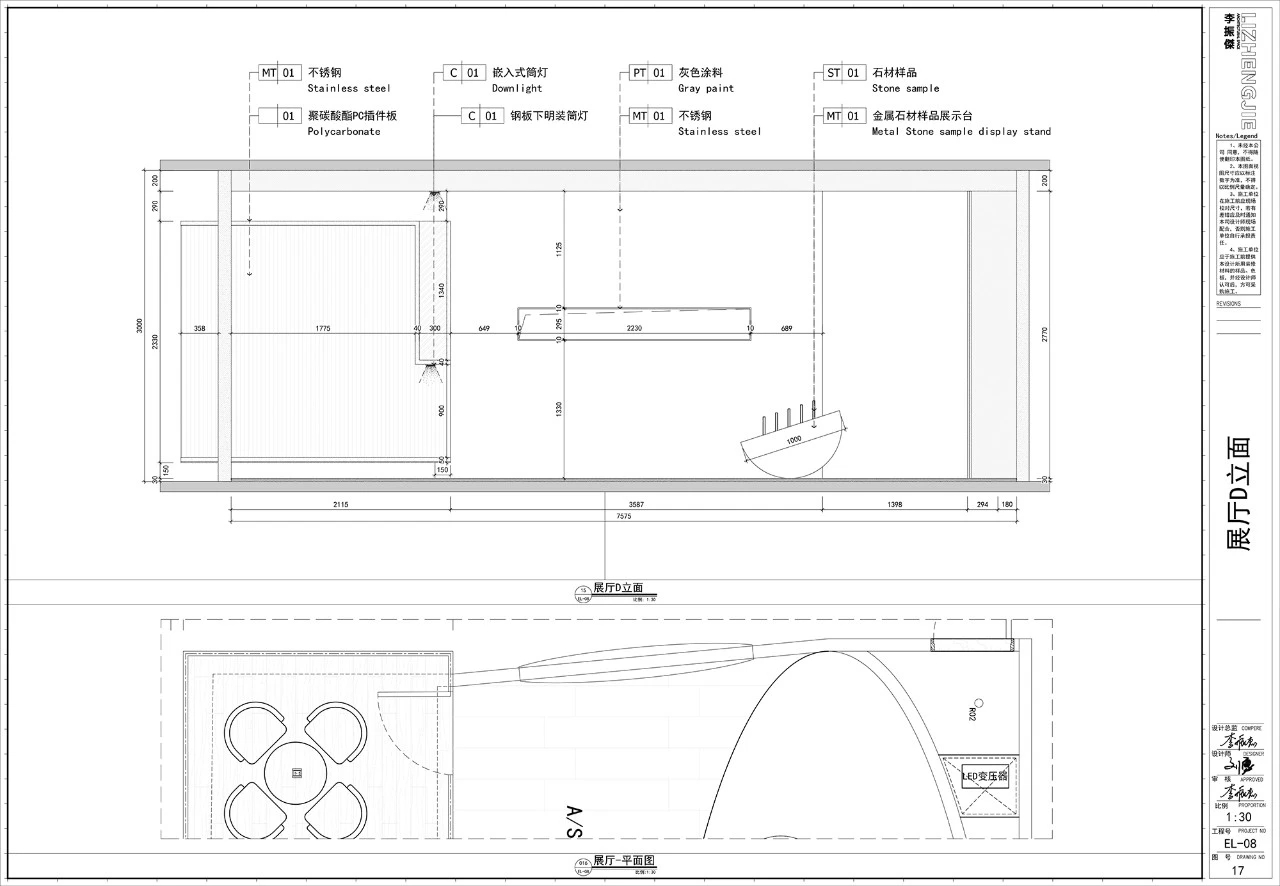
▼展厅D立面

▼节点图

项目信息
项目名称:西德尼石材展厅
设计师:李振杰
项目地点:福州市晋安区连江北路293号喜盈门建材广场
项目类型:工装展厅
项目面积:98 平方米
完工时间:2019.09.10
摄影师:科比
材料:水波纹不锈钢(奥胜火)、大理石(西德尼)、水性涂料
故事还在继续 ...
To Be Continue
全部评论