

▅同仁堂知嘛健康打造了健康饮食+医馆+体检+社交文娱的复合功能体。设计师王永将实木和黄铜在店内大面积铺陈、冲撞。从首层向上,知嘛健康分别以象、食、养、医为主题完成了整个概念店的主题设置。
Tongrentang Zhihe Health has created a complex functional body of healthy diet + medical hall + physical examination + social entertainment.Designer Wang Yong laid out solid wood and brass in a large area of the store.From the first floor up, Zhihe Health completes the theme setting of the whole concept store with the theme of elephant, food, nutrition and medicine.
Drink Goji Berry Coffee, Stay up in Good Health

▅同仁知嘛健康头牌-枸杞咖啡
Health tip of tongren - Goji Berry coffee



枸杞咖啡作为知嘛健康的“头牌”饮品,将安神助眠的枸杞和咖啡结合,稳稳拔得进店客人挚爱榜单头筹,每一颗宁夏枸杞都拥有“同仁堂甄选”的贵族身份,价格却和一杯精品咖啡持平,一边嗑咖啡因一边养生,后浪们喝完,真香!
As a healthy featured drink of Zhima Health, goji berry coffee combines coffee and goji berry which can soothe the nerves and improve sleeping. As the most popular drink among the customers, goji berry coffee adopts the high quality barbary wolfberry strictly selected by Tongrentang, while the price equals to a cup of specialty coffee. Enjoying caffeine and keeping in good health, the new urban noble tastes it and smells the fragrance.

The Four WordSecret of Health Maintenance

/ 象 食 养 医 /
/ Inquiry Food Convalescence Cure /







▅首层“食”——红酒坊
Wine area in “Food” themed space on the ground floor.


▅首层“食”——膳食坊
Food area in “Food” themed space on the ground floor.
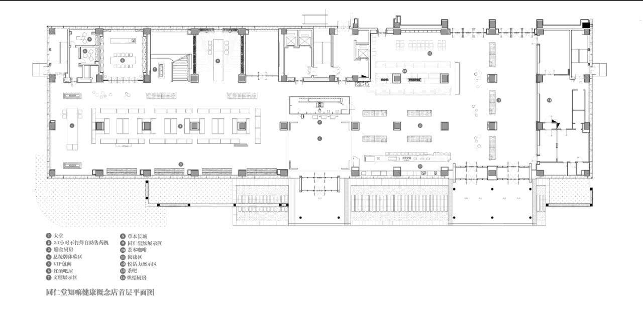
在0号店首层以“食”为主题的空间内,新贵族们的养生食谱将得到一站式解决。膳食坊、红酒坊、中西茶饮坊、和烘焙坊分布在两千平米的首层空间内。
In the “Food” themed space on the ground floor of the zero store, the health recipes solutions can be offered in one stop. Here, the food, wine, Chinese and Western tea and baking areas are distributed in the two thousand square meters space.



▅首层“食”——咖啡坊
Coffee area in “Food” themed space on the ground floor.
深灰色吧台围合的古膳食堂里,知名大厨根据四季节气研制出多样宫廷滋补膳食秘方,在咖啡区组养生咖啡局,或者在红酒坊买最健康的醉,都是新贵族打开食谱的最佳方案。
In the ancient diet dining hall enclosed by the dark gray bar, well-known chefs have developed various secret palace nourishing diets according to the four seasons. Whether tasting a cup of health coffee or drinking wine is the best solution to unfold the recipe.


▅首层“食”——烘焙坊
Baking area in “Food” themed space on the ground floor.

从春季滚汤到冬天的一碗腊鸡冬菇,知嘛健康干脆承包了全年食谱。而根据不同阶段的身体需求研制的食疗配方更是伴随了整个生命周期——产后调理、儿童膳食、老人三高亚健康等等。16800支药盒起伏绵延覆盖首层2000平米的天花,集百草后,药盒高悬,用吃饭改变活法的时代正式开启。
From the hot soup in spring to a bowl of cured chicken and mushrooms in winter, Zhima Health has covered the recipes all year round. And its diet therapy is developed according to the physical needs of different stages in the entire human life, which includes postpartum conditioning, children's diet, elderly three highs (high blood pressure, high blood sugar and high triglycerides), sub-health and so on. 16,800 medicine boxes are arrayed to cover the 2000 square meters ceiling on the ground floor in a waved and extending way. After gathering all the herbs, the medicine boxes will be hung up high, and the era of changing lifestyle with meals is officially opened.
/ 养 /

“象”与“养”两大主题位于0号店二层空间。同仁堂将中医中代表检测的“象”和以亚健康管理、理疗为主线的“养”通过不同功能的空间逐一铺陈。
Another two main themes of “Inquiry” and “Convalescence” are set on the second floor in the zero store. The functional areas like the body examination of “Inquiry” space and the sub-health management and physical therapy of “Convalescence” space are arranged in order by Tongrentang.


▅二层“养”——亚健康解决方案长廊
Sub-health solution corridor in the“Convalescence”themed space on the second floor.


在亚健康解决方案长廊,通过健康数据监测追踪,能直接为亚健康定制出从膳食到保健运动的全套方案。长廊附近的休闲文创空间则延续了一层的水磨石、老实木等等。
In the subalt-health solution corridor, through health data monitoring and tracking, a full set of solutions can be directly customized from diet to health care sports for sub-heh. The leisure cultural and creative space near the long corridor extends the use of terrazzo and old solid wood.

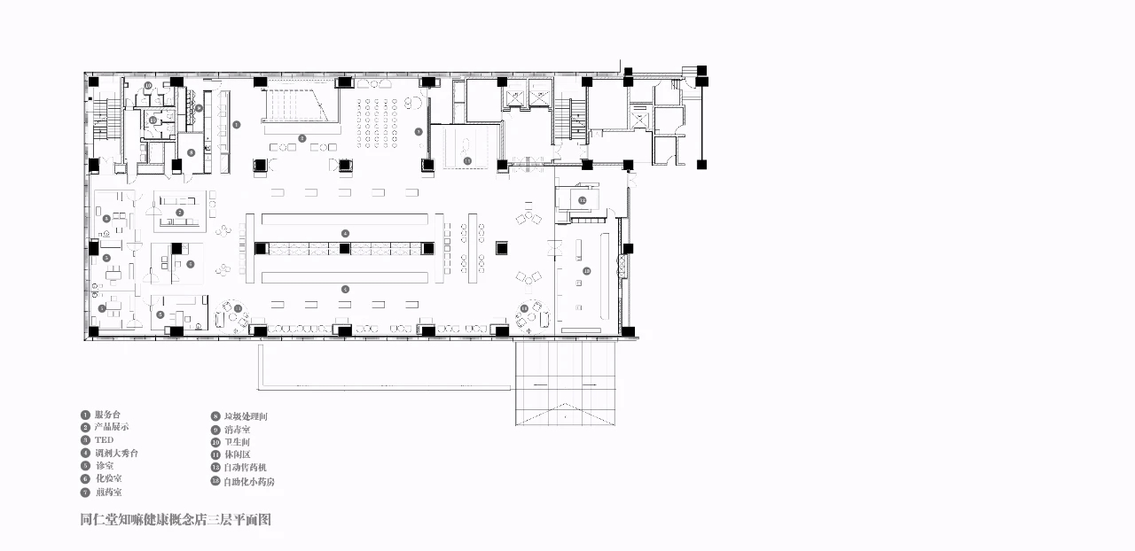
▅三层“医”——中药调剂秀台
Traditional Chinese medicine dispensing table in the “Cure” themed space on the third floor.
以“医”为主题的三层空间中,满目药柜的古老医馆经过当代设计手法的演绎变成如今开放、舒适、专业的现代医馆。 In the third floor themed with "Cure", the ancient medical hall full of medicine cabinets has been transformed into an open, comfortable and professional modern medical center through contemporary design techniques.



▅三层“医”——健康TED
Health TED in the “Cure” themed space on the third floor.

健康TED直播的区域定期开展各种健康讲座,社区里的养生达人新据点,就是这里了!从医病到养护,虽然换了面貌,但同仁堂还是那个“药到病除”的金招牌。
The health TED live broadcast area regularly conducts various health lectures, which has become the new center for health care professionals in the community. From medical treatment to maintenance, although the face has changed, Tongrentang is still the golden brand of "medicine to cure".

500平米的双井1号店如今已经正式对外开放,这些真正走进社区的门店将拥有0号店的全部功能体验,接过同仁堂发的健康牌,一起做个新贵族吧!
The 500-square-meter Shuangjing Store No. 1 is now officially open to the public. These stores that really enter the community will have all the functional experiences of zero store. Let’s take the health card dealt by Tongrentang and become a new urban noble!

但愿世间人无病,宁可架上药生尘。”
“I hope people in the world are free of disease, and I would rather the medicine on shelf is full of dusts.”
揣着这句理想,同仁堂从百草到御药,再到养生滋补品,走过了350年的历史。即便没踏进过同仁堂的药铺门,这块金字招牌的分量大约也沉在每个中国人心里。不过,就当你怀疑同仁堂是不是古老的只剩下一块金字招牌的时候,它搞了件大事情。 Envisioned by this ideal, Tongrentang has gone through 350 years of history from herbs to royal medicine to health tonics. Even if one has not stepped into Tongrentang medicine shop, its reputation has probably branded in the hearts of every Chinese. However, when you doubted whether Tongrentang was out of date and only a signboard left, it has done something big.

2020年,同仁堂健康旗下的新品牌“知嘛健康”正式诞生,依托着全新的知嘛健康超级概念店,彻底颠覆传统的沉浸式购物体验也正式拉开了帷幕。老字号开始以更年轻、更时髦、更包容的方式卖实力,从今天起,知嘛健康就是你的城市新据点。
In 2020, the new brand Zhima Health owned by Tongrentang was officially launched. Relying on the brand-new Zhima Health Concept Store, the immersive shopping experience that completely subverted tradition has began formally. The old brand is showing its strength in a younger, trendier and broader way. From today on, Zhima Health is your new activity center in the city.

作为同仁堂新物种-知嘛健康的空间全案设计师,无象空间陪同仁堂走过了整整5年时间,从提出战略转型到大型0号店正式开业,同仁堂的变革路上有太多故事。
As the interior designer of Tongrentang's new brand - Zhima Health, Wang Yong has accompanied Tongrentang for five years. From the proposal for strategic transformation to the official opening of the large-scaled zero store, there are too many stories in the transformation process of Tongrentang.

这个时代正在推动老字号做出改变,无论重塑还是创新,这场声势浩大的升级变革都势在必行。知嘛健康拉开帷幕的这一刻,有新生的雀跃,更有一如既往的泰然坚定。“新国货是时代的列车,是老字号品牌文化新的传承,你坐上这趟列车了么?”
This era is pushing old brands to make changes. Whether it is reinventing or innovating, this massive upgrading change is imperative. At the moment when Zhima Health is launched, there is a joy of new life, and even more firmness as ever. "New domestic merchandise is the train of the ages, as well as the new heritage of old brand culture. Have you been aboard this train?"



▅
項目名稱:同仁堂—知嘛健康线下体验店
項目甲方:北京同仁堂健康药业
項目地址:北京大兴药物生产基地思邈路39号
設計主創:王永
设计团队:朱晨旭、張桂影、譚維、姜福崗、賈志勇、于跃
現場管理:彭善祥 卢正坤 陈一轩
設計面積:5000 ㎡
設計時間:2015年
建成時間:2018年
項目攝影:影喻建筑空间影像
燈光設計:北京影卓照明设计
照明顾问:福州迈光照明灯光服务商
陈设顾问:无象营造
家具品牌:锐驰,木美
设备品牌:上海库轲
品牌顾问:北京百得整合创意
标识设计:图石设计
视频提供:北京同仁堂健康药业
项目策划:楽楽品牌策略机构
Project name: Tongrentang - Zhima Health Offline Experience Store
Constructor: Beijing Tongrentang Health
Project address: No. 39 Simiao Road, Daxing Pharmaceutical Production Base, Beijing, China
Chief designer: Wang Yong
Design team: Tan Wei, Zhu Chenxu, Zhang Guiying, Jiang Fugang,
Jia Zhiyong, Yu Yue
On-site management: Peng Shanxiang, Lu Zhengkun, Chen Yixuan
Design area: 5000 square meters
Completion time: 2018
Project photography: IN VIEW
Lighting design: Beijing Yingzhuo Lighting Design
Lighting consultant: Fuzhou Maiguang Lighting Service Provider
Display consultant: Wuxiang Construction
Furniture brand: Camerich, Maxmarko
Equipment brand:Shanghai Kuke
Brand consultant: B+P
Logo design: To Three
Video provided by: Beijing Tongrentang Health
Project planning: Lele Designer Branding Strategy Studio
故事还在继续 ...
To Be Continue
全部评论