
Idea
◆
◆
◇
中式是我国传统文化的精髓
在火锅店面设计中的应用并不少见,
当代环境艺术设计中
将传统文化和传统素材与现代设计相结合,
在空间效果及文化考量上
得到越来越多的人的重视和喜爱
如何做好环境艺术设计中传统与现代的结合
一直是我们探索与追求的方向

Space
◆
◆
◇
在今天的材料种类和技术的丰富
使得用极至的设计打造一个顶级餐厅
已经成为不是太难的事
但如何在平民消费的基础上
让设计为大众消费服务
着实需要平实中见思想的真工夫

Space
◆
◆
◇
HI辣
在设计上更注重对平民消费的亲和性
但因其所在城市的都市文化背景
又需要对饮食的文化气氛加以强调
并不失时代感
成为这个案例的设计重点

Space
◆
◆
◇
现代中式是本案的设计主题
对于传统中式厚重严谨的设计规则和视觉元素
这里不做过多提倡
而是意在加入亲民的休闲气息



Space
◆
◆
◇
贴合传统的四川火锅主题
空间的色调氛围尽量贴近淳朴
材料的应用尽可能地贴近自然
大面积使用了从建筑中回收的老榆木
翻新后保留了其天然的肌理效果
配合青石板铺装的地面
呈现出质朴质感



Space
◆
◆
◇
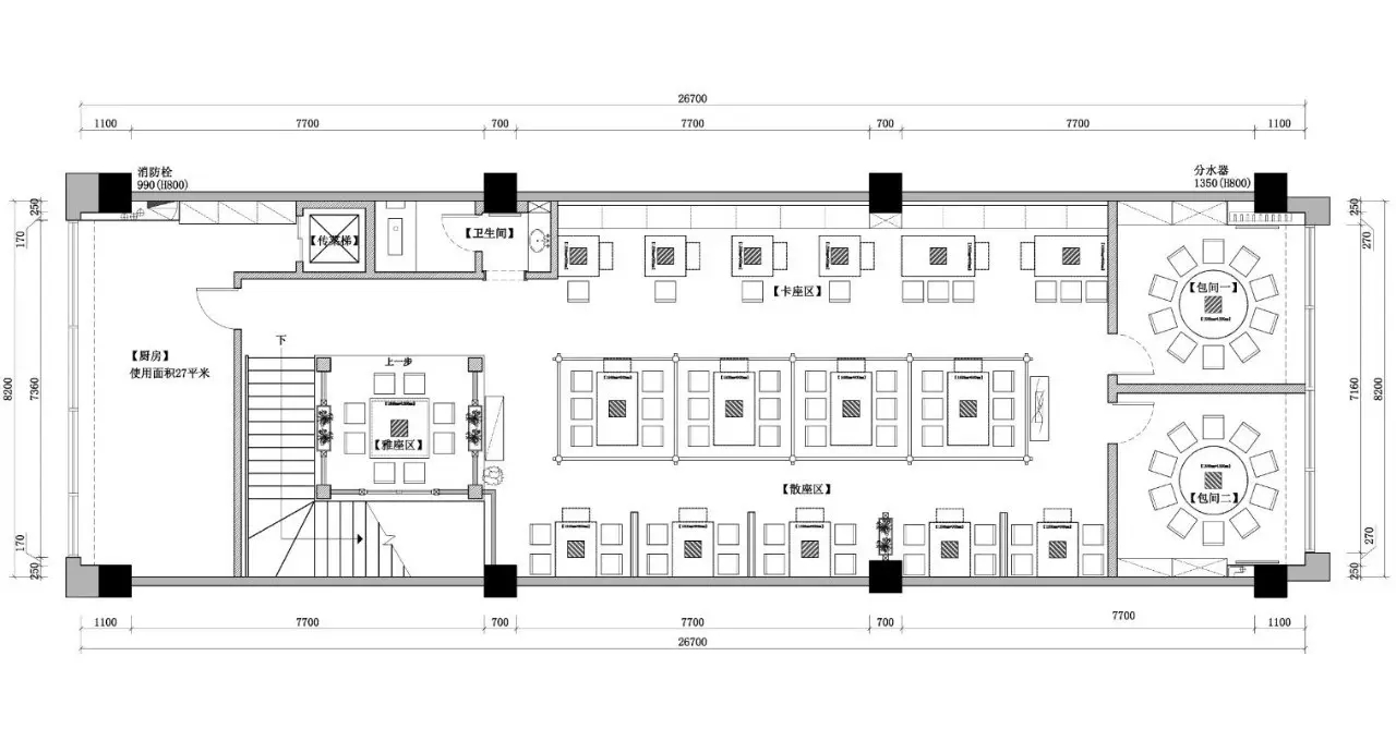
二层为开场包房、包房和散座区
开场包房区采用了简化古亭造型
透露出悠远的岁月痕迹
上到古亭的地面延伸出一处地台
形成相对独立的区域
在这“舞台”上食客们挥汗淋漓
就餐者们观赏并享受着这个过程
也体味着餐厅的饮食文化








Space
◆
◆
◇
包房入口的设计
对中国传统建筑的挑檐结构
一分为二
进行了二次解构
形成了HI字房、辣字房



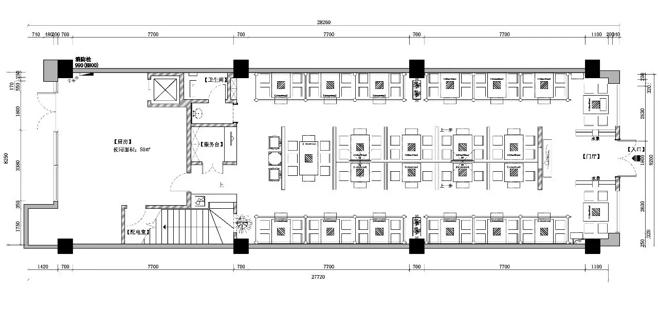
▲一层平面图

▲二层平面图
项目信息
项目名称:HI辣火锅廊坊店
项目地址:河北省.廊坊市
项目面积:470㎡
设计风格:现代中式
主要材料:青石板、老榆木、老船木、灰瓦、钢丝网垂帘、碳钢、芝麻白石材、金属波纹板、锈板
故事还在继续 ...
To Be Continue
全部评论