
▲入口 Entrance
该项目位于一座全玻璃幕墙的商业住宅建筑内,业主置入后预将其作为一个商谈与个人休闲的空间。与业主的深入交流后,希望能够赋予空间一种轻松、有个人气质的,保留空间本身的通透性,能够让光线自然的融入每个空间区域。业主是个书画、茶艺、古董的资深爱好者。
So 我们以茶作为切入点,以茶会友、品茶论文、看茶以故今往。以平和的心情促进商业合作的达成。
▼玄关门厅 Hallway


通过对尺度、比例、材质以及光线的探索,玄关处设置了一个较长的入口通道,希望空间在光、质、声的作用下使人浮动的心得以平静,在隔断上开孔通过幕墙建筑引进的光线、形成光束配合顶部辅助光源让墙面的材质散发出特有的韵味让人在此停留片刻平和心情,进而在步入主空间后能更好的相互畅谈
▼会谈沙发区 Talking sofa area

▼室内概览 Indoor overview

▼品茶区 Tea tasting area

▼空间一角 A corner of space

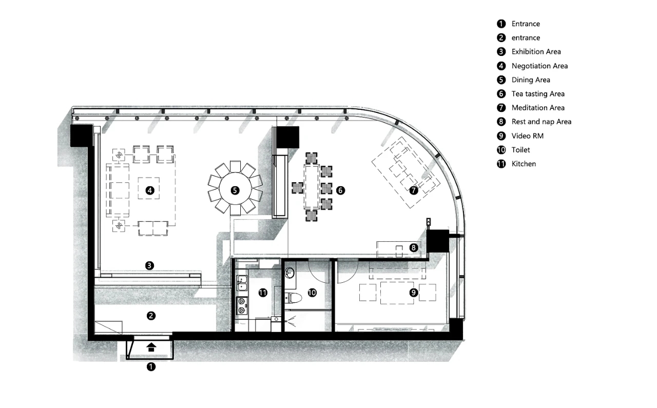
▼平面图 Floor plan


▼动态插画 Dynamic illustration


▼爆炸图 Exploded view

▼剖面图 Section view


故事还在继续 ...
To Be Continue
全部评论