
灰色是一种很有意思的颜色,混沌又清透,浑厚又锐利,灰色是一种介于黑与白之间的中间态,在不同的纯度下可以呈现出不同的感官状态。
项目位于唐山市,办公区位于大楼的18层,配套的员工餐厅位于5层。这是一幢原始核心筒层高只有2.4米且建筑层高仅有2.6米的老式写字楼,去掉原始的装饰层后显露出最大的特点:核心筒的建筑结构和灰暗低矮的电梯厅入口,整个空间传统、暗淡、低矮。如何将如此平平无奇的空间变身简约商务的办公空间,是整个改造项目的核心。改造不在于用什么设计语言去表达全新的设计理念,而在于尽可能地摒弃一切不必要的手法,将空间原本的灵气尽情显现。
▼前台细节

▼开敞办公区部分天花保留建筑原始结构

我们用全新的思路反复推敲,将开敞办公区的吊顶局部裸露喷灰,重新梳理机电和管道路由,让其疏密有致。办公空间搭配银灰色背漆玻璃、银灰色地毯、原木色木饰面、深灰边框玻璃隔断等同色系材质,与白色石材、白色石膏板吊顶组成基础色调,局部嵌入橙色和洋红色,就像在空间中引入的微妙波动,每一帧都透露出独特的视觉信息,高品质的材质和高标准的施工细节与工艺是成为了项目的一大亮点。减法,让空间变得更丰富。
▼走廊背景为灰色背漆玻璃,顶部细长的灯带增加纵深感



▼办公室细节

▼秘书处

▼会议室以银灰色背漆玻璃搭配银色地毯,玻璃上的竖条纹标识贴膜让会议室内部若隐若现,既保证隐私也保证了空间通透


▼走廊

▼小型会议室

▼洽谈间

▼共享休闲区嵌入橙色元素,让空间充满活力,打破办公的沉闷

▼细部和质感



▼健身瑜伽区

员工餐厅整体呈矩形,就餐区域中将餐桌以阵列的形式排布,协调一致、边界清晰,线形吊灯贯穿始终,延续办公区设计手法的同时,增加空间纵深感。原木色餐桌、明快跳跃的餐椅、缤纷的色彩,在有限的交往中让自由的思想互相碰撞,同时营造井然有序的用餐空间。


▼设计细部

功能分析图

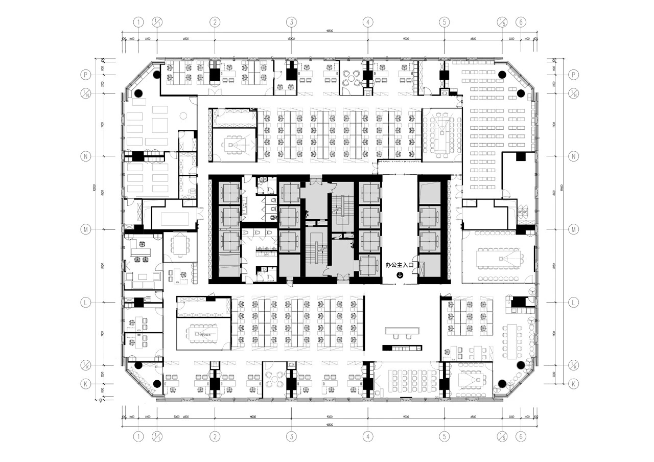
办公区平面图

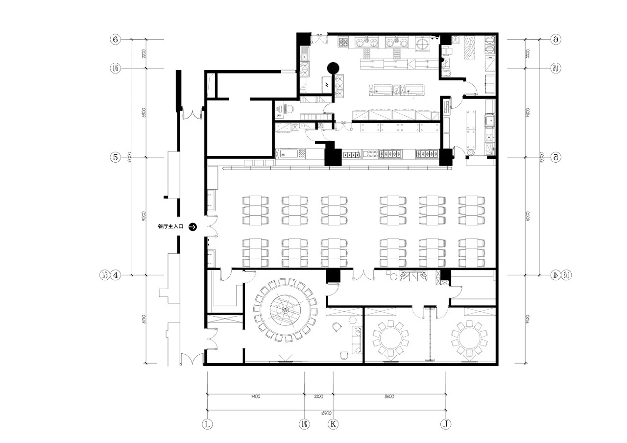
餐厅平面图

项目信息
项目名称:灰盒子办公空间
设计团队:申江海、张春颖、覃枢、闫瑞琪、马炜煊
软装设计:余小雨 张志婷
项目类型:室内设计与改造
建筑面积:约2000㎡
设计时间:2019年
建造时间:2019年10月-2020年2月
项目摄影:小枝@ICYWORKS,五透
故事还在继续 ...
To Be Continue
全部评论