
热蒲茶饮店,源自2010 佛山本土10年历史的资深茶饮玩家10年情怀位于佛山市城北市场批发材料的旧城区,改为一个工作室与茶饮店。
Heat pro Tea Beverage Shop, which was originally opened in 2010, is a seasoned tea shop located in Foshan, with 10 years of experiences in creating tea beverages.Based in Foshan City North Wholesale Market’s Old Town District, we have renovated the store and now its not only just a beverage shop, but also serves as a workshop.
▽ 盒子

一系列的白色体块将原本凌乱的场地净化,创造出引人驻足的宁静空间
A series of white bulks helped reorganize the originally cluttered and messy room, creating a quiet space where people would be captivated to stay awhile.
▽ 从建筑外部改造

▽ 线构成外立面

把空间利用充分、户外与室内置换联系,空间通透、室内没有任何装饰墙。
The goal is to utilize the space most effectively.The indoor and outdoor spaces are linked together, so that the building feels more spacious.There are no decorative walls in the interior of the building.


通过茶饮店文化与联合办公相结合的模式,将一个现代概念的社交模式融入到寻常邻里中。一个被遗忘的城市边角通过设计成为社交热点,这脱胎换骨的转变诠释了建筑的介入可以如何为城市注入新活力,激活社区再发展。
Through the connection of the Tea Beverages Shop culture and Joint Office, the modern notion of social interactions is implemented into the neighborhood.The forgotten corner of the city is now transformed into the next popular hangout spot. This enormous transformation flawlessly annotates how the renovation of a building could help infuse more energy into the city, and encourage the community to redevelop.

现代城市繁忙的生活节奏,让人忘记了沐浴阳光的舒适,工作与闲暇恰似成为了彼此不相容的关系。
The busy lifestyle in a modern city, caused us to gradually forget the comfort of bathing in sunlight, and work seems to have become so conflicting with our leisure time that they could never exist simultaneously.










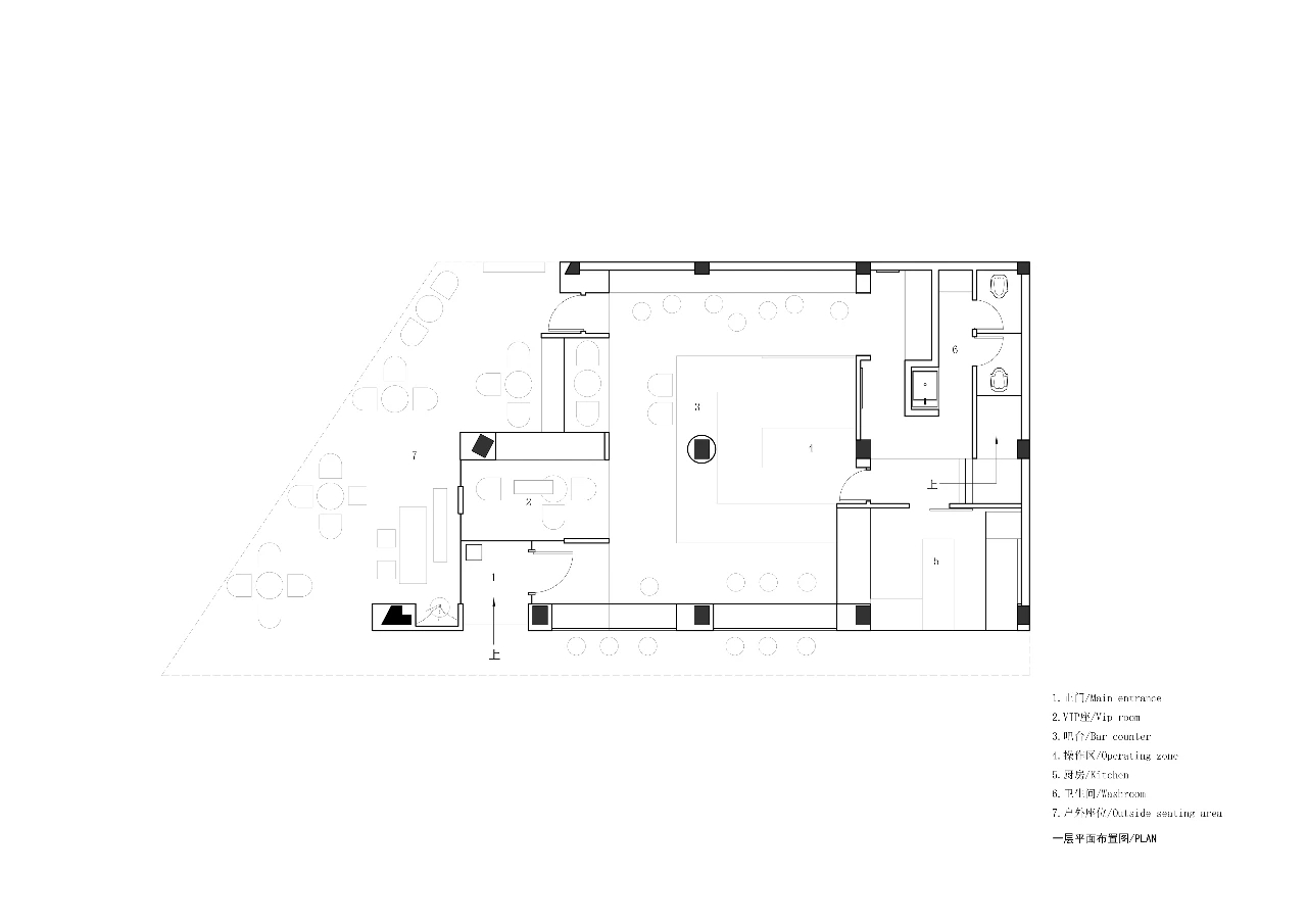
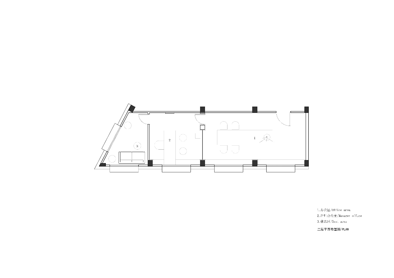
▽ 平面图/PLAN


▽ 改造前


项目信息
项目名称:热蒲品牌Heat pro形象总部——光与空间的邂逅
Project Name: Heat pro Brand Image Headquarter ---Light and Space Intertwined
总设计师:练彬彬
Executive Designer: Lian Bin Bin
项目地点:广东佛山
Project Location: Guang Dong Province, Foshan City
建筑面积:150平方米
Construction Size: 150 Square Meter
主要材料:灰色地漆、TASSANI涂料、木饰面、不锈钢
Materials: Gray floor paint, Paint, Wooden Finishes, Stainless Steel
设计时间:2019年5月
Design Date: May 2019
竣工时间:2019年10月
Finish Date: October 2019
灯光设计:麦立峰
Lighting Designer: Maarten Mai
摄影师:欧阳云
Photographer: Au Ieong Yun
故事还在继续 ...
To Be Continue
全部评论