
▼项目顶视图

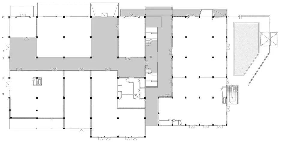
二期项目主要范围是在整个厂区的西面和北面,厂房位于相对靠里的位置,根据厂区的楼栋编号,二期的主要范围为2、 3、 4号楼及6号楼组团,建筑面积约1万平方米。项目的每一栋建筑都有着自身极其鲜明的特点,设计过程中我们尊重旧建筑的“个性”,将其保留下来,分别围绕它们做出独特的设计,以新瓶装“原浆”,重新赋予旧建筑新的生命力。
场地解析 | Site Analysis

6号楼是园区中最大也是最复杂的建筑组团。每栋建筑内大多是大厂房空间,结构整齐划一。楼顶加建了一个长方形体量,仿佛悬浮在空中一般。6号楼的拼贴形态来源于当时柴油机厂为满足使用需求而逐次进行的加建,拼贴成为在改造中的一个常态。

▼立面图

▼剖透视图

▼联系多个标高的”旧楼梯博物馆”

柴油机厂2、3号楼的旧建筑因为每层空间功能都不尽相同,所以两栋楼各层层高也各不相同。为了实现两栋楼之间不同高度楼层的相互连接,在两栋楼之间的天井空间内,原设计师设计了一部形态复杂的楼梯。改造中这个空间作为重点保留下来,并加入旧时厂区记忆的元素,打造了一个“楼梯博物馆”。

▼项目入口

▼ 中庭中的红色楼梯系统

同时,为了适合未来的商业使用,我们研究了园区各楼栋之间的高差关系,并通过廊道,楼梯,台阶等方式,将更多的楼栋连接起来,创造出与旧的连接空间一脉相承的“新连接”空间。未来人们可以沿着这套新的连接体系,漫游于整个园区之中。
▼廊道和楼梯连接不同空间



▼集市广场

柴油机厂改造后需要转换成办公和商业空间,而旧建筑的进深过大,采光也无法适应新的需求。为解决进深和采光的问题,我们在建筑中间留出交通空间,成为新的市内街道。我们希望这个空间更接近于一个市集或者室外街道“灰空间”的形态。因此,为了更好地营造出一个接近于户外街道的氛围,我们使用了一些户外材料,如火烧面石材,户外防腐木,并在街道的两侧使用了一些户外的店招和雨棚,以达到室内“室外化”的效果。
▼礼堂入口

柴油机厂的工人礼堂是改造中最大的内部空间,我们将部分过梁与梁之间的墙面打掉并替换成玻璃砖,并且拆除了部分墙面,提升整个室内的采光,窗的形式上我们沿用了建筑原本采用的铁艺窗和玻璃百叶窗。我们将建筑外立面的水刷石外墙保留下来并做了修补。对于整个建筑的外立面,我们基本上以修复和功能性的改造为主。
▼宽敞的礼堂中置入玻璃盒子,旋转楼梯连接夹层空间



礼堂内大空间宽敞,为了实现旧礼堂从原本服务于集会需求的大空间到适应商业需求的小空间的尺度转换,我们在通高空间处置入一个玻璃砖围合的盒子空间,同时增加旋转楼梯,增加盒子上方的夹层平台,将二层和三层联系起来。通过这样的设计,我们新置入玻璃砖盒子四周创造出一条环形的流线,而盒子空间也自然而然地成为了整个空间的核心和枢纽,保留了礼堂空间的中心性和精神性。
▼模糊室内外界限的灰空间

▼细节

▼首层园林

在柴油机厂的旧食堂中,首层和顶层各有一处传统园林。园林是旧时代的最具特色的存留,是柴油机厂旧时生活场景的见证,我们希望通过设计改造,将它最重要的特征保留下来的同时使其适应新时代的使用,创造出一座当代的“新园林”。

设计过程中我们选择将园林中的假山,水池,花窗,凉亭等要素的基本形态保留下来,通过刷白的方式抹去它们作为物质的属性,强调其符号般的象征性意义。同时在园林中加入了炫彩玻璃和不锈钢等新材料,用原有的百叶、石头、窗套等形式表达出来。通过被刷白而固化下来的具体符号和新的抽象化表达并列在一起,相互映照,明确地表达出了对历史的尊重和对新时代的向往.


▼拼贴印象

柴油机厂的4号楼原建筑空间难以满足未来的使用需求,所以我们决定采取整体拆除重建的改造方式,唯一保存的是一面连续两跨的两重坡屋顶山墙面。我们希望将此作为4号楼设计的一个形式母题,并且以此为基础进行设计,我们将这种在旧的形式中创造一个全新空间的改造方法称为“新造物”。

我们将建筑立面后退,再将建筑顶部拔高,形成了两重高矮不一的立面。为了与原山墙面保持一致,我们根据平面和功能的需求进行了局部调整,最终形成一片高低起伏的“山丘”。在工业厂房连绵起伏的坡屋面上漫步的体验给整个屋面步道的体验增加了高度上的丰富变化,也是一个形式符号的再创作。

我们并不希望去改变新旧拼贴的状态,而是继续这种功能化改造的历史延续。
项目信息
项目名称:顺德柴油机厂
项目地址:佛山 中国
项目时间:2020
项目面积:1.5万㎡
建筑材料:金属 不锈钢 混凝土 玻璃 玻璃砖
故事还在继续 ...
To Be Continue
全部评论