
街景情景化的展示在空间的一角,
行业的特点和属性从布局上就可以有一定的体现。
Street scene is displayed in a corner of the space.
Industry characteristics and attributes from the layout can have a certain embodiment.


长长的前台容纳了收银、展柜、交流等功能,
这样的吧台其实更是一个岛式的互交平台。
The long front desk accommodates the functions of cashier, exhibition cabinet, communication, etc.
Such a bar is actually an island of mutual exchange platform.

设计部和打印部作为产出和输出是公司的核心,
在紧密配合的布局上让工作效率有很大的改良。
Design department and printing department are the core of the company as output and output.
In the closely coordinated layout on the work efficiency has a great improvement.

用家具和功能来作为空间的划分手法和工具,
这样让空间更具互交和舒畅的氛围感。
Using furniture and function as a means and tool to divide space,
This makes the space more interactive and comfortable atmosphere.



客户的沟通需要一个舒适的环境,
功能上满足正常的接待和超行业的体验感。
Customer communication needs a comfortable environment,
Function to meet the normal reception and super industry experience.

一层和二层通过一部楼梯简易而快捷的链接。
The first and second floors are linked easily and quickly by a staircase.

左边是经理办公室,
大部分的公司事宜都是在这样一个阳光充足落地窗办公室处理。
右边是财务室,
业务需要的配有客户休息区。
On the left is the manager's office.
Most corporate affairs are handled in this sunny, floor-to-ceiling office.
On the right is the accounting room.
Business needs with customer rest area.


给点颜色就灿烂活动室,
是大家平时闲暇时的活动或者聚会空间。
Give some color on brilliant activity room,
It is the activity that everybody is free at ordinary times or party space.

靠北窗的两个休息卡座像两个画框般的盒子,
颜色使人精神兴奋。
The two rest booths by the north window are like two picture frames.
Color makes people excited.


光,是空间的精灵。
从大大的落地窗进来为空间加彩添色。
Light is the spirit of space.
Come in from greatly French window add colour for the space.
南向的大落地窗明亮宽敞,
公司内部的会议和讨论都在这个具有好的氛围了进行。
The large south-facing French Windows are bright and spacious,
The company's internal meetings and discussions are held in a good atmosphere.

二楼用了四分之一的空间来作为董事长的会客厅以及办公室,
会客厅会客区和书画区由两部分组成。
红木家具是主人用了多年带有感情的老物品了。
所以选了一个宽敞的地方摆放和陈列。
The second floor USES a quarter of the space as the chairman's living room and office.
The reception room and painting area are composed of two parts.
Annatto furniture is host used the old article that contains affection for many years.
So chose a capacious place to put and display.
正对着窗子的是一个由一大扇推拉门自由隔开的水吧和休息空间。
左边是水吧,
右边是一个比较隐私的小床空间,
主人的习惯就是不管打雷下雨还是艳阳高照,
都少不了每天的中午几个小时的午休。
Directly facing the window is a water bar and rest space freely separated by a large sliding door.
Water on the left,
On the right is a private bed space,
It was the master's custom, whether it rained or thundered,
A few hours of lunch every day.


有个里间是主人的办公空间,
两个博古架摆满了心爱的玩意。
在现代干净整洁的空间里欣赏老物件也是一种视觉体验。
There is an inner space for the owner's office and living space.
Two antique shelves filled with beloved things.
Appreciating old objects in a modern, clean and tidy space is also a visual experience.

办公室和隔间的会客厅一门之隔,
轻松的推拉门将两个空间自由有度的隔开和连通。
Between the office and the cubicle parlor,
Easy sliding door will be two Spaces free and degree of separation and connection.

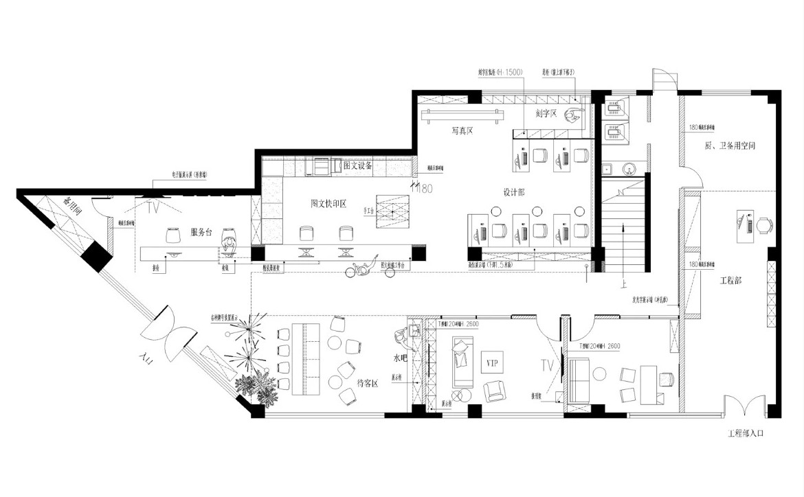
一层平面图
Ground floor plan

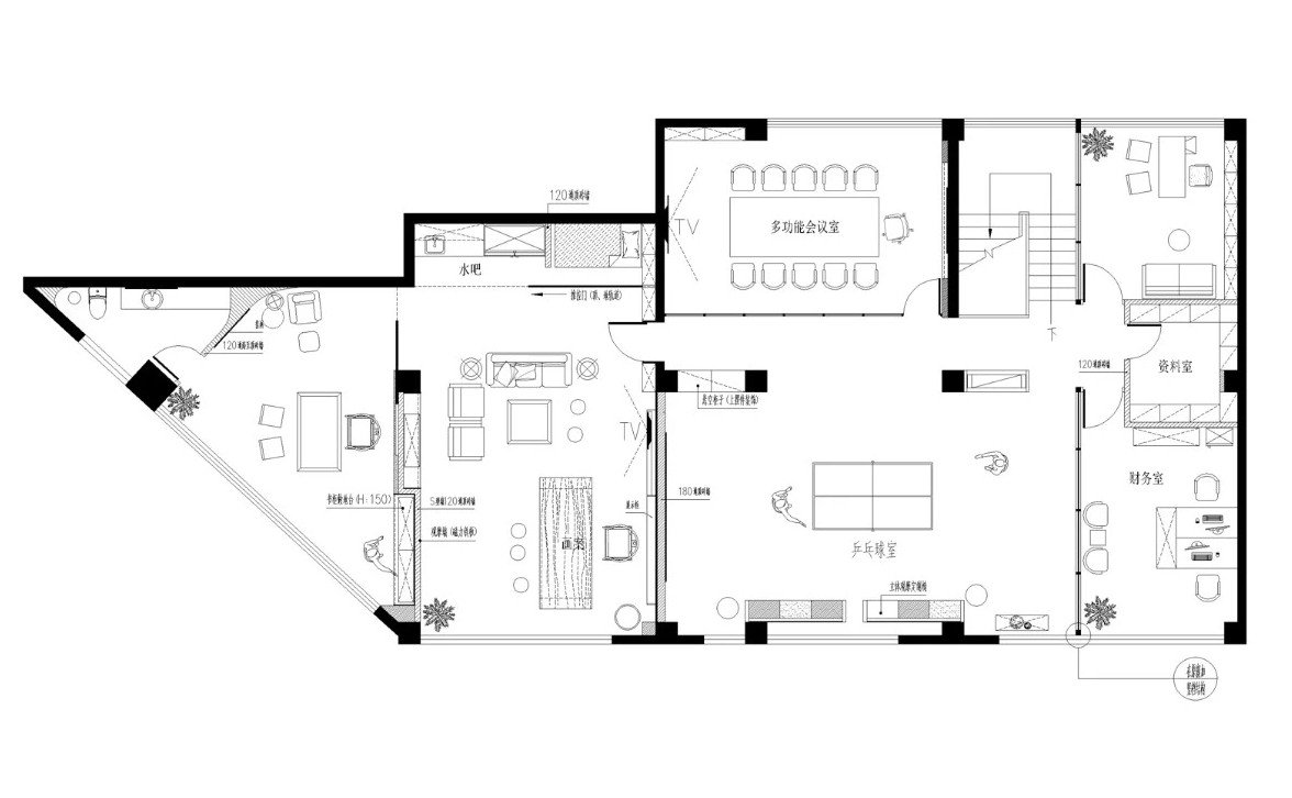
二层平面图
Floor plan

工地现场掠影部分



基础决定颜值,
与其说颜值担当,
还不如说基础担当。
Foundation determines the level of appearance,
Not so much physical level of commitment,
Rather, it is basic responsibility.








语言是思想的执行保障,
表达的口头语言、
镜头的焦点语言、
交流的方式语言等等,
怎么想就怎么表达是表里一体的协调关键;
执行是语言的落实基本,
自我的执行、
听从的执行、
服从的执行、
探讨的执行等等,
怎么说就怎么执行是方向和目标的落地原则。
Language is the executive safeguard of thought.
The spoken language of expression,
Lens focus language,
Ways of communicating language and so forth,
How to express what you think is the key to harmony between appearance and appearance;
Execution is the basic implementation of language.
Self-execution,
Implementation of compliance,
Obedience to execution,
Discuss the implementation and so on,
Implementation is the principle of orientation and target.
全部评论