 
         
        


希望通过有效的设计,在短周期内完成新办公室的工程,并控制在理想的项目预算里。新环境要满足开放的办公需求,同时又要让有商业机密属性的部门相对独立和私密,并紧密靠拢董事办公区,完成项目接待会谈、核算等一系列工作,整个办公室的形象要朴实、简洁又不失设计感,并能诠释“建设”的属性。



作为建设公司的办公室,做出能契合企业行业特性和传达公司文化的设计,是项目伊始我们的思考重点,同时设计和施工周期一共只有很紧迫的两个月。基本我们就舍弃了需要大量定做或者特殊工艺的技术方式,只能从现状去找设计思路,并用现场更能轻松实现的方式来达成整个项目的周期要求(两个月的时间,其实设计要占用的时间更多)。


我们设想整个办公空间现状是建设用地,功能依附和利用原建筑框架,用需求生长出空间,而搭建空间的结构和节点,自然生成装饰面。强调各功能空间的构成逻辑,保留有机和必要的关系,舍弃一切不必要的装饰和形式感,减少定制周期,却能塑造一个“骨肉”粘连生长的内空间。



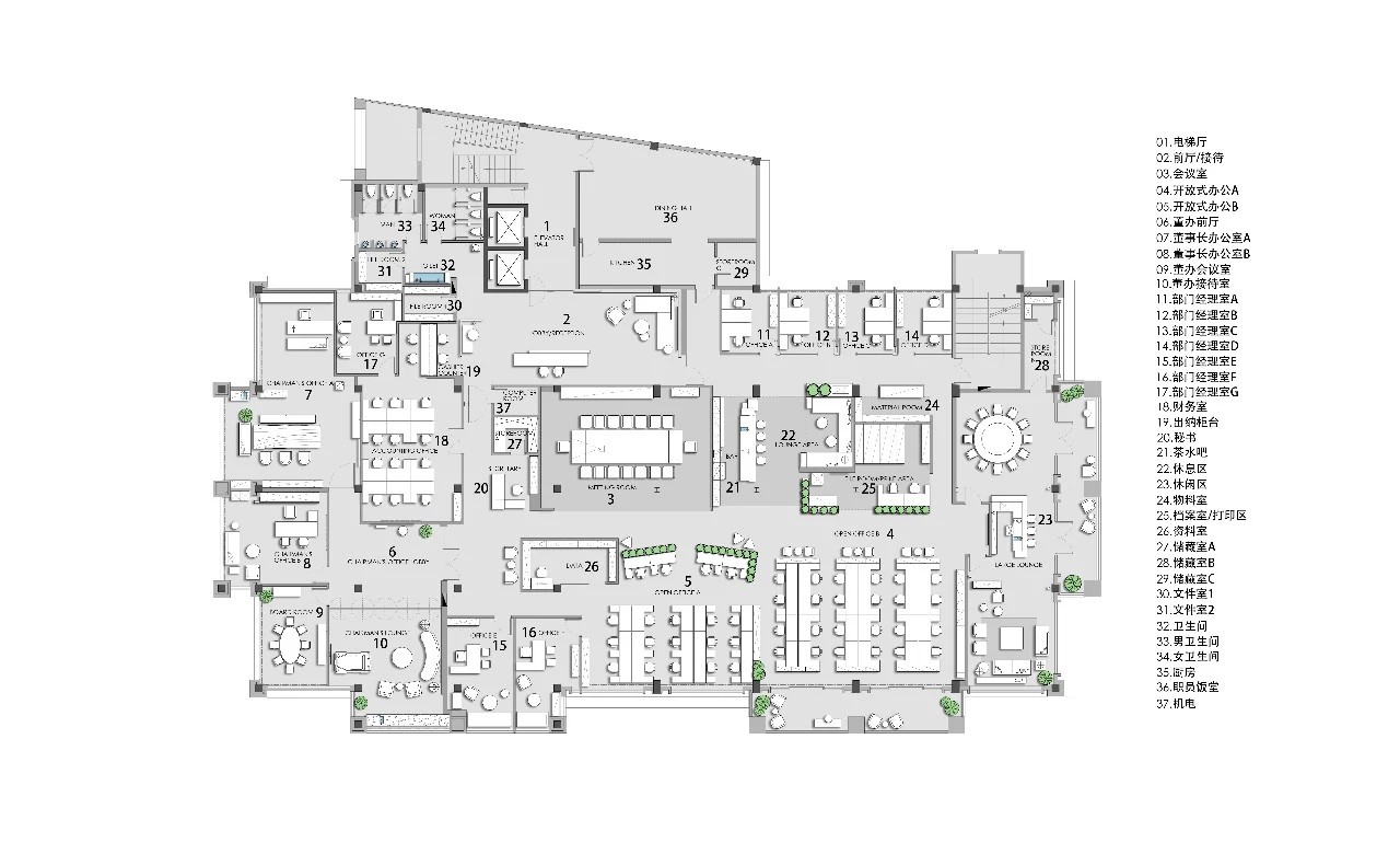
各功能组织设定为一个个分离或关联的盒子,对应—对外、接待、开放办公、商业机密区域、董事区域(独立通道,直接对外高度私密却能介入内部办公界面的)动线关系,高低错落分布。整个办公空间立体成一个城区建设场景。私密或开放,接待和沟通,收纳、陈列,在平面中,被生长的墙或家具界定出来。


大会议室承接前厅,成为动线辐射的圆心,并以此为源点,横纵分划出内部私密和对外开放的两条闭环的大回路,让空间产生循环,丰富节奏感。各功能空间“房子”化的“建设”出来,所有盒子相互关系产生的连接区域,都是互相穿插渗透,用透明材料或功能属性的交织,形成开放包容的空间感。



而原有现状的混凝土柱和钢柱不加掩饰的处理,用建设本身的行业手段和用材来呈现空间的装饰表皮和细节。钢、水泥、预制模板、木梁柱等用榫卯和叠搭的方式来演绎,成为“建设”的过程和设计实施的技术手段。“完成”和“未完成”的状态并立,让设计动机和立意,立体丰满起来,而因此生成的朴素的体块关系和构成节点,就无需强加许多忸怩的装饰了。



企业的形象色—蓝,用不同的灰度赋予个别盒子,或分配给家具和画,主题画和灯具等的选择,都有意识的基于企业标志的构成语言。用这种拆散再分配的方式,进一步强化企业形象识别度,形成有机的逻辑线索。导视系统则为朴实的空间增添时代调性的视觉表现力。整个项目的用材和工艺技术用极普通常规的选择,保证了项目的资金控制和周期下的可执行性。



这个项目,我们都在践行自己一直以来对于设计的思考,当社会都在传播丰富和品质的时候,我们的方向该何去何从,“设计感”本身应该通过什么样的形式体现在项目里,并形成设计师自己的主张?快速的资讯图片化让越来越多的审美和情趣,倾向表皮张力和所谓创意闪现,还有软装浓缩的一隅。空间关系和尺度比例,构建设计内部逻辑的东西越来越难以读取。快速的信息让观众和设计者都失去深挖掘的耐心。当“品质”寄托于物质铺陈和高技的配合时,设计会局限在特定的阶层。我们幻想着从事全民的,可以低技执行的设计,当设计能在各个阶层普及并被需要时,设计的多元才真正具有意义。解决关系和梳理空间逻辑,是我们对于设计的初衷和切入点,关系是事物的骨架,而创意或表面张力是衣服饰物,可以在整个使用周期不断的朝向更完善,而持续的生长和修正。生长需要让设计保有余地,未完成的状态表现,让人和空间的持续互动激发的再“生长”产生可能。



▼平面图



项目信息
项目名称:生長的盒子--宏昌建设办公室
设计范围:建筑改造、室内设计、陈设
项目地点:广州萝岗
项目面积:1300㎡
主案设计师:刘国海
参与设计师:黄锦庄、张碧涛、谌海洲
陈设设计师:张碧涛
施工单位:广东宏昌建设工程有限公司
故事还在继续 ...
To Be Continue
全部评论