
一系列的白色体块将原本凌乱的场地净化,创造出引人驻足的宁静空间
A series of white bulks helped reorganize the originally cluttered and messy room, creating a quiet space where people would be captivated to stay awhile.
▼线构成外立面

把空间利用充分、户外与室内置换联系,空间通透、室内没有任何装饰墙。
The goal is to utilize the space most effectively.The indoor and outdoor spaces are linked together, so that the building feels more spacious.There are no decorative walls in the interior of the building.


通过茶饮店文化与联合办公相结合的模式,将一个现代概念的社交模式融入到寻常邻里中。一个被遗忘的城市边角通过设计成为社交热点,这脱胎换骨的转变诠释了建筑的介入可以如何为城市注入新活力,激活社区再发展。
Through the connection of the Tea Beverages Shop culture and Joint Office, the modern notion of social interactions is implemented into the neighborhood.The forgotten corner of the city is now transformed into the next popular hangout spot. This enormous transformation flawlessly annotates how the renovation of a building could help infuse more energy into the city, and encourage the community to redevelop.

现代城市繁忙的生活节奏,让人忘记了沐浴阳光的舒适,工作与闲暇恰似成为了彼此不相容的关系。
The busy lifestyle in a modern city, caused us to gradually forget the comfort of bathing in sunlight, and work seems to have become so conflicting with our leisure time that they could never exist simultaneously.




该如何设计笑容,如何设计可以享受的光阴,如何设计那一份对梦想的热爱?喧闹的城市中,是否还有一片恬静又让人向往的温暖?当倾注内心的向往,或许那一杯茶饮就是该有的温度;如果只是为了形式而设计,那一块木头,一砖一瓦都会失去创造的意义,去创造感动生活的那一刻美好,才是设计的源泉;
The thing that used to be miraculous: taste, warmth, light, dreams and feelings, seems to be gradually fainting. Yet, these are what make our life spectacular.How can we bring back laughter? How do we design a space where we can enjoy our time, and rekindle the passion to chase our dream? Within the noisy and racket city, is there still a place of peace and calm with warmth which we yearn for?Perhaps what we long for beneath our heart, exists within the cup of tea, as the warmth which it is supposed to have.If the design is not done with any effort, the wood, the bricks, the tiles will all be for naught. Everything serves their own purpose, and that is to recreate the moment which touches us.




设计与创作一所茶饮店,并不需要表达华丽的装饰、令人惊叹甚至不可捉摸的概念,仅仅是为了让生活的本真更加真实更加动人;光是描绘生活的笔,让自然光做主角,生活每时每刻都会有不一样的情绪。让一杯茶饮更诱人,让一场雨更浪漫,让黄昏变成一场惊喜,让风带来春夏秋冬,让关系变得更亲密,让每天日常变得非比寻常。
Designing and creating a Tea Beverage shop doesn’t require any luxurious decorations nor any idea that is astounding yet hard to interpret, as the truth is life’s more stunning with its simplicity.Light is the perfect tool to portray life, all we have to do is to let the natural light work its magic, and it will draw down every different emotion that life has to offer.When you focus on the insignificant things, you will always be amazed by how much life could provide.Makes a cup of tea more charming, makes a rainfall more romantic, turns the dusk into a surprise, let the wind brings along the seasons, brings people together, makes every day more distinct.
让黄昏映入眼帘,让风擦肩而过,把设计专注于最微小的事,生活就会有惊喜发生;当所有的声音静止,心底的Melody就会玩转流动,而生活,只需要让它随之起舞。
Let the dusk manifest before us, let the wind passes by us.When all the sound stops, the melody beneath our heart begins to play. As for life, it only has to dance to the rhythm.


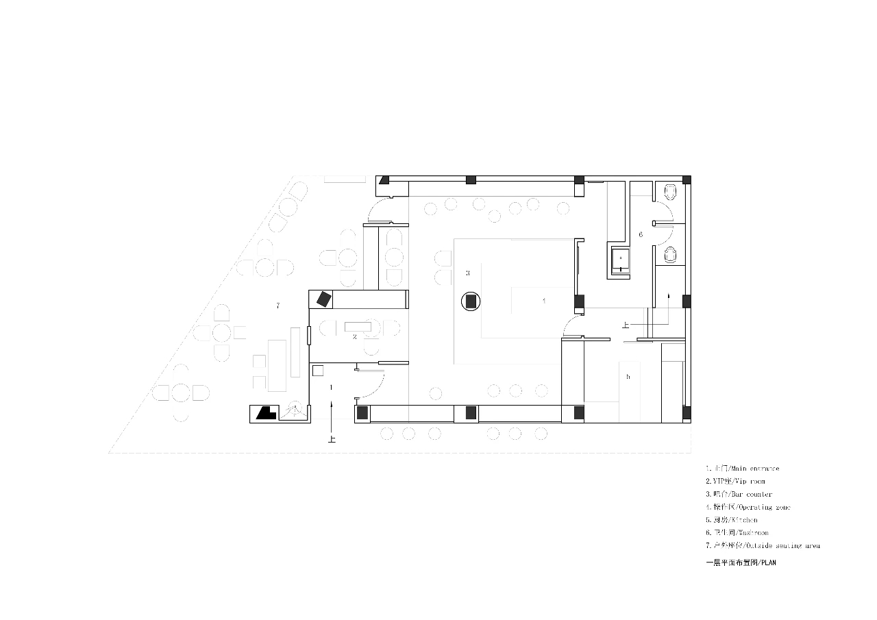
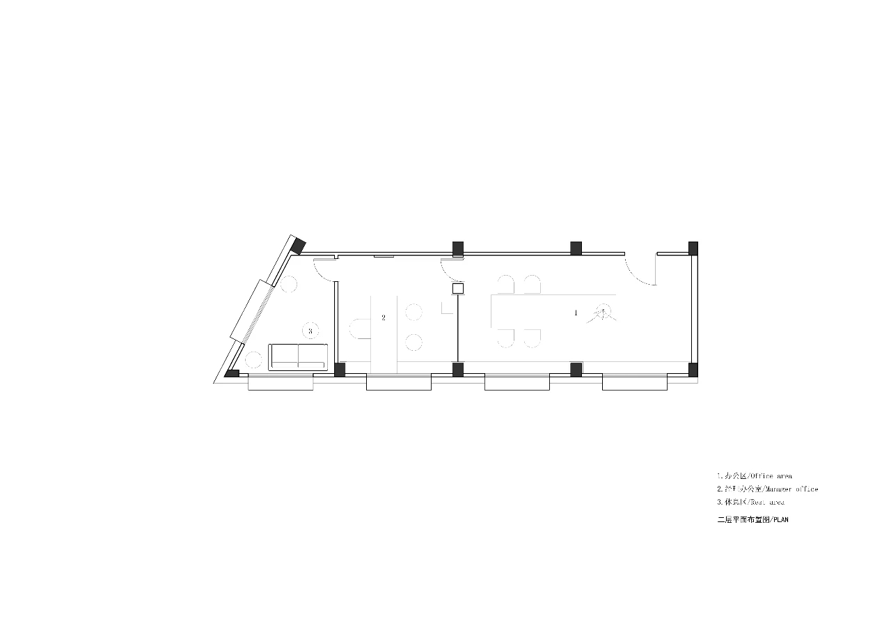
▼平面图/PLAN


▼改造前


项目信息
Zhong
全部评论