
项目位于潍坊市惠通巷,原是一个厂房被改造成了一间洗车房,建筑结构为混泥土柱+桁架结构,建筑空间长24.6米,宽15.3米。东、南和北面为砖墙,西面为彩钢板隔墙,屋顶为彩钢板材料。

▲建筑原状
让孩子们融入好的设计环境中,陪伴孩子们快乐的成长,营造出他们的梦幻世界,是我们希望赋予NUCCO亲子餐厅的。设计中采用白色、灰色和金色为主色,同时搭配其他低饱和度的色彩,让孩子们更能久留而不会厌倦。

空间层高为5.8m,增加一层的同时做了一个中庭,增加室内的自然采光

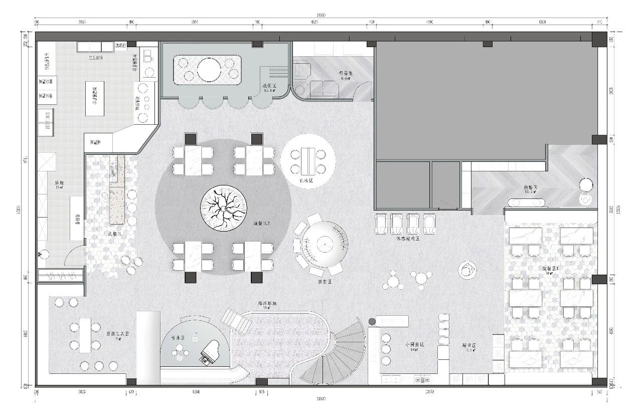
▲一层平面图

▲NUCCO建筑外景

入口的吉祥物熊仔在迎接进来的小朋友们,还有一台互动触屏式游戏机及一排跑车等着孩子们从这里出发到整个空间里去玩耍。




橱窗边有就餐区,一边沐浴着阳光,一边看孩子尽情的玩耍,和闺蜜聊着天或是喝杯咖啡或是看本书,是每个妈妈想要做的事吧。

金色的旋转楼梯提醒小朋友楼上还有更好玩的在等待的他们,需要自己去探索。


迷你厨房让小朋友更具动手能力,亲手为爸爸妈妈做一道丰盛的午餐吧!


就餐区设置在中庭,便于看护四周玩耍的孩子,小朋友找爸爸妈妈也很方便。













位于二层的Party room为爸爸妈妈给小朋友过生日聚会提供了好去处。




整个空间没有使用太多的颜色,更多的是营造一种探索的精神,希望来的每一个家庭一同去探索一同去创造,给他们更多的相处的时刻,孩子们聚焦于空间,家长们聚焦于孩子。设计一个更加纯粹的空间,孩子们尽情的完善,家长乐在其中,留下一个开心的记忆。
项目信息
项目名称:NUCCO亲子餐厅
项目地点:中国 潍坊
项目面积:620㎡
主持设计:张浩哲
设计团队:金韬 季露 潘奕 高雪
设计时间:2019.02
竣工时间:2019.05
Zhong
全部评论