
这个新工作室是Davidov建筑事务所专门设计的一个工作空间,建筑师希望通过设计一系列空间,传递事务所的建筑设计手法和在工作中不断演化的空间策略。
室内划分为两个核心空间和一个作为服务及后备用途的小空间。工作室在南北向延伸并利用自然采光,南侧有大面积的窗户提供景观视角。这种布局方式形成了两个线性空间:会议室和工作空间。

工作室入口
会议室
会议室内部有大(6-8人)、中(2-4人)、小(1-2人)三张桌子。每张桌子供各种类型的会议使用、以不同的方式为正式或休闲的活动、讨论、工作服务。

▲会议室

▲6-8人会议使用的长桌子

▲2-4人使用的中号桌子和1-2人使用的小桌子

自然采光的空间
工作区域
作为一个扩增缓慢的年轻公司,建筑师的重点是创造一个既能满足后续增长需求又能够保持紧凑性的工作室环境。

▲会议室到工作区域入口
因此,公共办公桌沿着中线布置,长长的桌面被划分为工作区和谈话区,供非正式性的谈话或内部交流使用。

▲工作空间

▲长桌子划分为工作区和交谈区
室内是一个自由流通和出人意料的空间。两个主空间之间的流线为室内增添了趣味和层级,形成收缩、扩张、封闭、开放的空间。

▲小型工作区
工作室内提供团队或独立工作的多样环境,例如公共办公桌的不同区域、抬高的吧台、供不同规模会议使用的不同大小的会议桌。
细木工按照适宜居住的模式操作,辅助以天然石材和室内阔叶植物。工作室内也使用了常见的家具、艺术品、雕塑,加强布局和尺度设计。

▲作为服务和后备用途的小空间
工作室的设计充满了对工作交流的多样性和多重选择性的创新。工作和交流功能以多样的方式展开,空间以独特的方式适应和执行每一项任务。
会议可以是两个人在窗边进行,也可以是一群人围绕着一张大桌子进行,同样的,工作也可以在不同的空间,环境和氛围中进行,这种方式是该规模工作室的重要特征。

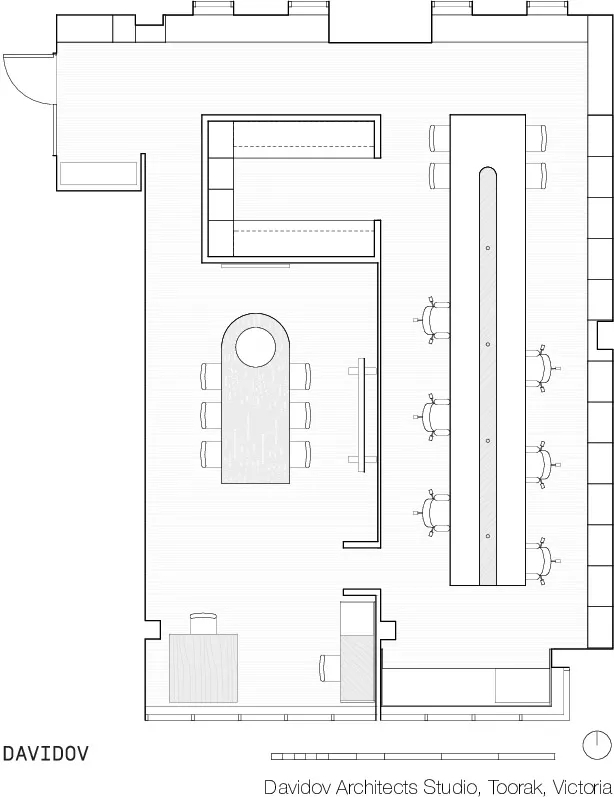
▲平面图
Zhong
全部评论