如果将中式设计,设想为一幅泼墨山水画,那么这幅山水画之中,最为点睛之处,可能便是留白之境。本案设计位于河南。设计师在设计伊始,便追求以现代简约和东方美学的相融相碰,诠释出城市繁华外的风雅之居。

▲玄关设计
信步玄关之中,可见简约清朗之风,借鉴留白之境,并辅以山水画的缥缈俊逸之态,在东方禅意之中,烘托出素雅的入户体验,这才是足以让人惊叹的玄关设计。

▲客厅设计
客厅设计,以现代之形塑东方写意,低调优雅之中,除却了太多浮夸,纯粹的色彩搭配客厅光影,让客厅呈现出婉约别致的格调。

整体客厅设计,以山川般的绵延幽静,来透露文仕的东方清雅。恰如片片飘落的银杏叶背景墙,搭配盆栽、古玩,自成一处秀丽端景。


▲过道设计
过道设计,以一面大理石色的背景墙拉开对称格局,花几对称,而案几的不规则感,则中和了过分的对称。

▲餐厅设计
由过道步入餐厅之中,可见一派大气之态。现代和中式相结合的餐厅风格,不仅限于红酒柜的加入,更有细节上的中式配饰衬托。

请景入室的设计手法,被巧妙地应用在餐厅设计之中,大有一番“形魂兼得,风情天成”之态。


十分东方韵味,其中大概水墨之雅占足了八分。氤氲的水墨色是餐厅里的点睛之笔。迎客松,半遮半掩的屏风,铸就了餐厅里的怡然和超凡。

▲书房设计
古人于墨香之中陶醉,于书房之中阅万千书卷。书房似乎充值金,皆是文人墨客们的儒雅情怀。所以书房设计,在于回归本真,器具上的面面俱到,风格上的水墨之态,便是本案书房的精髓所在,水墨书香之中,畅谈人生大趣。

▲主卧设计
步入主卧,可见沉稳高贵之风,颇具质感的深灰、米白以及墨青色,成为了客厅的主色调。在层次丰富的清雅格调之中,勾勒出一处意境深远的卧室空间,如诗“草秀故春色,梅艳昔年妆”一般。

案几之上,山水摆件轻盈优雅,花艺银叶摇曳,在细节上的处理,显得气质盈盈。

▲独卫设计

▲老人房设计
占领了老人房的色调是墨绿和金黄,墨色深沉,金黄高贵,这样艳丽而不芜杂的背景墙,让老人房透露着欢愉之感。素雅和清寂的格调之中,更适合老人居住。


▲女儿房设计
每个少女的梦想,大概都与粉红色有关。所以在女儿房设计中,更像是对少女梦想的描述。钢琴,书籍,木马,一切少女心十足的配饰,被一一铺设开来。


拾级而下,移步换境,豁然开朗。楼梯小景的设计采用了枯山水的意境,以砂为水,以石为山,以景生禅,以小见大,静中生趣。




▲一层平面图

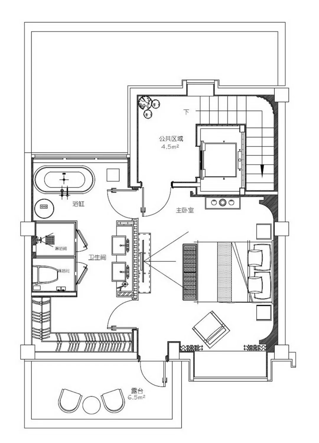
▲二层平面图

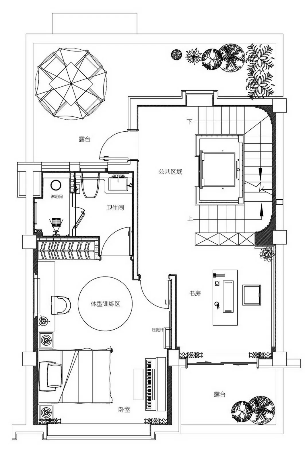
▲三层平面图
Zhong
全部评论