项目坐落于福州三迪联邦中心,设计师借工业、科技的元素,融入影音、灯具等产品,最大限度地使用自然光,打造一个沉浸式体验展厅。我们希望当消费者置身其中,能激发对理想生活的兴奋感,对智能生活的渴望。
▼入口

绕过一个转角,视野变得豁然开朗,整个人徜徉于自然光的拂煦之中。落地玻璃窗打破室内的封闭感和静止感,强调向外扩散,同时以光为介质使内外达到完全的连续。
铝制板打造的椅子显现耐人寻味的工业科技感,加以铆钉为点缀,炫酷指数飙升。一旁随意放置的布艺抱枕与铝板结合,刚柔并济,又是另一番味道。
▼ 展厅一隅

弧形玻璃上贴有渐变的装饰性网纹,朦朦胧胧,虚实相生,让人产生言有尽而意无穷之感。过道引申出一个引人注目的小吧台,安安静静地沉溺于光影之中,绻缱旖旎,暂且覆起城市的喧闹,无论与客洽谈,或是小酌微醺,皆是写意。
白色层架隔断串联起两个独立的空间,彼此之间穿插、渗透,隔而不绝,空间变得无以名状,界限模糊。
▼手绘图


游走在空间之中,看动线所连接的每一个功能区都是一个视觉中心点,一步一景、层层递进,巧妙的通过材质、形态强化视觉上的层次感,让客户体验到空间的流动感,同时结合光影效果,完成科技感十足的沉浸式体验。
▼自由会客厅

▼手绘图

场域的中央是一个原结构柱子,不可挪动,于是我们模拟了一个纵情随性的客厅场景,将它置于沙发中央,衔接处裹上薄薄的拉丝不锈钢板,既保留了工业风的粗犷,科技感也骤然显现。
▼大接待室

带有黑色线条的弧形阳光板弱化了沿江面结构骨架的不规则感,为空间营造美学的秩序和平衡感。另外,面板渗透部分自然光线,延滞视觉向内部的穿透,空间因朦胧而变得复杂又梦幻起来,诱发访客一探究竟的欲望。
一隅的绿植遮挡了建筑的死角,带来移景入室的感觉,整个空间充满自然的灵动性。设计师处处充满心思,一旁此起彼伏的小块瓷砖覆裹着柱子,乍看像一个刻意摆设的大型装置,烘托空间的艺术氛围。
▼KTV室

KTV的设计灵感来源于机械表盘,拥有一种异乎寻常的复杂之美,让我们仿佛看到了时间“嘀嗒嘀嗒”不断流逝的模样。在灯光的渲染下,时而梦幻、时而安逸,带给访客变幻莫测的场景体验。
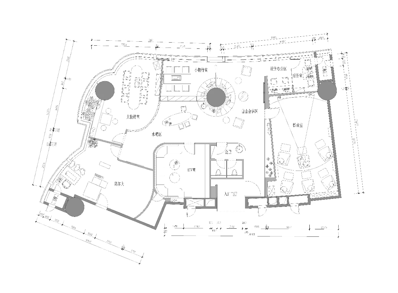
▼平面图

项目信息
项目名称:三迪联邦中心智能展厅
改造面积:约200平米
设计总监 :朱林海
设计团队:朱林海、林晴
Zhong
全部评论