↑ 慧舍
▼
改造源于追求
“愿你既可以朝九晚五,又可以浪迹天涯。”浪漫的话,浪漫的人懂,设计师无疑是最懂浪漫的人群之一。当诗和远方成为都市里多数上班族心中的愿望,设计师敏锐的感觉到这是人们对现状空间的不满,当然也包括设计师本人。
为什么不让“诗和远方”来到朝九晚五的生活当中?于是设计师决定改造现有的空间,实现都市里的诗和远方。听起来似乎有些冲动,不过实践证明,就是这样的冲动和追求被衍生出了触手可及的诗意空间——慧舍。
▼
不破不立
慧舍是慧空间设计的一部分,位于宁波市高新区华之大厦的三楼,由75㎡的室内空间和45㎡的露台组成。由于慧舍处于整个大楼的三楼,客人是先进入大楼再走出到露台,然后再进入慧舍空间。流线和传统的园林空间流线有反向的差异。而慧舍所在的大楼设计初心也是营造一个现代城市中的园林空间,这和设计师的想法不谋而合,同时为改造提供了有利的先天条件。
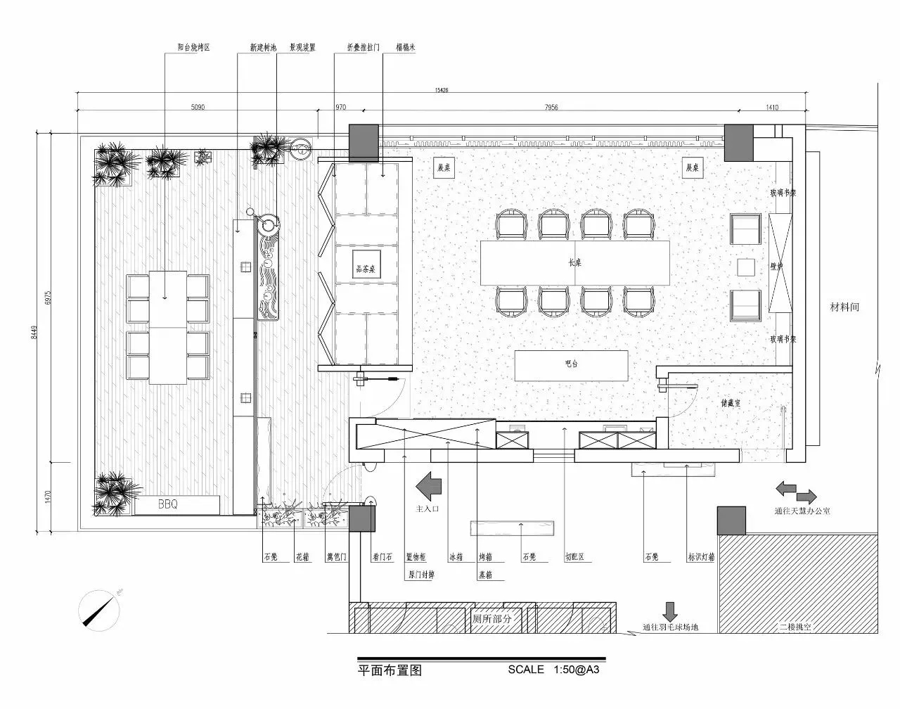
↑ 平面图

↑ 立面彩图

↑ 轴测图
慧舍空间里室内有一个茶室,一个8个人座的长条茶桌,一个吧台,一个储藏室,一个酒精壁炉墙面,室外露台有个8个桌位的户外长桌和一个BBQ。整个功能分区主要分室内空间和露台空间,中间用一个抬高300mm的榻榻米茶室过渡。


↑ 铁盒茶室
设计师把一个方形的铁盒子置入茶舍和露台之间,取代了原先的封闭墙面,通过可以完全打开的折叠门,完成这个空间的延续。于是,从茶舍进入露台的经历又添惊喜——穿过空间的过程多了榻榻米式的茶室,静谧而又灵动,一个开放空间一个封闭空间,在形成室内外对话的过程中,绿意,阳光,氧气和匠心亲密的融合在了一起。
▼
初心不改
城市中最珍贵的是柔和的阳光、清新的空气、满目的绿植,然而现在许多空间剥离了人与自然的关系,特别在现代化的办公楼空间里,白天用遮光帘,空气用新风系统,人们穿行在高层的住宅和办公空间里,完全与自然隔离了。
如何在现代化的城市空间里营造一个有当代特色的江南文人空间?如何不模仿传统的样式,用当代的材料和空间布局手法,就能让诗和远方来到身边?这是设计师一直在思考的问题,而慧舍就是一个实验性的尝试。



由于慧舍的周边大树环绕,让慧舍里面的空气充满了氧气,坐在慧舍里喝茶,人自然便得到了放松。若谈笑间,风满座,得水声入耳,岂不妙哉?为此设计师养竹造景,用近3000mm的旧马槽,旧时的石磨和当地的竹筒,做成水循环,空间里有了潺潺水声,送锦鲤入池,空间便几分添生趣。再配上有几百年历史的石凳,点缀在全新的空间里,形成对比,让全新的空间里有历史的痕迹。
▼
共享空间
改造后的慧舍,它集茶室、艺展、设计于一体,是一个能够体现江南美学生活的空间。同时这里不仅是招待客户的地方;还是一个以茶会友的雅舍;也可以是以烧烤为主题的party现场;更是一个可以共享的“诗和远方”。









在我们当代人的生活当中,必定有中西结合的特点,在慧舍室内的另一端用真火酒精壁炉做了整个空间的中心,在慧舍的两头分别用水,火来做呼应,水的表现形式是江南的,火表现形式是西方的。现代化的一体式橱柜已然可满足日常生活所需。











用真实、简单、自然的材料,打造精致而舒适的空间,一直以来是慧空间始终在坚持的,改造选用的是最普通的材料——水泥、水磨石、铝方通、锈板,既是基层和结构也是所见所触的完成面。通过重新组合有了设计感,这是设计的价值。整个改造是一个整理思路,重新出发的过程,在繁华的都市里,辟得一域,诠释着都市亦可同大自然亲密相容,诗和远方亦可以在朝九晚五之中。
项目名称:慧舍
项目坐标:宁波市国家高新区
建筑面积:120㎡
建设周期:2017/5—2017/9
主创设计:潘高峰
设计团队:高慧琼、陈燕南
施工团队:孟祥存
全部评论