首页
设计圈
案例美图
装修案例
灵感美图
头条资讯
设计智造
找设计
找工长
看工地
服务
观点
提交设计需求
注册
登录
记住密码
找回密码
登录
还没有易住账号?
点击注册
使用第三方账号登录
获取验证码
我已阅读并同意
注册协议
注册
已有易住账号?
点击登录
当前位置:
首页
>
装修案例详情
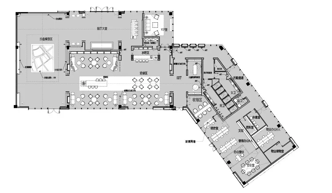
融创一号 营销中心
0
/
0
领域
享领域
风格
创意创新
面积
500-1000㎡
特征
智能展厅
施工单位
易筑施工
装修预算
180万
自然风貌与人文底蕴,将空间表现为一幅长卷水墨,移步异景于有限空间,却能感受视野与思绪的无穷无尽。透过简洁敞亮的布局与利落的细节,形成空间恰到好处的留白...
本案设计师简介
易壮壮
更多案例
预约设计
预约
设计师
小区名称
房屋户型
创意科技园
高端住宅
写字楼
智能展厅
连锁专卖店
餐饮
会所酒店
装修风格
养领域
玩领域
享领域
学领域
住领域
食领域
衣领域
Office领域
房屋面积
工程预算
在线提交 >>
案例
推荐
陶艺生活馆 | 玩领域 | 创意创新 | 100㎡以下 | 连锁专卖店
设计师:Jason
8
0
In 美甲店 | 食领域 | 现代简约 | 100-300㎡ | 连锁专卖店
设计师:宋闲
12
1
易友
评论
发表
全部评论
全部评论